A lakópark épületei kubusos struktúrából indulnak ki, a szintek elkülönítése, eltolása, valamint a teraszokkal történő homlokzati játék azonban lágyítja a karaktert. Erről szóló írásunkat a 194-es, 2024/6-os lapszámból közöljük.
Egyre inkább tűnik úgy, hogy a nagyvárosi élet igényei átalakulóban vannak. Olyan új tényezők váltak hangsúlyossá, mint a nyugodt, kisvárosi atmoszféra, a zöldfelületek intenzív megléte, vagy az e-mobilitás. Sokan ezen sajátosságok okán inkább az agglomerációban keresnek otthont, a Metrodom XI. kerületi, öt ütemből álló lakóparkja – amelynek már a második ütemét adták át idén tavasszal – viszont valós alternatívát kínál mindezekre. Duna-part, zöldfelületek, gépjárművektől elzárt passzázs – avagy kisváros Budapesten belül?
Tagadhatatlan tény, egyre többen megcsömörlenek a klasszikus nagyvárosi környezettől. Az állandó zajtól, a nagy arányú forgalomtól, a személytelen – közvetlen környezetet, embereket sem ismerő – közegtől. Az agglomerációba történő „kimenekülésnek” tagadhatatlanul vannak előnyei, hiszen egy kisvárosi közegben a fentebb említett hátrányokkal kevésbé lehet találkozni. Sok esetben azonban a napi munkába járás, az órákig tartó autóval vagy más közlekedési eszközön történő utazás negatívuma rettenti el az életformát váltani akarókat. A Metrodom River lakóparkja egyfajta fúziós projektként egyesíti a kétféle tér pozitívumait, ebből fakadóan pedig azt a kérdést is megválaszolja, mely szerint lehetséges valamiféle átmenetet teremteni a két atmoszféra között.

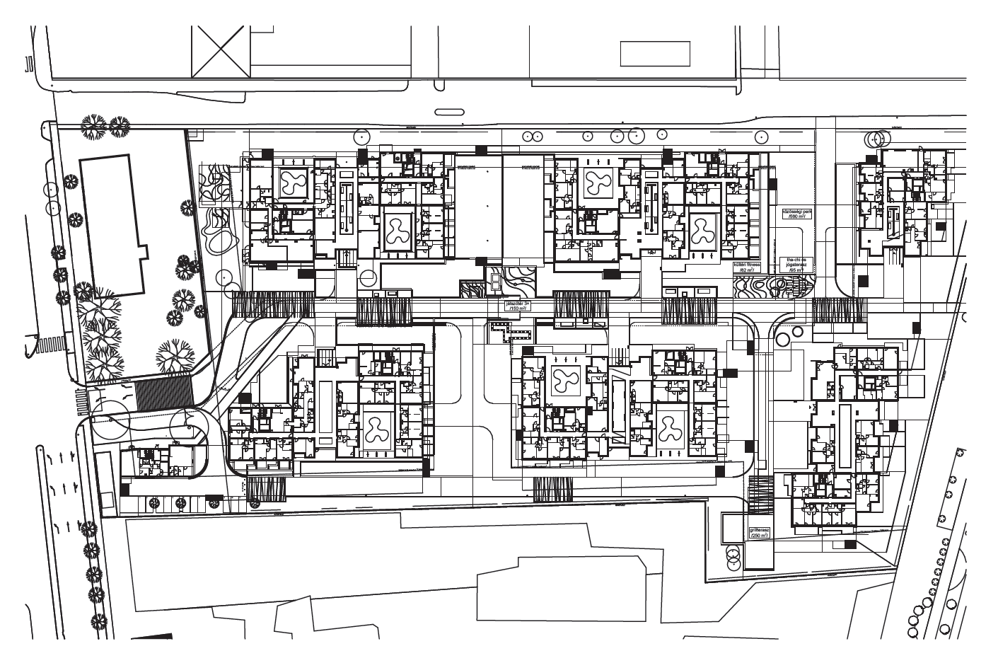
A Budafoki útról nyíló lakópark egy évek óta tartó fejlesztés eredménye, a megvalósult két ütem a következő években még hárommal fog bővülni, ennek nyomán valósul majd meg a teljes koncepció, amely gyakorlatilag egy kisváros lakosságszámának fog otthont teremteni. A kisváros nem csupán jól hangzó hívószó, hanem valós tény, hiszen a lakópark tartalmaz megvalósult és a jövőben megvalósuló boltokat, óvodát, bölcsődét, közösségi tereket – mindezt pedig a Duna-parton, gépjárművektől mentesen, sok-sok zöldfelülettel mind az épületek környezetében, mind pedig azokon belül.
Az építészeti koncepció kialakítása – a korábbi közös munka folytatásaként – a Tér 64 Stúdió Építészeti Kft. (Kovács István vezető tervező) nevéhez fűződik, a fejlesztői elképzelésre a tervező kiválóan rá tudott hangolódni. Az épületek alapvetően egy kubusos struktúrából indultak ki, a szintek elkülönítése, eltolása, valamint a teraszokkal történő homlokzati játék azonban lágyítja a karaktert, egyfajta játékosságot teremtve ezáltal. A tornyokat egy alacsonyabb tömeg köti össze, amelyben a lobby található, ez biztosít átjárást, illetve a közösségi helyiségek is itt találhatóak. Valószínűleg sokaknak van előzetes képe a klasszikus bérházak nyomán egy-egy lépcsőházról, éppen ezért a látogató számára a legpozitívabb értelemben meglepő lehet a lobbyba történő belépés. A szintek áttörése részint impozáns belmagasságot teremt, ezzel együtt pedig lenyűgöző az ott kialakításra kerülő belső kert, amely növényládák segítségével a falakon is folytatódik.

A Metrodom a fejlesztéseinél különös hangsúlyt fektet a lobby-terek „hotelminőségűvé” formálására, így valóban az otthonába érkezve minden ott élő megtapasztalhatja azt eleganciát és kertszerűséget, amelyet fővárosi környezetben sokaknak nélkülöznie kell. Ez a kertvárosi tulajdonság nem csupán a lobbyban érhető tetten, hanem már a lakópark területére történő belépéskor, a gyalogos passzázs ugyanis növényekkel, kis fákkal dúsan telepített, emellett egy mesterséges patak is fokozza a természeti karaktert. Az épületek tetején emellett közösségi tér is található, szintén növényekkel beültetve, így a lakók számára egy-egy kötetlen együttlét, beszélgetés is megvalósítható kellemes kerti környezetben. A Metrodom számára a szociális kapcsolatok építészeti eszközökkel történő erősítése rendkívül fontos, éppen ezért kerültek kialakításra olyan közösségi helyiségek, amelyek a társas találkozások színterei lehetnek.
A lakópark minden üteme tartalmaz valamilyen közösségi funkciót is, ezeket a lakók a kártyájuk segítségével szabadon használhatják, bizonyos esetekben foglalási rendszer segítségével. Találhatunk itt fitness-wellness részleget, baba-mama szobát – amely nagy segítséget jelent a kisgyermekesek számára mind a játékhoz, mind pedig a más gyermekesekkel történő együttlétekhez –, de meg fog majd valósulni a közvetlen Duna-parti ütemben csónakház is, ezáltal a szabadidő eltöltésének új perspektívái nyílnak meg. Utóbbi elgondolás azért is különösen impozáns, mert a fővárosi Duna-part a 20. századi történelemnek fontos szegmense az evező-kultúra, gondoljunk csupán a Római-part pezsgő atmoszférájára.

Megvalósult továbbá szabadtéri játszótér, kültéri fitness-park, amely a jövőben további elemekkel – például vizes játszótérrel – fog bővülni. A lakópark fejlesztésekor jól látható módon a Metrodom nagy hangsúlyt helyezett arra, hogy ne csupán otthonokat tervezzen, hanem olyan komplex tereket is, amelyek lehetőséget teremtenek az emberi életmód összetettségének megélésére, a szabadidő eltöltésére, illetve a kisgyermekes lét sajátosságainak támogatására.
Fontos szót ejteni arról a tényről is, amely talán a fővárosi élet egyik leginkább kihívásokkal és kellemetlenségekkel teli aspektusa: az autóforgalomról. Annak érdekében, hogy valóban nyugodt életminőség valósulhasson meg az ott élők számára, az épületek között meghúzódó passzázs kizárólag a gyalogosforgalom számára átjárható, az ott élők számára a parkolás a házak alatt meghúzódó szinteken lehetséges. A gépjárművekkel a Budafoki útról lehet behajtani a mélygarázsba, ezáltal a felszíni forgalom valóban autómentes tud maradni.

Természetesen a kialakításkor a gépjárművek támogatása is maximálisan megtörtént, ezt mutatja a parkolóhelyek száma, illetve azon rendkívül innovatív megoldás, hogy minden parkolóhely rendelkezik elektromosautó-töltővel, ezáltal támogatva a környezettudatos közlekedési megoldásokat. De található car-sharing parkoló, a közeljövőben telepítésre kerül Mobi-állomás, ezáltal a közösségi közlekedés megannyi lehetősége áll nyitva a lakók számára.
A Metrodom River lakóparkja – az előbbiek nyomán – valós alternatíva minden értelemben. Kiváló lehetőség mindazok számára, akik igénylik a nyugodtabb, zöldebb életformát, a természetközeliséget, ugyanakkor nem szeretnének lemondani a jó lokációról, a munkába, vagy egyéb helyekre történő zökkenőmentes utazásról. A projekt egyúttal a városszövet revitalizációjának is lényeges eleme, hiszen a megvalósult fejlesztések komoly kihatással vannak a környezetre, illetve a Duna-part ezen részének újjáéledésére is. Fontos emberi igényekre színvonalas, innovatív és érzékeny válasz az építészet megoldásaival.
Tervezés: 2019 – 2021
Kivitelezés: 2021 – 2029
Maximális szintterület: 65 780 m2
Építész vezető tervező: Kovács István (Tér 64 Stúdió)
Építész munkatársak: Boros Eszter, Jankovics Dóra, Lőke Ferenc
Ingatlanfejlesztő: Metrodom Csoport
Energiamenedzsment megoldások szállítója: Smart Digital Kft.
További képek a cikk végén található galériában!
Ha tetszett a cikk, és szeretnél előfizetni magazinunkra, itt teheted meg.



