Nagyvárosi kihívások és co-living struktúrák
A 21. századi co-living nem mesterséges képződmény, a megváltozott életformára adott építészeti, ingatlanfejlesztői válasz. A fogalmak és az előképek megismertetése után megvalósult kortárs példáit veszi számba sorozatunk következő része.

A co-living ingatlanfejlesztési modellje alapelemeiben megfelel a klasszikus lakossági ingatlanfejlesztési modelleknek, azonban egyes elemeiben eltérhet, vagy kiegészítheti azokat. Például azonosak az ingatlanfejlesztés szereplői: építtető, finanszírozó, tervező, kivitelező, üzemeltető, hatóságok, felhasználó. Ami eltérést és újdonságot jelent a hagyományos bérház fejlesztésekhez képest, maga az előkészítés és a működtetés folyamata. Egy-egy co-living beruházást piackutatás és igényfelmérés előz meg, mely az adott projekt célcsoportját, és a számára vonzó integrált szolgáltatásokat részletesen meghatározza. Szintén eltérés lehet, hogy egyes szerepkörök feladata kibővül, például a co-living esetén az üzemeltető közösséget is épít és tart fenn különböző programok szervezésével, valamint folyamatosan menedzseli az ingatlan kihasználtságát.
„Sokáig abban a tévhitben éltünk, hogy a magántulajdon és a görcsösen őrzött privátszféra az egyetlen üdvözítő út. Tévedtünk” – vallja Matthias Hollwich, a progresszív New York-i Hollwich Kuchner (HWKN) építésziroda alapítója. (A Hollwith Kuchner jegyzi a multigenerációs felhőkarcolók egyelőre koncepciótervek szintjén létező prototípusát, a Skylert (NY).)
A SPACE10 valamint Anton Repponen és Irene Pereyra játékos online felmérése, a „One Shared House 2030” a legátfogóbb kutatás, ami shared living témában eddig született.
Íme a kutatásból néhány, a co-living szempontjából fontos megállapítás:
- A közösségi otthon mellett szóló legfontosabb érv a szociális érintkezések lehetősége, és a fenntartással járó költségek megosztása.
- Közösségi együttélés szempontjából az egyedülálló nők, férfiak és párok a legnépszerűbbek.
- Sokan szívesen váltogatnák otthonukat, így el tudják képzelni, hogy 2030-ra a világ több nagyvárosában is van közösségi lakásuk.
- A válaszadók szívesebben élnek városban.
- A design kulcsfontosságú számukra a közösségi otthon kiválasztásakor.
- Az általuk legszívesebben megosztott funkciók az internet, a közösségi kert, a közösségi helyiségek, ugyanakkor lemondanak a saját konyháról, és előnyben részesítik a koummunális konyhát annak érdekében, hogy több mobilisan felhasználható privát terük legyen.
- Végül, de nem utolsó sorban kiemelten fontos a válaszadók számára a privát és a közös terek határozott elválasztása.
A legújabb co-living trendek az USA-ból indultak, ahol néhány startup, mint például a WeLive – amely 2021-ben beolvadt a munkatér stratégiára specializálódott WeWork brandbe –, vagy a Common kimondottan a 35 év alatti munkavállalók piacára fókuszál. Közös jellemzője e korcsoportnak, hogy egyszerre akarja kiélvezni a szociális együttlét örömét, és a privátszféra nyújtotta biztonságot.
„Közösségre, rugalmasságra és kényelemre fókuszálva, a WeLive apartmanokat kínál, melyeket a lakók egy éjszakától egy hónapon át akár hosszabb időtartamra is kibérelhetnek” – fogalmazza meg irányelveit a 2016-ban alapított vállalkozás. A stúdiólakások mellé olyan szolgáltatásokat kínálnak, mint szakács, rendezvényhelyszínek, média helyiségek, jóga, közösségi estek, portaszolgálat.

MEGVALÓSULT PÉLDÁK:
The Collective Old Oak, London (2016)
„A jövőben mindannyian hajléktalanok leszünk” – vázolja a szélsőséges jövőképet James Scott, a The Collective társtulajdonosa.
Maga a The Collective – a New York-i The Commonhoz és WeLive-hez hasonlóan – egy olyan operátor cég, amely ingatlanfejlesztéssel is foglalkozik. Több kötött adottságú társasház co-living célú átalakítása után építette meg 16000 nm-en első, célzottan közösségi szempontok szerint kialakított épületét. A nyugat-londoni Old Oak jelenleg a világ legnagyobb befogadóképességű co-living létesítménye.
Kommunális használatú terei között találunk mozit, mosodát, francia kávézót, könyvtárat, co-working tereket, tematikus közösségi konyhákat. Lakói reggeli jógán, mozi maratonon, ping-pong bajnokságokon vehetnek részt – hogy számos szolgáltatása közül csak néhányat említsünk. A nagyméretű közös terekkel ellentétben a privát lakóterek 15 m2-en belül maradnak. Gazdaságosan kialakított apartmanjaihoz saját fürdőszoba, és páronként megosztott konyha tartozik, míg stúdiólakásainak a 3 egységes teakonyha is integrált része.
![]() ![]() |
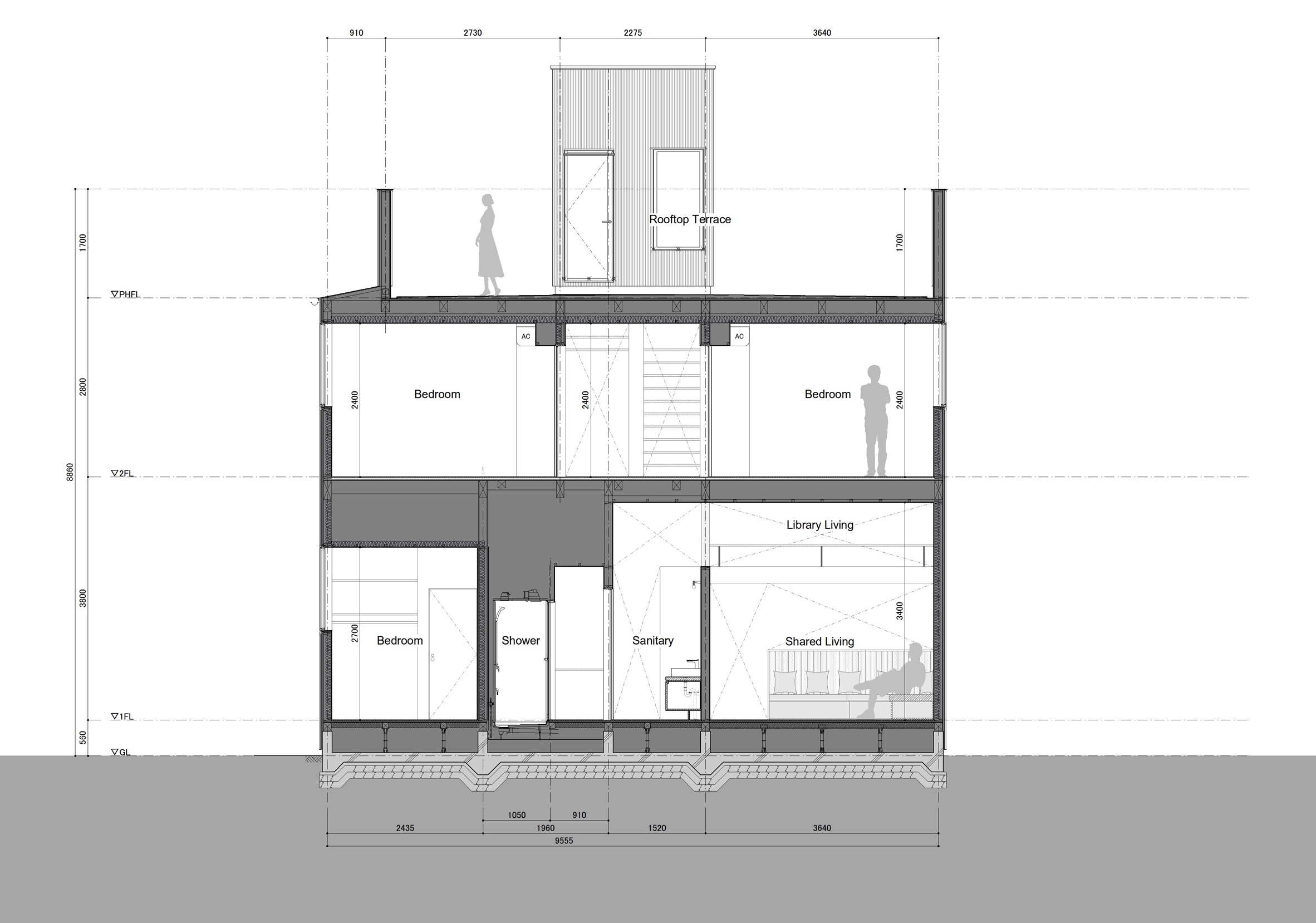
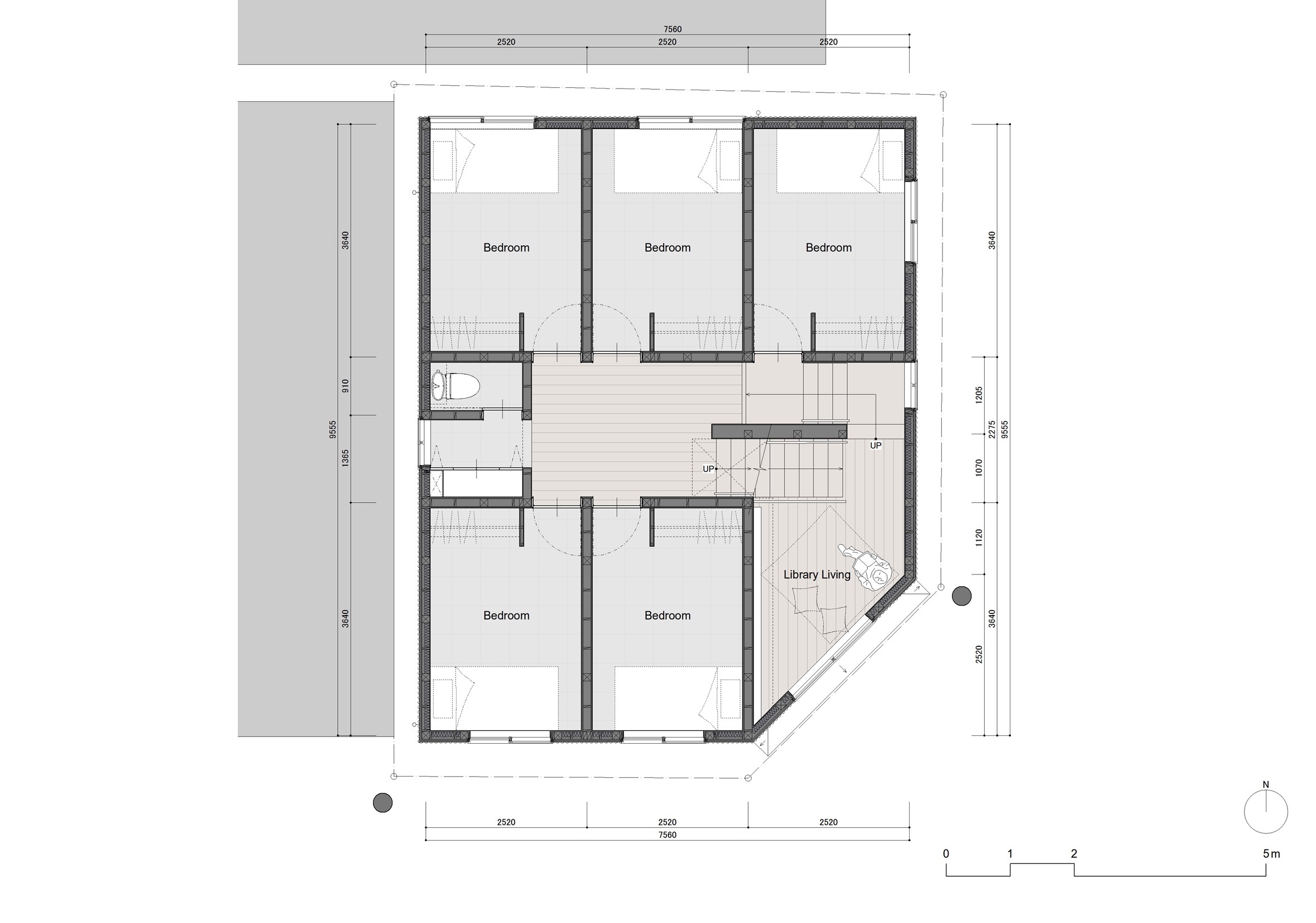
Zeze, Osaka, Japán (2018)
Kétszintes épületstruktúrához, és kicsi alapterülethez kellett alkalmazkodnia a Zeze esetében a japán Swing stúdiónak. A befektető pontosan körvonalazza célközönségét: legfeljebb 40 éves, egyedülálló irodai dolgozókat vár elsősorban, akik keresik a valahova tartozás élményét, másrészt rezidens tanulókat, vagy külföldről érkezett munkavállalókat. A Zeze privát lakrészei nagy belmagasságú, tiszta térszervezésű közös használatú helyiség köré szerveződnek. A belső tér stílusában minimalista irányelveket követ.
![]() ![]() |
![]() ![]() |
![]() |
Canvas House, Szingapúr (2020)
Szingapúr forgalmas negyedében, Tanjong Pagarban valósult meg a Canvas House. Az extrém design azonnal egyértelművé teszi: célközönsége a helyi vagy expat kreatív közösség. Tervezője, a Ministry of Design, egy négyemeletes, tipikus szingapúri üzletépület belső tereit alakította át. A hagyományos helyi kézművesség előtt egy-egy eredeti motívum megtartásával tisztelgett a tervezőiroda. A fehér szín szembetűnő dominanciájával, és a minimalista tárgykultúrával az építésziroda célja az volt, hogy a beköltözők maguk vigyenek életet a terekbe ahelyett, hogy alkalmazkodnának hozzájuk.


Olive, Bangalore (2020)
Tizenötezer férőhelyével, az indiai Embassy Group indította el az eddigi legambiciózusabb közösségi beruházást, az Olive-ot. A befektető további 2500 ágyat tervez Pune-ban és Chennaiban. Az Olive Bangalore mintegy 36 millió diákjának, és növekvő számú fiatal munkavállalójának szeretne megfizethető lakhatási alternatívát kínálni. Bevallott célja, hogy a gazdaságosságon és rugalmasságon kívül részese legyen annak a társadalmi folyamatnak, amely a tulajdonlástól a megosztás felé vezet.
A komplexum tervezője, a brit Priestman Good a közösségi terek alakításában és designjában a prémium kategóriás hotelek hangulatát célozza meg, ugyanakkor nagy hangsúlyt fektet a terek zöldítésére.
Az Olive úgy tekint magára, mint brandre, amely a logótól kezdve az online felületeken át a belsőépítészeti megoldásokig mindenben egységes megjelenést mutat, így erősítve lakóiban a közösséghez tartozás élményét.
![]() ![]() |
Amint a példákból kitűnik, nincs univerzális recept arra, milyen integrált szolgáltatásokkal, kényelmi megoldásokkal, bérlői konstrukciókkal vonzza magához potenciális lakóit egy-egy közösségi ingatlanberuházás. Világszerte óriási változatosságot mutatnak a co-living trendek, és ugyanúgy találunk példát átalakított városi bérházra, mint óriáskapacitású újépítésű társasházra.

Bolgár Eszter „Közösen lakni” című sorozatának első és második része ITT és ITT olvasható.
Ha tetszett a cikk, és szeretnél előfizetni magazinunkra, itt teheted meg.


