Erről szóló cikkünk a 136-os, 2017/4-es lapszámunkból közöljük.
Csíkra húzom a szemem, amikor befordulunk a szántóföldek közötti mezőgazdasági útra a Tisza töltéséről. Miközben messze elnézek a pusztában, szórakozottan Sára Sándorosat, Jancsó Miklósosat játszom, széles horizontot, hosszú snitteket befogva a szememmel, Cserna-Szabó regénycíme, a Sömmi jut az eszembe. Elhagyott vagy lelakott, túlnyomórészt rozoga, rendetlen, sokszor vakolatlan falú, roggyant tetejű tanyák tünedeznek fel az úthoz közelebb-távolabb. Szeged központjától légvonalban legfeljebb tíz kilométerre, a folyó tiszántúli, keleti oldalán az alföldi épített táj nem sokat változhatott az elmúlt ötven-hetven évben. Az elmállott autentikus paraszti építészet helyébe nem érkezett érték, csak a nagy, lapos sömmi.

Túlnyomórészt növendék akácfákból álló facsoport takarja jövetelünk célállomását a bekötő út felől. Ezen a környéken a szántók, legelők között álló házakat, házcsoportokat gyakran akácfaligetek övezik, amik az agrártájban, a parcellákban zöld, árnyas szigeteknek tűnnek. Egy-egy ilyen tanya, házcsoport a szomszédjától több száz méterre esik. Ilyen ligetben épült fel nemrégiben a most bemutatott rendhagyó családi ház, ami radikálisan új minőséget, új esztétikumot reprezentál itt a Dél-Alföldön. Itt, ahol nincsenek az építészeti regionalizmusnak kortárs kulcsdarabjai, ahol sem újhullámos borászatok, sem parasztház-átiratok nem jellemzők.

Fontos körülmény, hogy az ide (ki)költöző kisgyermekes család felnőtt tagjai világlátott, budapesti és szegedi kötődésű, városi, polgári foglakozást űző emberek, akik egyelőre nem igazán űznek mezőgazdasági tevékenységet, ám a jövőben néhány lovat, tehenet nevelnének. Erre predesztinálja a szegedi férjet, hogy állatgyógyászattal foglakozik, vagyis nem teljesen idegen terület számára az agrárium. Mindenesetre továbbra sem olyan vidéki hajlék felépítése volt a céljuk, ami elszakítja őket attól, hogy hetente néhány üzleti napot a pesti lakásukban töltsenek, ingázzanak a főváros és az alföld között. Egészséges, nyugodt, stresszmentes vidéki életre vágynak, ahol a gyerekeik élményekben gazdag, de kiegyensúlyozott zöld környezetben cseperedhetnek fel.

Sokszor kiderült már, hogy erre a nagyvárosi agglomerációs, kertvárosi lakókörnyezet nem feltétlenül alkalmas. Bizonyos tekintetben telepesek ők, akik egészséges egyensúlyt keresnek a modern világ ritmusa és vidéki élet szépsége között. Új, idehaza ritka tudatossággal kialakított életstílus ez, aminek a családi házuk megfelelő helyszínt képes biztosítani. Környezetére nyitott, oldott, lazán szerkesztett kompozíció ez, amelyben a természet és a ház belvilága között szinte csak hártya vékonyságú határok jelölődtek ki. Számunkra furcsa látni, hogy az „akácszigeten” álló ház telke nincs körbekerítve kerítéssel, inkább csak a környező szántások szélei, traktorjárta utacskák, sűrűbb bokrosok jelzik annak határát. „Noha száz méterekre élünk egymástól, de itt a szomszédok odafigyelnek egymás biztonságára – mondják. Amit körbe kell keríteni, az a lovak, szamarak, tehenek miatt van inkább.” Az idei telet már ebben az új házban töltötte a család és úgy tűnik, tizenöt hónapos kisfiuk, „városi” spánieljük, két macskájuk számára is idilli a környezet.

Ezen a tájékon rendhagyó módon a megrendelők modern faházat szerettek volna építeni, aminek előképei a balti, skandináv, lengyel kortárs építészet legfrissebb törekvései között találhatók meg. Az archetípus, „ház formájú házak” tiszta minimalizmusa, Illetve a pavilonszerű telepítés okán ezt a faházas megjelenést mégsem érezzük itt tájidegennek vagy erőltetettnek. Mivel a tetők és homlokzatok faburkolata ugyanaz, ezért a négy nagyobb egység kapcsolataiból összeálló kompozíció elemei olyan absztrakt házformákat mutatnak be, amelyek időtlenek, így nem feltétlenül kötődnek az építés helyéhez sem. „Ez a mi házunk! Emberek háza! Mindenki tudatában és tudatalattijában élő ház.” Végeredményben olyan emberi lépték és barátságos formák között járunk, ami a család személyes, bensőséges elvárásaihoz állhat legközelebb.
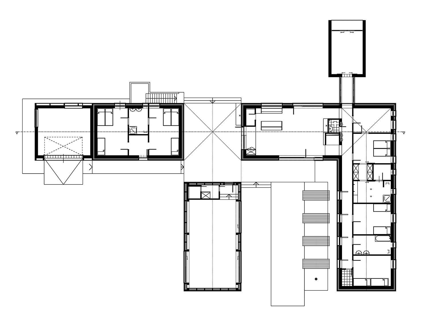
Varsányi András, Pozsár Péter és Vas Norbert építészek koncepciójának legnagyobb értéke, hogy megértették és remekül dolgozták fel a földszintességben rejlő lehetőséget. Az egymásra merőleges hosszanti tengelyekbe szervezett garázs-pincevendégház, illetve nappali-konyha-étkező, valamint lakószobák-dolgozószoba, végül közösségi ház önálló funkcionális egységek ugyan, de kapcsolataik a család életén alapuló mélyebb analízisen nyugszanak.

Ráadásul a különféle épületszárnyakból kitűnő vizuális kapcsolatok jöttek létre a hatalmas, olykor elhúzható, nyitható üvegfalakon át. Belső kapcsolatokat teremt a ház szíveként is felfogható nagyvonalúan, gyönyörű, favázas kupolával fedett terasz is, aminek polikarbonát fedése megakadályozza a csapadék bejutását, viszont a kis belső erdő, akácliget árnyékából mindig friss levegő jut ide. Ennél nyitottabb teraszmezők, sőt egy apró, vizes díszmedence is hívogat arra, hogy a házrészek intim közelségében ugyan, de a szabadban töltsék az itt lakók, itt vendégeskedők az idejüket.
Fontos látni, hogy mindezek mellett egy valóban modern, geotermikus-földszondás gépészeti rendszerű, ytong és 20 cm vastag szigetelésű, korszerű házról van szó olyan fantasztikus részletmegoldásokkal, mint amilyen az eresz „elbújtatása” a tetősík és fal találkozási pontjánál, vagy a lakószobákat összekötő folyosó felül-oldalt világító tetőablakai.

Már esett szó talán arról, hogy a természettel, tájjal kapcsolatot kereső ember előtt álló legfontosabb feladat egy egyensúly megteremtése a polgári, városi, szociális tapasztalatai és a kivonulás igénye között. Számomra a lakórész oldalfolyosójának végén található dolgozó-, könyvtárszoba testesíti meg leginkább ezt az egyensúlyra törekvő koncepciót. Nem tudok elképzelni olyan urbánus személyiséget, aki a csalitos pusztára hatalmas, eltolható üvegajtóval nyíló könyvtárszobában, az íróasztal mögött ülve ne érezné magát otthon.
Ennek a házrésznek kiemelt szerepét az is hangsúlyozza, hogy lapos tetejével, vakolt homlokzatával, fehér színével, egy modern városi villa idéződik fel a szemlélő számára. Direkt és erős utalás ez arra, hogy a vidéki és a városi élet nem szemben áll egymással, hanem egymás szerves folytatásaiként is elképzelhető. Úgy vélem, megrendelő és építész együtt olyan házat tervezett meg, ami az egész alföldi régió kulcsprojektje lehet. Egyetlen háztól ez talán túlzott elvárás, de jó volna, ha mégis megtörténne a csoda.
Tervezés éve: 2012 – 2016
Átadás éve: 2016
Alapterület: 479,8 m2
Építészet: Varsányi András, Pozsár Péter, Vas Norbert
Belsőépítészet: Varsányi András, Varsányiné Ferencz Irén
Kert- és tájépítészet: Varsányi András
Statika: Fekete Krisztián
Épületgépészet: Kisapáti Szilárd
Elektromos tervezés: Wollner András
További képek a cikk végén található galériában!
Ha tetszett a cikk, és szeretnél előfizetni magazinunkra, itt teheted meg.


