Mindössze 35 négyzetméteres beltérrel rendelkezik ez az apró balatoni nyaraló. Erről szóló írásunkat a 123-as, 2015/7-es lapszámból közöljük.
Először is arról, ami NEM látható a képeken. Nem látható például, ahogy ez a kis nyaraló egy szomszédos tűzfalnak támaszkodik. Nem látható, hogy két olyan igggazi magyar nyaraló közé van szorítva – ahogy három magyarból kettő a Balaton-parti nyaralót valaha elképzelte vagy el tudta képzelni. És nem látható az a megrendelő sem, aki viszont abból a bizonyos háromból biztosan a maradék egy.
Nem látható az sem, hogy ez a valahol a déli parton, két település között futó utca éppen a vasúttal párhuzamosan fut. Cserében persze ott van neki a pázsitos kert egy hatalmas platánnal. És persze saját vízparttal. Helyezzük el mindezt, mondjuk Balatonszemesen, ahol évtizedeken át garázsként funkcionált, de igazából szerszámosként, lomtárként, tárolóként szóval mindenesként – mindannyian ismerjük ezeket a mellesleg felhúzott melléképületeket.

Itt viszont idővel főszereplő lett belőle és helyette. Ellentmondva minden látszólagos logikának: a megrendelő a régi főnyaraló mellé, és a garázs helyett, egy szállodaszobányi kis épületet szeretett volna, a ZOA építésztervezője, Onodi András pedig formát szabott ehhez. Teljes víz felé fordulás és ez az egyszerű, mértani téglatest csak látszólag olyan egyszerű. Egyrészt elkerüli a konténerszerűség ipari jellegét, nem sugall ideiglenességet, inkább laposabb, azzal a finom magabiztossággal áll a talajon, amit csak az ilyen földszintesség tud sugallni.
Ehhez a horizontális nyugalomhoz hozzáad a tetőn körbefutó korlát és a födém markáns csíkja is, ami mögött egyébként nem egy sima, lapos fedél húzódik meg, hanem tetőteraszszerű lapostető: határozott funkcióját még láthatóan nem találták meg, de mondjuk remek félrevonuló hely lehet egy elhúzódó kerti partiban annak vagy azoknak, akik a mellvéd mögé leülve csak a csillagos ég végtelen csendjét akarják fürkészni.

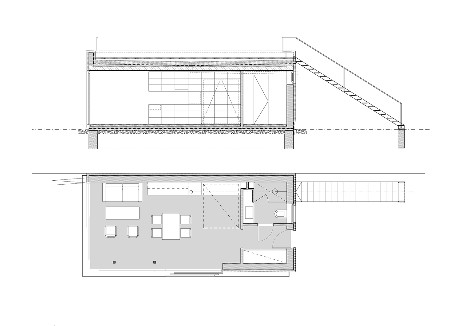
A mininyaraló napszaktól és a nap állásától függően többféle arcot is tud ölteni. A nem nyári alapesetben minden nyílása zárva: a sötét födém alatt az üvegfalakat sínen mozgatható, világos árnyékoló falak rejtik el, és mivel vannak, akik teljes sötétségben szeretnek aludni, mindez a nyári éjszakákon is megismétlődhet. Nappal aztán jöhet a napfény, akár üvegfalak nélkül is, ha födémtartó szerkezet mínusz egy oszloppal is működne, a „megnyitott ékszeresdoboz-összhatás” akár még elsöprőbb is lehetne. A blackboxban mindenesetre ilyenkor vakító világosságával feltárul a feszesre tervezett, mindössze 35 négyzetméteres belső is. Egyetlen helyiségben van minden, ülősarok, ebédlőasztal, konyhapult, a lenyitható ágy, és csak a fürdőszoba, vécé különül el alig észrevehetően.
Ha pedig mindez megnyílik a pázsitos kert felé, a kerti ülőgarnitúra a burkolatával éppen csak jelzett teraszra kerülhet ki, pont a part menti saját stég magasságában. A puritán funkciórenden túl kifejez-e ma valamit egy ilyen minimalistának tűnő épület? Minimalizmusa egyrészt csak a szűkebb-tágabb környezet balusztrádos, olykor faszerkezetekkel, olykor fagyiszínekkel operáló, a státuszt mindenképpen a méretével megmutatni akaró, újbalatoni üdülővilágban tűnik minimalizmusnak. Visszafogott méretei ellenére ez a ház tökéletesen ki tud szolgálni egy párt, még ha nem is látunk feltétlenül mindent a kényelmüket szolgáló, beépített technológiából. A 35 négyzetméternyi világ „betelepítése” természetesen komoly feladat, de az alapos, minden részletre kiterjedő tervezés itt is képes volt a változatos és sokféle élményt adó elrendezésre – és ez már más, mint a minimalizmus.

Az egykori garázs egyébként a hatvanas-hetvenes évek, ma már szinte bájos, amolyan kisstílű szocmodernizmusának jegyében készült. Két oldalán kövekből, de azokból a jellegzetesen téglaformájúra faragott terméskövekből vízszintes sorokba felrakva, amit aztán subaszőnyegszerűen mintáztak a vízszintességet ellentételező és hangsúlyosan a talpukra állított kőtéglák.
A kettő között pedig epizodistából főszereplővé lépett elő az ereszcsatorna és a legendás lejtős hullámpala tető. Az új garázsnyaraló egyik látványtervén az egyébként szörfös megrendelő érkezik meg éppen a víz felől vitorlájával. A viharossá alakított ég alatt párja bent várja, a kivilágított ház funkciókkal telerakott, komfortos otthonossága pedig kiáltó ellentétben van a kinti világgal. A látványterv jó része elképzelt, ez az utóbbi viszont valósággá vált.
Tervezés éve: 2013
Átadás éve: 2014
Alapterület: 33 m2
Építészet, belsőépítészet: Onodi András (ZOA Studio)
További képek a cikk végén található galériában!
Ha tetszett a cikk, és szeretnél előfizetni magazinunkra, itt teheted meg.


