A Pázmány Péter Katolikus Egyetem új campusa több szempontból is világok határán létesül. A tervezési területen vált léptéket és beépítési módot a városszövet. Korszakváltás határán áll maga az oktatás is, átértékelődnek a módszerek, kérdés tárgya az oktatás voltaképpeni helyszíne, nem beszélve a COVID helyzet kihívásairól, aminek következtében eddig soha nem látott gyorsasággal jelentek meg és terjedtek el új eszközök és megközelítéseket. A tervet az építészek leírásában közöljük.
Hosszú szavatosságú megállapításokat tenni egy ilyen gyorsan változó környezetben: ez valószínűleg a pályázat legnagyobb kihívása.
Városszövet
A tervezési terület sajátos interregnum: a pesti belváros intenzív tömbös beépítése találkozik a szellős, szabadon álló beépítést képviselő paloták világával; a kétfajta szövet viszonya jelenleg rendezetlen. Szándékaink szerint a tervezett épület lezárja – mintegy befejezi – a tömbös beépítést, szabadon hagyja érvényesülni a „château-k” világát (cc: Daragó László), ismét kertekbe komponáljuk a műemlékileg védett épületeket.

A kertek kialakításakor városszerkezeti okokból elsőbbséget a Pollack Mihály téri front élvez, vagyis itt a legfontosabb az Andrássy palota, Esterházy palota és Károlyi palota szabadonálló jellegének visszaállítása. Az erre a frontra koncentrált zöldfelületek a Pollack Mihályt tér burkolat-dominanciáját ellensúlyozzák, ugyanakkor annak térbeli és használati kiterjesztését jelentik.
Bejáratok
A tervezési terület a gyalogos megközelítési irányokat tekintve a két körút – és így két fő villamos vonal – súlypontjában fekszik.
Az épületet kettős főbejárati rendszerrel terveztük – analógiaként a BME épületét használva. Az ünnepélyes főbejárat a Szentkirályi utca felől, a meglévő PPKE épületegyüttes tengelyére szervezve nyílik, míg a Kiskörút felől a visszaállított kerteken keresztül nyílnak a „mindennapos” bejáratok. Az így kialakuló kereszttengelyt egy hossztengely ellenpontozza, mely összeköti a Múzeum utcát a Bródy Sándor utcával. A két tengely csomópontjában létesül a központi aulatér

Középületek esetén evidencia, hogy a bejáratok nem lehetnek pusztán a járdáról nyíló ajtók: megfelelő átmeneti (urbánus) térről, előtérről kell nyílniuk. A Szentkirályi utca „utca jellegét” princípiumnak tartjuk, a bejáratot így - igazodva a történeti városszövet térteremtő logikájához - a szemközti historizáló egyetemi épület, vagy éppen a Rumbach Sebestyén utcai zsinagóga finom megoldásának analógiájára alakítottuk ki: az alsó két szinten lépünk vissza a tömeggel, és formálunk elegáns, fedett nyitott előteret/árkádot, mely nagyméretű üvegfala révén akadálytalanul folyik össze a mögöttes előcsarnoki térrel és átriummal, így hozva létre nagyvonalú, fedett, kvázi városi teret. Elmosódik a határ kint és bent között, utca és tér között.
A Múzeum felőli főbejáratok előteréül a visszaálmodott, és nyüzsgő egyetemi élettel megtöltött kertek szolgálnak, ilyen értelemben az épületegyüttes Pollack Mihály tér felőli bejáratát maguk a kertek adják.
Örökségek – I.
A paloták esetén törekvésünk a szabadonálló jelleg visszaállítása. Véleményünk szerint az egykori lovarda épülete is már kényszerű együttélés eredménye volt, a Magyar Rádió későbbi beépítései ezen a helyzeten tovább rontottak, és visszaléptetett homlokzatsíkjaik ellenére a beépítési szituációt a zártsorú beépítés irányába tolták. Koncepciónk szerint a paloták körüljárható, kertekbe komponált karakterűek míg az új egyetemi épület a pesti városszövethez tartozik. Átmenetet a függőkertek világa képezi, mely nézőponttól függően bontja le a városi léptéket a paloták és kertek léptékére, illetve vezeti fel a kertek zöldjét az épületre.

A Károlyi kert kapcsán mérlegelt szempontok:
- A Múzeum utcai szomszédos bérkaszárnya szintén Ybl Miklós alkotása. Az épület, mint gazdasági vállalkozás biztosította a Károlyi palota beruházásának pénzügyi hátterét. A telekhatáron álló tűzfal kezelésére tűzrendészeti okokból meglehetősen kevés építészeti eszköz állt rendelkezésre már Ybl idején is.
- A közlekedési koncepció az egykori gloriette helyére írta elő a lehajtó rámpát, ami pozícióját tekintve építészetileg egyébként helyénvaló döntés. A kiírás értékként kezeli a tűzfal architektonikus kialakítását, ugyanakkor kéri a tűzfal takarását is.
- A rámpa miatt a kert teljes rekonstrukciója nem megoldható – sajátosság, hogy a tűzfal melletti terület közel egyharmada nem is az egyetem telkét képezi.
Koncepcionális válaszok:
- Az új épület a pesti városszövetet folytató és lezáró elem, a „Tudományok Tornya” tömegével rátakar a tűzfalra, „homlokzatosítja„ azt.
- A rámpa takart módon, az épületen belül kerül kialakításra. A rámpa előtt lehetőség nyílik a belső térben a gloriette megidézésére.
- A „Tudományok tornya” a lehető legkisebb geometriai mérettel készül. A pinceszint tervezése során gondoltunk a nagyméretű fák számára szükséges földlabdák elhelyezhetőségére is.
- Zöldfelületet a lehető legnagyobb felületben állítjuk vissza, ugyanakkor a korábbi „magánkert” szituáció helyett egy nyitott, de mégis elmélyülésre alkalmas „olvasó kertet” alakítottunk ki, kapcsolódva a Károlyi palota történelmi épületében kialakított könyvtárhoz. A kert ilyen értelemben kültéri folytatása a tanulási tájnak.
- Alaprajzi rendszerében a „Tudományok Tornya” távolságot tart a védett tűzfaltól: az ide pozícionált közlekedő és pihenőterek révén az oszloprend a belső tér látványának része, az üveg hasítékon keresztül kívülről is érzékelhető.
Örökségek – II.
A Magyar Rádió évtizedek alatt kialakult modern épületegyüttese álláspontunk szerint ugyanúgy hordoz értékeket, mint a historizáló épületállomány. Bodonyi Csaba gondolataival élve, ha mindez nyomtalanul eltűnik, többet vesztünk, mint épületeket; az IDŐT-t veszítjük el, visszavonhatatlanul.

Az ikonikus PAGODA épületét az étterem részeként hasznosítottuk újra. Új pozícióban, de a régi szellemiséggel lesz találkozási pont, egy ebéd, egy délutáni kávé mellett helyszín az egyéni elvonult tanulásra vagy a közösségi létre, de ha kell, önálló rendezvényhelyszínként is szolgál.
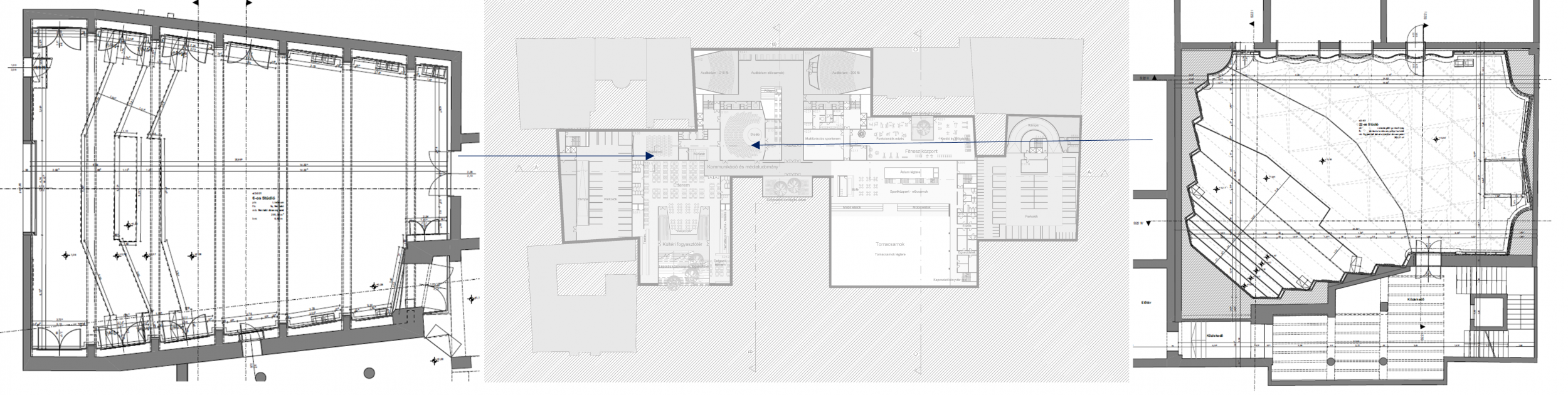
A pályázat adta lehetőségek között vizsgáltuk a 6-os és a 22-es stúdió világának megőrzését és továbbörökítését.

A 22.-es Stúdió belsőépítészeti elemeinek hasznosítására alkalmas geometriával a Kommunikáció és Médiatudományi Tanszék stúdióját terveztük meg, míg a 6-os stúdió esetében a szomszédos moziterem adhat erre lehetőséget.
Funkciók – I.
Az oktatási szárny a meglévő egyetemi épületekkel szemben, a koncepció szívében, a Szentkirályi utcáról nyílóan létesül. Központi aula köré rendezett térsor, világos funkcionális hierarchiával: az alsóbb szinteken a nagyterű tantermek (auditóriumok, nagyelőadók) találhatók, egyre feljebb haladva kisebb termek majd irodák létesülnek. Az alsóbb szintek az oktatás helyszínei, a felső szinteken az oktatói irodák kaptak helyet. A szintek közötti közlekedést szolgáló lépcsők egyben közösségi terek: teraszos ülőhelyeivel közösségi helyszínek.

- A Múzeum utcai oldalon létesül a „Tudományok Tornya”.
- A Bródy Sándor utcai történelmi épületben a kollégium kap helyet.
- Az Esterházy palota és a Károlyi palota közötti Campus tér alán nyúlóan létesül a kézilabda csarnok, mely egy működési egységet alkot a fitnesz központtal.
- Az egykori Festetics kert helyén teraszos süllyesztett park vezet az étteremhez.
- A Károlyi palota épületében a könyvtár kapott helyet.
- Az Esterházy palota épületébe a Központi Hivatalt terveztük.
- A fenti funkciókat A Bródy Sándor utcától a Múzeum utcáig vezető hossztengely fűzi fel, mely minden oktatási szinten ismétlődik és az egyetemi belső élet elsődleges beltéri és kültéri helyszíne: egyéni és csoportos elmélyülésre, valamint közösségi életre is alkalmas tér.
Funkciók – II.
Kifejezett célunk volt, hogy minél több funkcionális egység „leválasztható” legyen az épületegyüttesről, önállóan is működtethető legyen, ezzel segítve a projekt rentabilitását.

Önállóan üzemeltethető egységek:
- Auditóriumok az előcsarnokkal: rendezvény és konferencia helyszín, catering háttérrel
- „Tudományok Tornya” – földszint kávézó: akár 24 órás nyitva-tartás, a szomszédos kert bevonásával közösségi tanuló helyszín (SOTE könyvtár analógiája)
- Könyvtár
- Sport Hub: kézilabda csarnok saját előcsarnokkal, öltöző és büfé/kávézó háttérrel: sportesemények, rendezvények, ballagások
- Igazgatási épület: Márvány terem és a tetőtérben javasolt rendezvénytér révén rendezvényhelyszínként is működtethet
- Étterem: közvetlen és szeparálható bejárat Pollack Mihály tér felől
- Kollégium: földszintjén multifunkcionális termekkel, kertkapcsolatos kávézóval
Funkciók – III.
Annak érdekében, hogy a felépítmény sem tömegével, sem magasságával „ne nyomja agyon” a palotaépületeket vagy a környezetét, intenzíven használt első pinceszintet terveztünk. Ide pozícionáltuk a nagy létszámú és jellemzően nagy fesztávú funkciókat, mint:
- Kézilabda csarnok
- Kommunikáció és Médiatudomány tanszék stúdiója és moziterme
- Auditóriumok
- Étterem

Kiemelt feladatnak tartottuk, hogy ezen területek nagyvonalú, természetes fénnyel megvilágított, élhető folytatásai legyenek a terepszint feletti beépítésnek. Ennek érdekében:
- teraszosan süllyedő fogyasztótér kapcsolódik az étteremhez, melyből – az ide áttelepített legendás „Pagoda” épületén keresztül közvetlenül a kertbe léphetünk ki.
- Süllyesztett díszkert szolgál a tengely közepének megvilágítására
- a központi átrium felülvilágítójának fényét nagyméretű födémnyílás vezeti le az auditóriumok előterébe.
- a „Sport-HUB” közlekedőtere üveg fedésű átrium köré szervezett
- a fitnesz területek részére a szoborkerthez kapcsolódó süllyesztett kertet biztosítottunk, ami egyben a sportolók relaxációs, pihenő tereként is szolgál
Végeredmény: a funkciókat felfűző kereszttengely mintegy „fénytől-fényig” vezet, szellős, élhető közösségi térként funkcionál
Funkciók – IV.
Oktatási koncepciónk alapvetése volt, hogy a tanulás tere immáron nem kizárólag – sőt, talán nem is elsősorban – a tanterem: az egyetem minden porcikájával a tanulást kell szolgálja. A tantermeknek és a tanulási tájnak, ha kell frontális oktatás formájában, ha kell, kötetlenebb interakciók révén „harmadik helyként” a lehető legszélesebb spektrumát kell biztosítania a tanulásnak, ez egyéni, elmélyült tanulástól a kiscsoportos együttműködésen át a közösségi eseményekig.
A rugalmasan, sokoldalúan használható terekben az élet önmagát rendezi, tanulók és oktatók számára a lehető legnagyobb mértékben biztosítjuk, hogy környezetüket „magukra” szabhassák. Az általunk elképzelt terek kelően inspiratívak ahhoz, hogy izgalmas életet generáljanak, ugyanakkor kerüljük a túlhatározottságot.
- Az épület fő közlekedési rendszerét jelentő tanulási táj egyfelől tisztán szerkesztett (tájékozódás), ugyanakkor rendelkezik azokkal a rétegződésekkel, egyedi szituációkkal, melyek sokféle használatot tesznek lehetővé (frontális rendezvény helyszínek és intim kuckó jellegű területek, ahová „oda kell találni”).
- A leülőhelyekkel kialakított főlépcsők nézőtér szerű pozíciójuk révén speciális, „rálátó/megfigyelő” helyzetben vannak. Lehetnek egyéni vagy kiscsoportos tanulási helyszínek, de helyet adhatnak csoportos összejöveteleknek, rendezvényeknek, akár kisebb előadásoknak is.

- A tematikusan eltérő „tudású” földszinti kertek és a nagyméretű teraszterületek (függőkertek) mind-mind a hagyományos oktatás egyenrangú kiegészítői.
- A függőkerteknek ezen túl építészeti szerepe is van: intenzív zöldfelületeivel a paloták semleges hátteréül szolgálnak.
Zöldfelületek – a városi és az egyetemi élet találkozási pontjai

Kertek:
- „CAMPUS-tér”: geometrikus fasoraival, valamint fedett/nyitott, süllyesztett közösségi terével az egyetem másik főbejáratát adja, reprezentatív gyülekező és rendezvénytér nyüzsgő diákélettel.
- „Díszudvar”: az Esterházy palota – Központi Hivatal geometrikus reprezentatív előtere, ünnepélyes fogadások helyszíne
- „Festetics-kert” - Egyetemi élet kertje: az étteremhez vezető süllyesztett tér, mely egyben teraszos fogyasztótér is. „Befelé forduló” az egyetemi életre koncentráló kert, ugyanakkor önálló rendezvényhelyszínként is szolgál. Ide került a PAGODA kultikus épülete.
- „Kollégiumi kert”: a kollégiumhoz és saját kávézóhoz csatlakozó kerthasználat.
- „Károlyi-kert” – Meditáció kertje: a Tudományok tornyához és a könyvtárhoz kapcsolódóan kialakított, elmélyedésre ösztönző pihenő- és olvasó kert
- Süllyesztett kert: a pinceszintekhez kapcsolódó, azok bevilágítását szolgáló díszkert
- „Szobrok kertje” – szabadtéri kiállítótér a szomszédos lakóházak magánkertjének folytatásaként. Erre a kertre tájolt a hallgatói központ. A terület tervezésekor kiemelt szempont volt, hogy meglévő/megmaradó lakóépület lakásai néznek rá, ezért mind a kert méretével, mind az ide néző épülettömegek magasságával, mind az ide tervezett csendes funkcióval tiszteletben kívántuk tartani a szomszédok érdekeit. A kialakuló udvar aránya kb. 1:0.8, szélessége kb. 17,0 m, amely együtt az udvar észak-déli tájolásával megfelelő benapozottságat biztosít. A meglévő fák gyökérzetének védelmében a pinceszinten is távolságot tartottunk a telekhatártól.
Koncepcionális döntés eredménye a történelmi kerítések rendszerének megőrzése a Pollack Mihály tér és a Múzeum tér felé. A hagyománytisztelet és kert-logikán túl fontosnak tartjuk a terület ellenőrizhetőségének biztosítását, ami hasznos üzemeltetési adottság: napközben nyitott, a városi élet által használatba vett „köztér”, míg esti órákban zárt, ellenőrzött terület (analógia: Orczy kert).
Homlokzatalakítás
A régi és az új kapcsolódási pontjaiul kifejezetten nem stíluselemeket kerestünk: értelmezni és megérteni kívántunk a történelmi épületek ritmusát. A historizáló épületállomány elsődleges jellege a vertikalitás, következően a teletömbök/homlokzatok arányából, a rizalitos kialakításból, a tornyok rendszeréből. Jelen van ugyanakkor másodlagosan a karakteres horizontalitás is, melyet a lábazatok, osztó és koronázó párkányok képviselnek. Ezt a hierarchikus ritmust tekintettük a közös nyelvnek.

A vertikalitást csiszolt tömbként formált íves kőfelületek, helyenként ceramic fritt-es íves üvegfelületek adják, melyek részint anyagszerűségük, részint folyamatos árnyék/önárnyék játékuk miatt megtalálják helyüket a gazdag ornamentikájú környezetben. A horizontalitást másodlagos jelleggel az osztópárkányok illetve síkba feszített nagyméretű ablakfelületek adják.

Speciális helyzetű a Múzeum utcai tudományok tornya. Ezen a ponton fordul át a pesti szövethez illeszkedő beépítés a paloták és kertjeik léptékére lelépcsőző függőkertes világba: jel, mely az átmenetet jelzi.
Anyaghasználat a koncepcióhoz igazodóan kortárs, de részletei, anyagválasztása és árnyékjátékai miatt ingergazdag megjelenést biztosítanak.


Fenntarthatóság
A kiírással összhangban a terv kiemelt hangsúlyt fektet a fenntarthatóságra. A campus komplex fenntarthatósági koncepcióját az ABUD Mérnökiroda készítette. A koncepció célja az volt, hogy egy minimális üzemeltetési költségű, alacsony karbonkibocsátású campus jöjjön létre, ami egyrészt alkalmazkodik a klímaváltozás következményeként egyre gyakoribbá váló extrém időjárási jelenségekhez, másrészt pedig támogatja az egyetem hallgatóinak, dolgozóinak és látogatóinak egészségét egy komfortos, aktivitásra és társadalmi interakciókra ösztönző kül- és beltéri környezet megteremtésével.

Előbbire példaként említhetjük, hogy a jellemző belvárosi problémaként felmerülő, özönvízszerű esőzések okozta károk elkerülésére átfogó, természetes megoldásokon alapuló esővízkezelési stratégia készült. Eszerint a csapadék amennyire lehetséges, a telken belüli zöldterületeken lenne elszikkasztva, ezen felül pedig esőkertekben és szivárogtató kertekben lenne visszatartva, illetve kéktetőkön és épített tározókban lenne összegyűjtve. Az ily módon összegyűjtött csapadékvíz a zöldterületek öntözésére hasznosítható.

Utóbbira példa a szintén a belvárosra jellemző hőszigethatás jelenségének mérséklését célzó megoldások, mint a tömb átszellőzési irányainak felszabadítása, alacsony albedójú burkolatok alkalmazása, valamint a jelentős területű, több szintes, zöldfelületek és vízfelületek kialakítása. A hőszigethatás csökkentése nem csak a komfortos kültéri környezet megteremtését szolgálja, hanem segíti az épületek nyári hűtési igényének csökkentését, és ezáltal az épület üzemeltetési költségének és környezeti hatásának mérséklését.
További képekért, tablókért katt a képgalériára!
Ha tetszett a cikk, és szeretnél előfizetni magazinunkra, itt teheted meg.


