Erről szóló cikkünk a 140-es, 2017/8-as lapszámunkból közöljük.
Valamikor az 1930-as években Malcolm P. McLean amerikai üzletember túlságosan hosszúnak találta azt az időt, amit a kereskedelmi áruk hajóra pakolására szántak. Orvosolva ezt a problémát úgy gondolta, napokat nyerhetne azzal a módszerrel, ha nagyobb egységekbe tömörítve előkészíti a szállításra váró rakományt. Neki köszönhető, hogy a század közepére kifejlődött a konténeres árucsere, ami forradalmasította a nemzetközi hajózást. Valószínűleg akkoriban senki fejében nem fordult meg, hogy ezeket az időtálló tároló szerkezeteket egyszer költséghatékony szükséglakások emelésére is felhasználják, sőt később elegáns otthonokat is építenek belőle.
Pedig ez utóbbi külföldön egyre elterjedtebb módszer, és olykor egészen látványos elképzelésekről hallani hajózási konténerek felhasználásával. Elég csak James Whitaker híres, kaliforniai sivatagba tervezett Joshua Tree Residence projektére gondolni, ami a jövő évben épülhet meg. De itthon szintén virágzik a műfaj, ám a most bemutatott példához hasonló, attraktív kialakításokat még csak ritkán látni. Sokak számára elképzelhetetlennek tűnik ugyanis, hogy egy nyaraló gondolatán túl állandó otthon teremtésére is lehet vállalkozni ezzel a megoldással. Holott az acélból készült konstrukciók úgy lettek kialakítva, hogy masszívan bírják a terhelést, és persze a tengert.

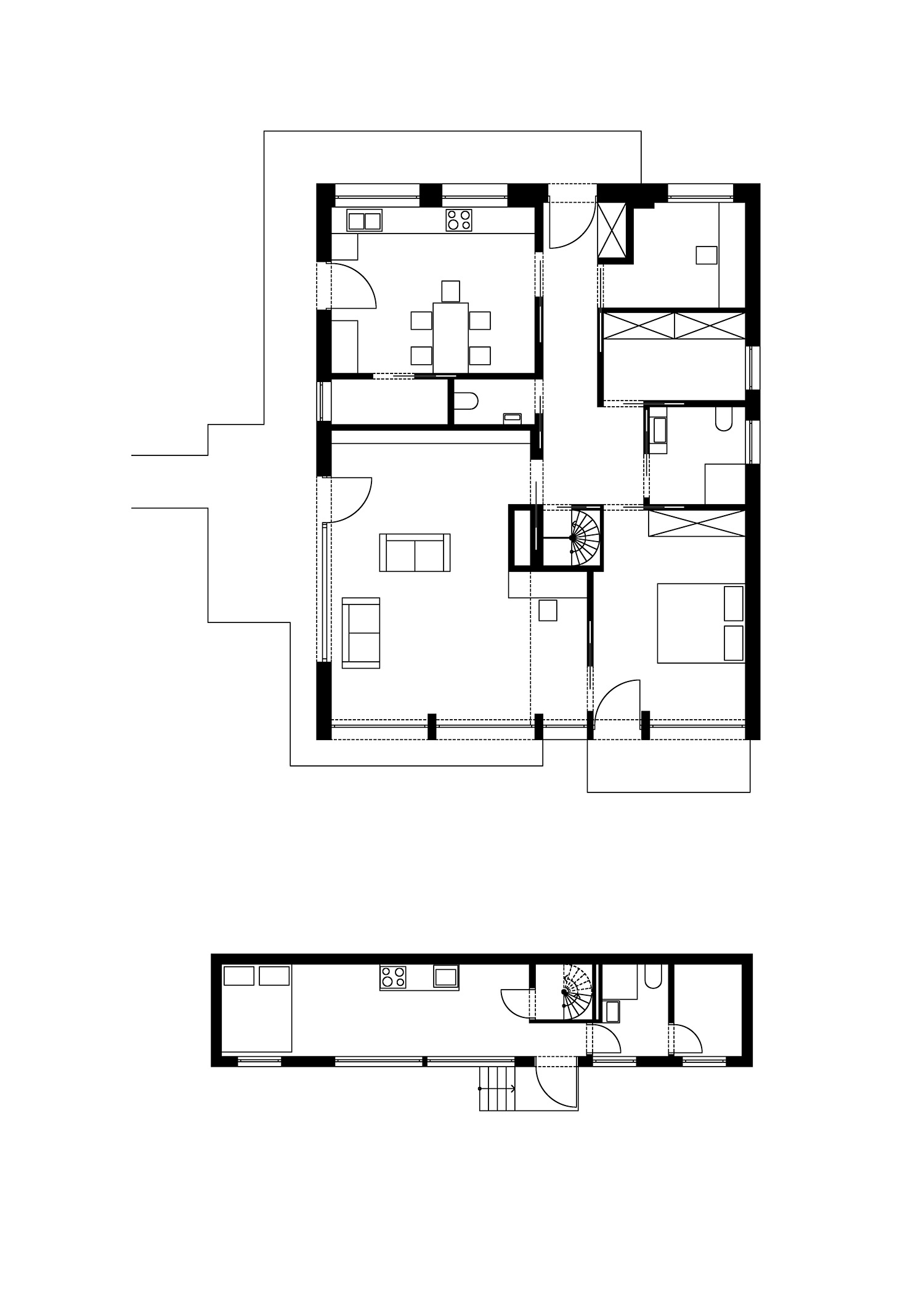
Önhordó szerkezetek, amikhez egyszerűbb alapot építeni, több típusban vásárolhatóak meg, és számos elemet bármilyen formációban össze lehet belőlük illeszteni. Csupor Annát rendkívül izgalmas enteriőrvilágáról és térformálásáról ismerjük elsősorban, ezúttal viszont családtagjai számára egy egész konténárházat tervezett. A szóban forgó épület Budán, egy erdővel körülvett telken áll, ahol nemcsak a szerkezet jelent unikalitást, de a tény is, hogy teljesen akadálymentessé kellett tennie.
Öt azonos méretű konténert használtak fel az építkezéshez. Az egyik vízszintesen helyezkedik el az alsó terepszinten és erre merőlegesen helyeztek el további négy elemet, felfektetve őket a terep magasabban húzódó fokára. Ebből az irányból csupán egy földszintes hajlékot láttat a homlokzat, az alsó modul egy különálló egység, alkalmas akár vendéglakásnak: konyhával egybenyitott hálóval, fürdővel és külön gardróbbal is rendelkezik. A felső rész már a tulajdonosok állandó lakhelye, ahol a tervező hatalmas üvegfelületeket is vághatott a rekeszekre, valamint több oldalfal eltávolításával tágas tereket is létre tudott hozni. Lakói szerették volna, hogy egy hatalmas közösségi hely alkossa a „ház lelkét”, de főbb szerepet kapott a konyha is.

A fürdő, gardrób, háló és a dolgozó e két nagyobb helyiség körül csoportosul, nyílt alaprajzi rendszerben. Padlófelületei mindenhol küszöbmentesek, anyagát tekintve pedig laminált fa- vagy csúszásmentes hidegburkolat a jellemző. Erdő és beltér között a faszerkezetes, előtetős terasz teremt kapcsolatot, ami végül egy hídban folytatódik a család többi tagjának szomszédos telke felé. A tengeri konténerek szabványos belmagassága nem éri el a három métert. Annak érdekében, hogy a tágasság érzete meglegyen, a szükséges szigetelést igyekeztek minél inkább a külső homlokzatra rejteni, a nappali esetében pedig bővítették a belmagasságot.
A régi tető helyett új, rácsos szerkezetből álló mennyezetet emeltek, ráadásul két mennyezeti ablakkal is sikerült növelni a térérzetet. Megkapó homlokzatalakításnak köszönhetően az ember elsőre meg sem mondaná, hogy konténerházról van szó. Esztétikai szempontból érdemes megemlíteni, hogy a sokszor disszonáns fehér nyílászárók helyett elegánsabb szürkés szín illeszkedik a külső, világos faburkolathoz. Lécezett textúrája a szomszédos családi ház megjelenését követi, csupán az alsó vendégház felülete kapott sötétebb színű lazúrozást. Külső és belső így reflektál egymásra. Az infrafűtés kizárólag ezek alatt, rejtve gondoskodik a melegről.

Fából készült a legtöbb berendezés, ahol nem, ott is valamilyen földszín az uralkodó tónus. Klasszikus, otthonos környezet jellemző itt, a szükséges speciális komfortnak is eleget téve. És választ kapunk a bevezetőben feltett kérdésre: míg az elmúlt évtizedekben csak ideiglenes irodáknak szánták a régi konténereket, újabban a hosszú távra tervezett, minőségi építkezésben is van jövőjük. A kivitelezés adott esetben gyorsabb, költséghatékonyabb, és ötletes burkolással kreatívabb is lehet. Manapság közvetlen, lakásnak szánt szerkezeteket is gyártanak, de érdemes a kereskedelemben feleslegessé vált darabokat megvásárolni, mint a jelen példa is mutatja. Az épület ilyen módon az új funkciót teremtő, upcycling mozgalmat is propagálja.
Tervezés éve: 2017
Átadás éve: 2017
Alapterület: 130 m2
Építész tervező: Csupor Anna - MOSSKITO
További képek a cikk végén található galériában!
Ha tetszett a cikk, és szeretnél előfizetni magazinunkra, itt teheted meg.


