Herczeg Tamás, a Debreceni Egyetem hallgatójának Borsos József Diplomadíjas diplomamunkáját a tervező leírásával mutatjuk be.
A párbeszéd kezdete: Több mint tíz éve foltozgatják, javítgatják a nagyváradi várat és környezetét, de mi van, ha nem elég beparkosítani a bástyák területét és egy sor téglával prezerválni a romokat? Mi van, ha radikálisabb szemléletmódbeli váltásra van szükség ahhoz, hogy újra igazán a város része lehessen a vár?

Absztrakt
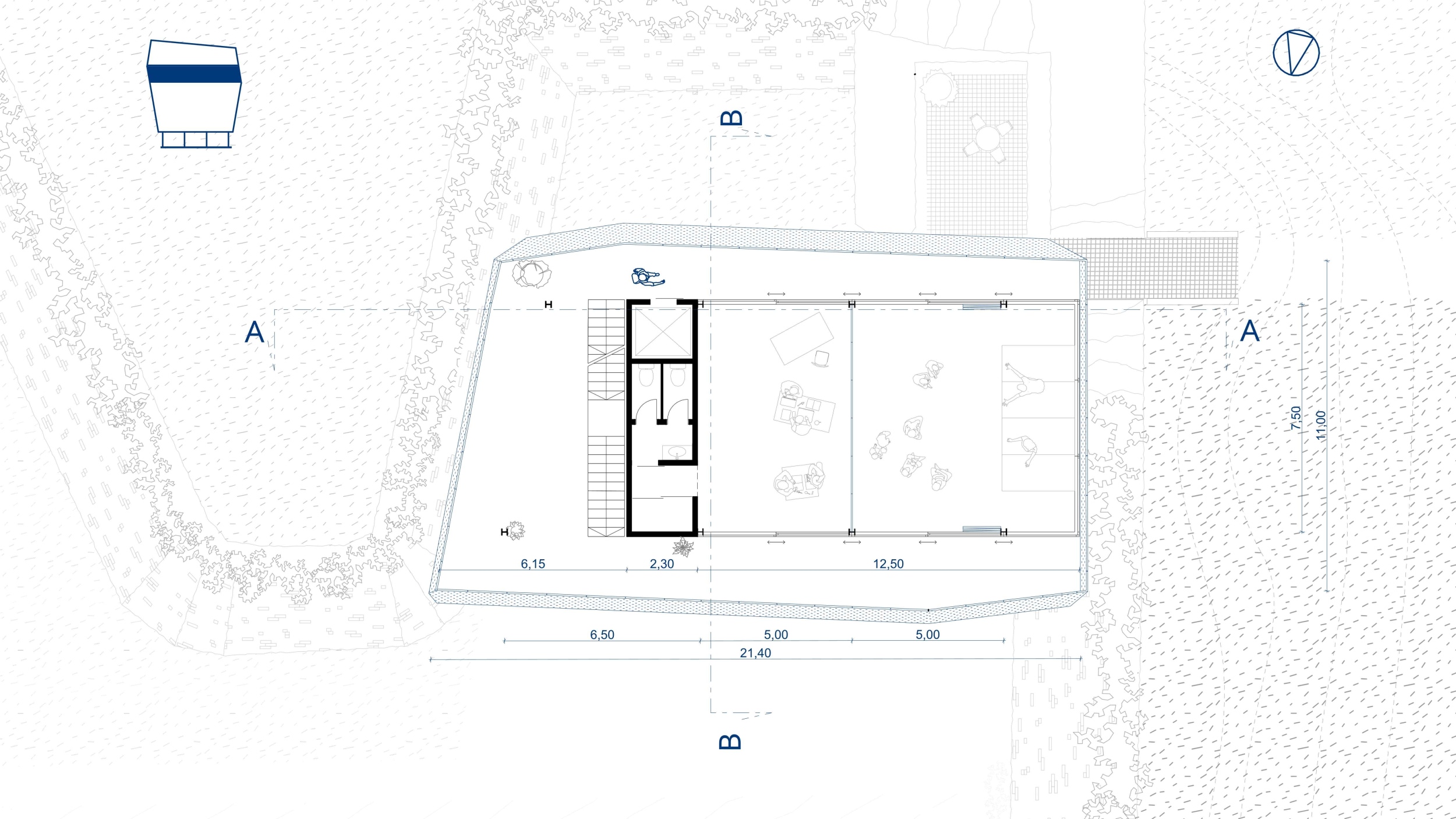
Az általam tervezett épület a nagyváradi vár egyik újolasz bástyájának elhagyatott öblében kap helyet, célja a vár városi életbe való integrálása. Két fő funkciót lát el: civil kezdeményezések számára biztosít irodai teret, valamint helyet ad közösségi eseményeknek. A funkciók vertikálisan elkülönülnek, a kapcsolatukat tágas, fedett-nyitott közlekedők segítik, melyek találkozási pontként is szolgálnak. Az acél pillérvázas épület perforált homlokzattal szoborként jelenik meg, párhuzamot vonva a várfal monumentalitásával és tömegével, miközben anyaghasználatával és formájával kontrasztot képez. Ez a radikális és karakteres beavatkozás szándékosan jelzi a szemléletmódbeli váltást.

Funkcionális kapcsolatok
Az eltérő funkciók külön lettek választva, hogy azok ne zavarják egymást. Az épület vertikális térszervezése által egy szinten egy funkció kap helyet. Ezt az elzártságot a nyitott és tágas közlekedő kompenzálja. Néhol egészen megnő a mérete, így másodlagos, fedett-nyitott terek alakulnak ki, amik találkozási pontokként szolgálnak az épületben, ezzel is elősegítve a szociális interakciók létrejöttét. A kávézó is ilyen találkozási pont, hiszen ez szolgálja ki az iroda szinteket is, így itt könnyen tudnak kapcsolódni a létesítményben dolgozók és a vendégek.

Használat
Az épület két fő feladatot lát el. Helyet szolgáltat civil szervezeteknek és más alulról indított kezdeményezéseknek, valamint tereket biztosít közösségi eseményeknek egész évben, így segítve a nagyváradi vár környékének visszavonását a város életébe. Ez a két funkció kiegészül egy kiszolgáló egységgel, ami az irodák és a közösségi szintek között helyezkedik el, átmenetet képezve köztük, ezzel is segíti a különböző funkciók zavartalan működését és egyben ellátja az egész épületet.

Helyszín
Tervezés során a várat, mint talált környezetet kezeltem és érdekes téri helyzeteket kerestem. Ilyen téri helyzetnek találtam a funkcióját vesztett újolaszbástyák – régen a biztonságos ágyúzást szolgáló – öbleit. A Keleti kapunál tavak is ki lettek alakítva és itt helyezkedik el a vár egyik bejárata is. A növényzettől burjánzó tóparti környezet és a frekventált elhelyezkedés miatt esett a választásom a Veres-bástya Keleti kapu felőli öblére.

Beépítés
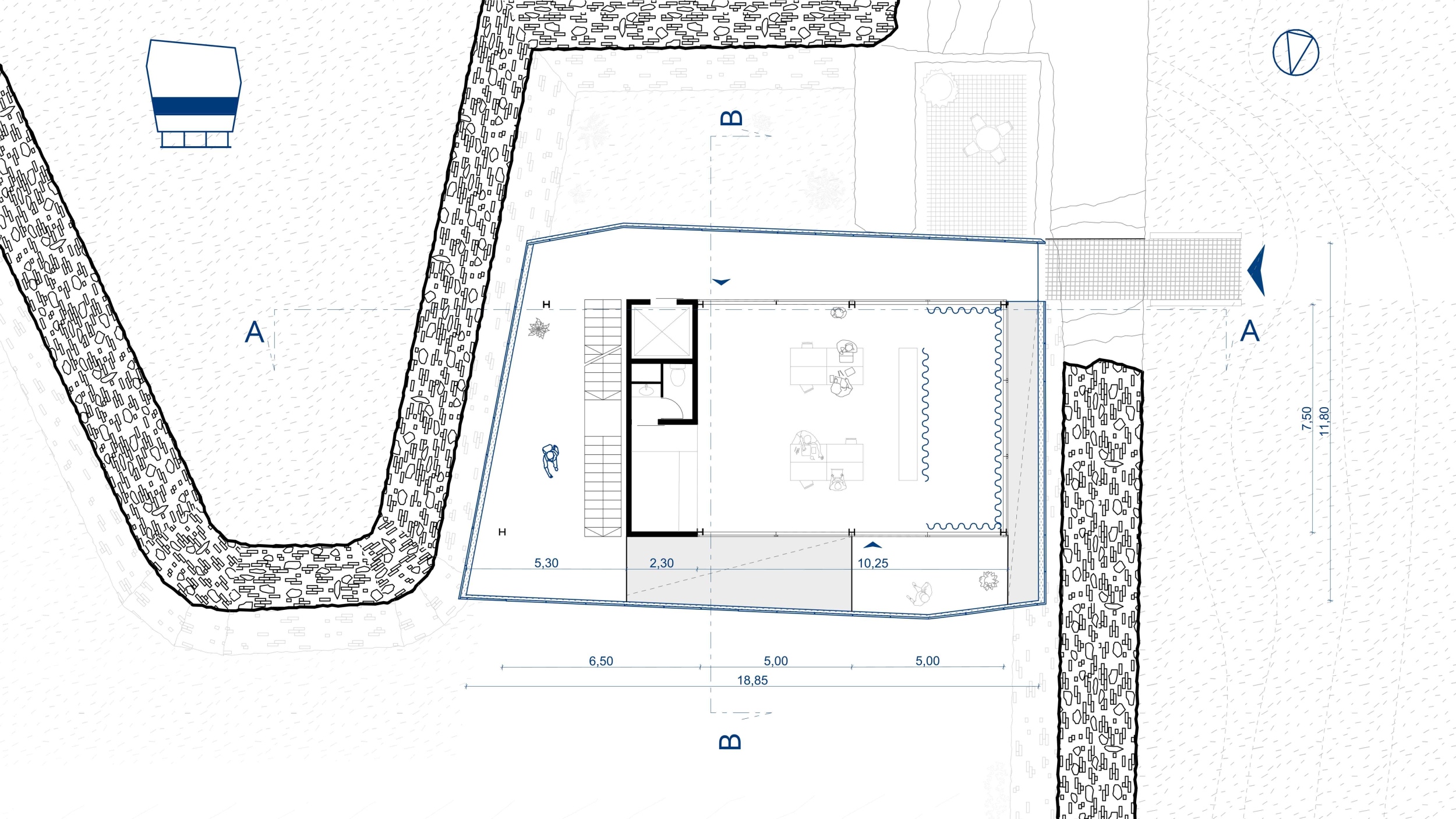
Az épület a várfal által kialakított öblöt lakja be, egy belső udvart hagyva és a földszintet teljesen megnyitva, ezzel megteremtve a várhoz való kapcsolódás lehetőségét. Ugyanezt a várral való kapcsolatot erősíti a vertikális térrendezéssel létrejött közlekedő, ahol a perforált homlokzatburkolat által folyamatos vizuális kapcsolatban vagyunk a várfallal.

Környezetbe illesztés
Az épület nem próbál belesimulni környezetébe, tömegében és szoborszerűségében egyezik a várfallal, de felületével, formájával kontrasztot képez vele, mint új tájékozódási pont jelenik meg a várban, ezzel jelezve a radikális változtatás szükségességét, ha vissza akarjuk kötni a várat a város életébe.
Szerkezet
Az épület szerkezete acél pillérvázas, egy középső merevítő beton maggal. A pillérvázon konzolosan túlnyúló bennmaradó kompozit trapézlemezes beton födémek a várfalhoz egészen közel tudnak férkőzni, de nem érnek hozzá. Horizontálisan ezek a födémek kitöltik a rendelkezésre álló helyet, vertikálisan pedig a vasbeton mag fut végig, ami merevíti a szerkezetet és magába foglalja a liftet és kiszolgáló funkciókat. A fő funkcióknak üvegezett terek adnak helyet.

A burok
Az épület homlokzata, RAL 5002 színezésű expandált lemezből készül, ezzel egy külső burkot képez és meghatározza a szoborszerű tömeget. Az expandált lemez az épületen körbefutó fedett-nyitott közlekedők külső lezárásaként funkcionál, így egy fedett átmeneti teret hozva létre. A lemez lyuknagysága lehetővé teszi, hogy kívülről zárt tömegként tűnjön fel az épület és belülről mégis kilátási lehetőséget biztosít. Egyes helyeken nagyobb lyuknagyságú a lemez, ezzel lehetővé téve a jobb kilátást az épület tetejéről és a várfalra néző oldalsó részein.
Környezetrendezés
Az öblöt – a tervezett belső kert növényzetének kivételével – meg kell tisztítani, hiszen jelenlegi állapotában a természet uralja. A beépítési hozzáállást követve, minimális mértékű tereprendezést alkalmazok, a vár felől mindössze egyetlen helyen pengefalak szorítják ki az új beérkezéshez szükséges földtömeget.
Ha tetszett a cikk, és szeretnél előfizetni magazinunkra, itt teheted meg.


