Továbbgondolták az eredeti téglaépületet az érdi szakiskolánál, és minden igényt kielégítő bővítést vittek véghez, így a szeptemberi iskolakezdésre megújulva várja az intézmény a tanulókat. Erről szóló írásunkat a 192-es, 2024/4-es lapszámból közöljük.
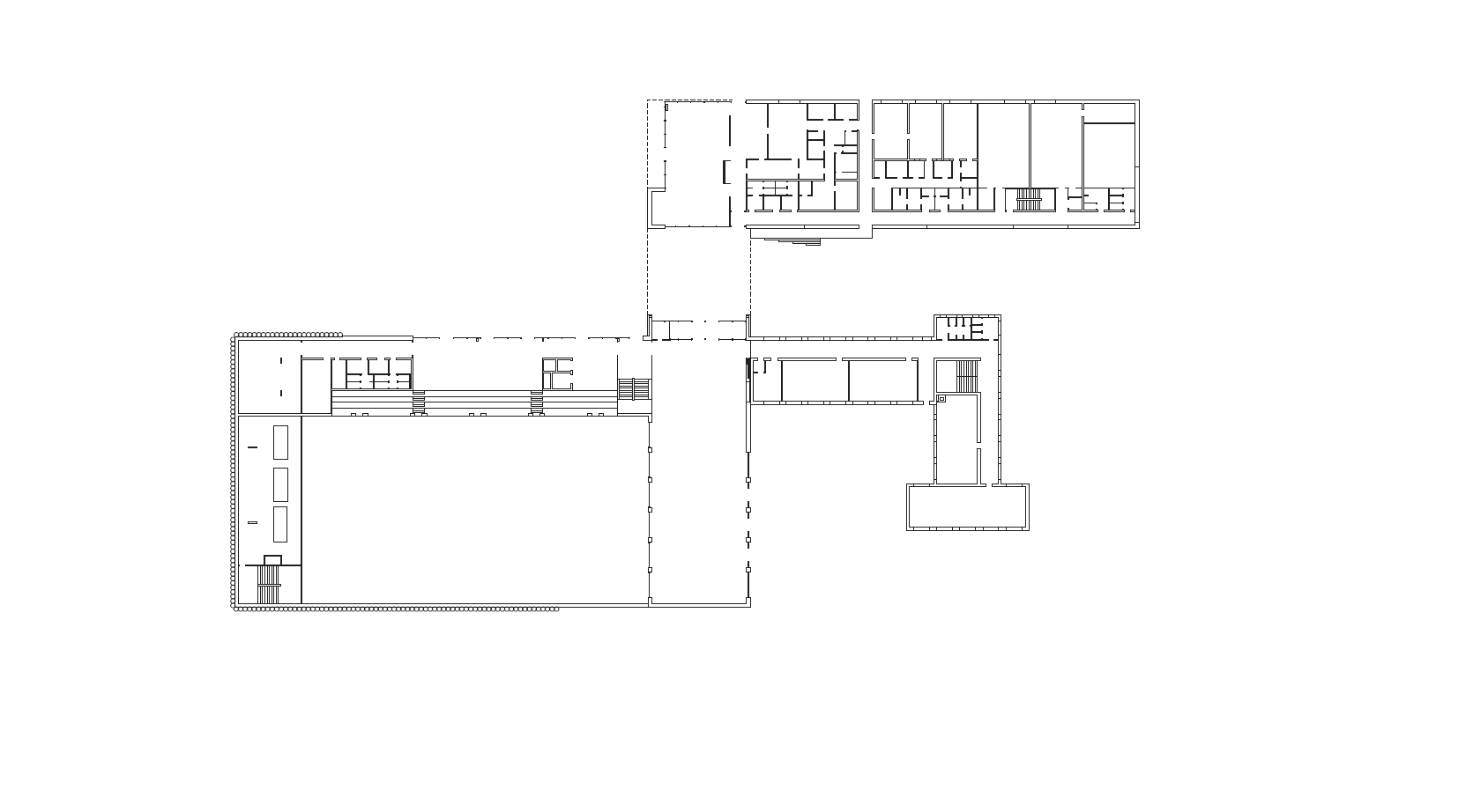
2022-ben készült el Érden a Kós Károly Szakképző Iskola bővítésének első üteme Csillag Katalin és Gunther Zsolt tervei alapján. A 3h építésziroda meghívásos tervpályázaton nyerte el a megbízást. Koncepciójuk lényege az eredeti, hetvenes évekbeli téglaépület továbbgondolása volt, amely az eddig hiányzó közösségi terekkel és tanműhelyekkel korszerű, az intézmény mai igényeit kielégítő, de a régi értékeit is megtartó módon, kisebb városi univerzummá emeli az iskolát. Az elsődleges cél mellett az is fontos szempont volt, hogy a várossal való kapcsolat megerősödjön. Ezt a hozzáépítések tették lehetővé, az iskola telkén hosszában átfutó sétány két oldalán elhelyezkedő épületeket a magasban egy hídszerű elem kapcsolja össze.

Az első ütemben a kisebb, ma már alig használható építmények elbontása, az északi épületszárny megépítése és benne a régóta hiányzó aula, valamint a földbe süllyesztett tornacsarnok készült el. Most, 2024 tavaszán befejeződött a második ütem is, és felragyoghatott a teljes kompozíció: az L alakú régi téglaépülethez kapcsolódó, keresztirányban beékelődő szárny, amely műhelyeket, éttermet, tankonyhát, raktárakat, öltözőket foglal magába.
Élményszerűen teljesíti ki a tervezők eredeti vízióját, amely a régit megtartva és folytatva, egy komplex épületcsoport kortárs egységbe ötvözésével kelti új életre az iskolát. A teljes alaprajz négy udvart fog közre, mindegyik más célt szolgál: az első ütemben már létrejött az eredeti téglaépület és az új szárny közötti kisebb udvar és a tornacsarnok fölötti, pihenőkkel és növényekkel komponált tetőkert, most pedig megvalósult az új főbejárat előtti gyülekező-zsibongó udvar és a hídépítmény mögött egy tágas, oldallelátóval kiegészített sportudvar is. Ezzel az iskola élete új szintre lépett, a külső és belső terek együttese sokrétű használatot, az együttlét változatos formáit kínálják.

A második ütem leglátványosabb eleme a két párhuzamos szárnyat összekapcsoló kapumotívum, amelyben az iskola könyvtára kapott helyet. Hajlított fémlemez borítás vonul végig rajta, ipari jellege az iskola profiljára utal, és egyértelműen jelzi kortárs karakterét. A lamellasor fátyolként fedi el a második emelet magasságában hídként megfogalmazott könyvtár homlokzatát, majd folytatódik az egyszerű geometriával megfogalmazott műhelyházon is. A fémlemez-sor a mögötte nyitott ablakokon át beengedi a természetes fényt a belső terekbe, de árnyékolóként is jó szolgálatot tesz; hol átsejlik mögötte a felülről megnyitott tér, hol zárt kubust takar. Az egynemű, sötét tónusú burkolat így egyszerre zárt és nyitott, s azáltal, hogy mintegy végigfolyik az egymásba ékelődő két épületszárnyon, a folytonosságot hangsúlyozza. A város felé néző külső homlokzaton a fémborítást a felület mögé mélyen visszalépő ablakok törik meg, és a földszinten a műhelyház sarkai is egy nagyobb kimetszéssel nyílnak meg; ez a gesztus a város felé kínál kapcsolódást.
A továbbépítés a mai magyar építészetben – különösen a hetvenes évek architektúrájának megbecsülésével együtt – ritka jelenség. Meglátni egy régi, már nehezen használható épület értékeit, felismerni benne a mára érvényes lehetőségeket, és formaképzését továbbgondolva, anyaghasználatára kortárs válaszokat adva, folytatni, ami ott volt – ez a hozzáállás azt sugallja, hogy a tervezők nem csupán az épületben, hanem a város egészében gondolkodtak.

Olyan iskolát adtak az itt tanuló mintegy 800 diáknak, amely nem nullázta le a tanulásuk eddigi helyét, hanem annak ortogonális szerkesztésmódját észszerűen folytatva, méltósággal és kreativitással teli terekbe foglalja a komplexumot. Ez a kis „város” a maga részleteivel, egyszerű, de látványos színeivel és formaképzésével megbecsültté teszi a szakipari tanulást, lehetőséget ad a diákoknak, hogy maguk fedezzék fel a racionális, ugyanakkor ötletes térkapcsolatok értékeit – építészeti eszközökkel bátorítja őket a lehetőségek kiaknázására.
Tervezés éve: 2016 – 2017
Átadás éve: 2024
Projekt nettó alapterülete: 9171 m2
C épület nettó alapterülete: 1474 m2
Vezető építész tervező: Csillag Katalin, Gunther Zsolt (3h építésziroda)
Projektvezető: Farkas Ádám
Építészmunkatársak: Garay-Kiss Dorottya, Novák Veronika, Boromissza Júlia, Csépke Tamás, Kiss Anna Sára, Rab Sarolta, Reményi Petra, Tari Krisztina, Tommaso Laezza
Tájépítész: Kapás Enikő
Megbízó: Érd Megyei Jogú Város Önkormányzata
További képek a cikk végén található galériában!
Ha tetszett a cikk, és szeretnél előfizetni magazinunkra, itt teheted meg.


