A Deichler Jakab Stúdió gondolatai a tervezésről
A közelmúltban hirdettek eredményt a Magyar Építészeti Központ és Múzeum tervezésére kiírt pályázaton. Nem mindennapi építészeti feladatról van szó, amelynek itthon egyáltalán nincsenek előképei. Kíváncsiak voltunk, milyen gondolatok vezették a tervezőket, ezért felkértük a nyertes és díjazott pályázókat, osszák meg velünk, mi minden inspirálta őket. Minden csapat ugyanazokra a kérdésekre válaszolt, reméljük tanulságos és gondolatébresztő lesz olvasóink számára is. A közlés nem a díjazás, hanem a válaszok beérkezésének sorrendjében történik. Következzen a Deichler Jakab Stúdió tervezőinek véleménye, akik a Fejérdy+ Bartók Műteremmel közös pályázatukért részesültek harmadik díjban.
Milyen egy korszerű építészeti múzeum?
Az építészet a helyteremtés művészete.
Az építészeti múzeum sem kell, hogy más legyen, mint egy jó hely, amely az építészet erejével képes a helynek identitást adni.
A múzeum szóhoz gyakran a múlt emlékei tapadnak. Úgy gondoljuk a kortárs múzeum azonban az emlékek őrzése és bemutatása mellett a szellemi párbeszéd helye kíván lenni. Az épület nyitottsága üzenetet hordoz: befogadó, megérthető, átlátható és közben erőt sugárzó. Nem akar önmaga emlékműve, szentélye lenni, de ünnepélyességével hitelesíti az építészet, mint a tér és hely alkotás művészetének elementáris élményét és szükségességét.
Tervünkben a múzeum a tudás megosztásának, átadásának helyeként inspiratív, élő, szakmai diskurzust fenntartó hely, mely a társadalom szélesebb rétegeit is meg tudja szólítani.
Hogyan lehet az építészetet kiállításon bemutatni a 21. században?
A huszadik század információs, kulturális és társadalmi változásai fokozatos átalakulással vezettek az új muzeológia kialakulásához, mellyel együtt a múzeum szerepe is átalakult. Az ismeretek befogadása mellett mára már egyre inkább élményekre is vágynak a látogatók. A múzeumok érintkezési felületként, contact-zone-ként értelmezhető intézményekké váltak, mely már a gyűjteményekkel kapcsolatos aktív részvételen is túlmutat, azzal párhuzamosan jelentkezik.
Ennek következtében egyrészt az aktív résztvevőket, változatos eseményeket befogadó közösségi terek mérete nagy mértékben növekedett, másrészt az épületek megnyíltak, mind a külső kapcsolatok, mind a korábban a zárt térrendszerű útvonalak vizuális és fizikai kapcsolatokkal való oldásának tekintetében.
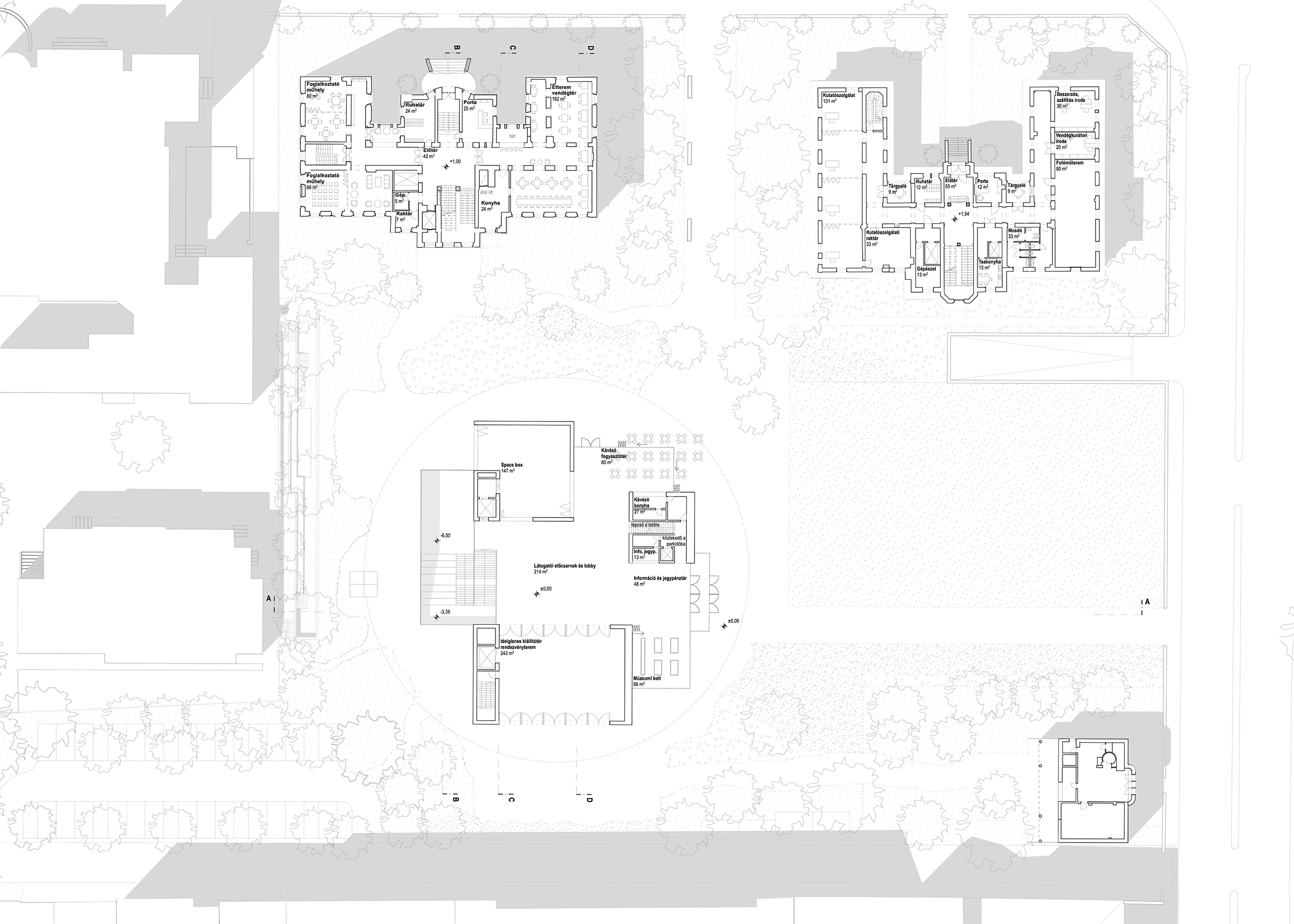
Ezt tükrözik a tervünk eltérő karakterű és működésű terei. Az állandó kiállítás jellegéből adódóan klasszikusabb, teremről teremre végig járható, magába forduló formában, a Herczel- Épületben, (az egyik történeti villában) kap helyet. Az Új Főépületben a látogatók sokkal aktívabb jelenlétével számolunk. Az itt létrehozott terek egy része tágas, osztható és napfényben gazdag (ideiglenes kiállítótér), a másik része (space box és rendezvénytér) határai nagyban alakíthatók, ezáltal szinte a kert és a lobby folytatásává válnak.

Mi a múzeum feladata? Gyűjtés? Gyűjteménykezelés? Kiállítás? Ti mire fókuszáltatok a tervezés során? Voltak-e nehézségek a kijelölt helyszín, illetve program vonatkozásában?
A legnagyobb kihívást az jelentette számunkra, hogy a telken található épületek (meglévő és tervezett) közötti kapcsolat kialakítása, a helyszín belakása és a program legyen összhangban.
A Herczel épület és az Új Főépület tartalmazza a közönségforgalmi tereket, így ennek a két épületnek a kapcsolata sokkal hangsúlyosabb, mint a többié. Fontos volt számunkra, hogy ez koncepcióalkotó legyen a tervünkben: nem csupán egy bármelyik két épület közé elhelyezhető közlekedőt szerettünk volna kaialkítani, hanem a két épület téri összefüggésének lehetőségeit kerestük. Az Új Főépület a parkban feloldódó alakítható, szabadon használható térstruktúrát alkot, a Herczel - Épület klasszikus, sokkal inkább meghatározott rendeltetésű zárt terek sorát foglalja magába. A múzeum sokszínű használata szempontjából mindkettőt fontosnak érezzük, ezáltal tervünkben a két különböző karakteren átvezető múzeumi áramló útvonal töretlen és nagyvonalú.
Az épületeggyüttes egysége szempotjából a többi epület esetén a vizuális kapcsolat meghatározó. Alapvető célunk volt, hogy tervünkben a kert és az azt körülölelő épületek osztatlansága, átláthatósága megmaradjon: a Walter Rózsi villából továbbra is rá lehessen látni az egykori szanatóriumi épületekre, vagy a hatos, hetes épületből láthatóak maradjanak a szanatóriumok és a Walter Rózsi villa. 
Ikonikus jelre van szükség, vagy semleges, befogadó, jól működő épületre, amely tartalmával kommunikál?
Nem hisszük, hogy a kettő kizárná egymást. Természetesen, ha csak ikonikus akar lenni valami, gyakran rosszul működik. Egy befogadó, jól működő épület nem szükségszerűen semleges. A tartalom gazdagsága nincs ellentétben egy jól formált házzal. Míg a tartalom a kurátor kézjegye, a ház az építészé.
Úgy gondoljuk, hogy inspiráló sokszínű terek létrehozása hat az épület használatára, nem csupán megfelelő helyet biztosít, elő is segíti a benne foglalt események létrejöttét.
Ebben a folyamatban pedig nagyon fontosnak érezzük, hogy ezek az események – legalább egy részük – láthatóak legyenek, ne csupán egy ikonikus forma vonza oda a látogatókat, hanem maguk az épületben zajló események, tevékenységes is táruljanak föl számukra. Ezáltal az is bemehet az épületbe, bekapcsolódhat a programokba, aki nem tervezte, mely nagyban hozzájárul a múzeum hosszútávú működésének megalapozásához.

Voltak előttetek külföldi és hazai példák?
A publikus terekhez való viszonyunkat nagyban inspirálta a Moreau Kusunoki Guggenheim Helsinki pályázati anyaga. Emellett azokat a példákat kerestük és tanulmányoztuk, ahol a tető úgy jelöli ki a helyet, hogy közben nem képez éles határt a kint és a bent között. Az alatta lévő tér védetté válik, ugyanakkor a környezeti kapcsolatok megmaradnak, ilyen Makovecz Imre, Hármashalom oltára (1997) , vagy Dianóczki János, Tihanyi rév kikötőépülete (1962)
![]() ![]() |
A pályázattól függetlenül is meghatározó számunkra Sou Fujimoto idézete:
“Az építészet egy tetős kert. A kert tető nélküli építészet”

A kert, a természet számára és számunkra sem a hagymányos zöld értelemben vett előkép, hanem a tér használatának határozatlansága, végtelen kiterjedése szempontjából. A cél ezáltal olyan összefüggő térstruktúra létrehozása, mely számtalan lehetőséget biztosít kapcsolatok létrehozására:
- a többi látogatóval való interakciókra,
- az épületekben folyó esményekbe bekapcsolódásra,
- a szűk környezettel, mint a szomszédos épületekkel létrehozható kapcsolatra,
- illetve tág környezettel való kapcsolat kialakítására,
- a természetes környezet megtapasztalására.

![]() ![]() |

A sorozat korábbi részét, a Vikár & Lukács Építész Stúdió gondolatait itt olvashatjátok.
Ha tetszett a cikk, és szeretnél előfizetni magazinunkra, itt teheted meg.


