Erről szóló írásunk a 138-as, 2017/6-os lapszámunkból közöljük.
Egy skicc frissessége társul fegyelmezett szerkesztéssel, szerkezet találkozik esztétikával az Álmosdi Árpád, Pölös István és Csendes Mónika építészek által, a szolnoki Tabánba tervezett lakóépületben.
Volt egy bizonyos jelenet a Testről és lélekről című filmben, ami magasan kiemelkedett az egyébként is rendkívül szépen fényképezett anyagból. Annyira kiugró volt, hogy Enyedi Ildikónak végül ki kellett hagynia a végső változatból. Az alkotás csodája és tragédiája, hogy néha le kell mondani arról, el kell engedni azt, ami a legértékesebbnek látszik, hogy a nagy egész létrejöhessen. Ilyen lemondások során át vezetett az út ahhoz a házhoz, ami végül – talán éppen ezáltal – megtisztulva kerülhetett ki a tervezők asztaláról.

Régi parasztház állt a helyén, megtartását, felújítását a tulajdonos és az építészek is kívánatosnak tartották volna. Egy nagy múltú városban, amelyben azonban a történelem alig hagyott fizikai emléket, viszonyulási pontot, természetes módon értékelődik fel mindaz, ami hagyományos. A fa oromzatos kis vályogház azonban száz év alatt menthetetlen állapotba került. A szabályozások megváltozása miatt visszaépítése sem volt lehetséges, így adta át a helyét egy mai architektúrának.

Ez a ház azonban már nem bírta el magán mindazokat az egyébként szeretett, míves, múltba tekintő részleteket, mint a tornác fafaragásai vagy az egykori épület halászvarsából készített deszkaborítása. Levetette magáról a fa oromzatot is, ami valaha Máramarostól idáig a Tiszán úsztatott szálfákból készült. A tervezők lassan és kényszerűen elengedték mindazon sorvezetőket, amik először még oly' fontosnak tűntek: a ház ekkor önálló életre kelt és fejlődésnek indult. Az új azonban egyszerre titokzatos is; többé már nem fejthető meg egyszerűen a régi ház nyelvén beszélve.
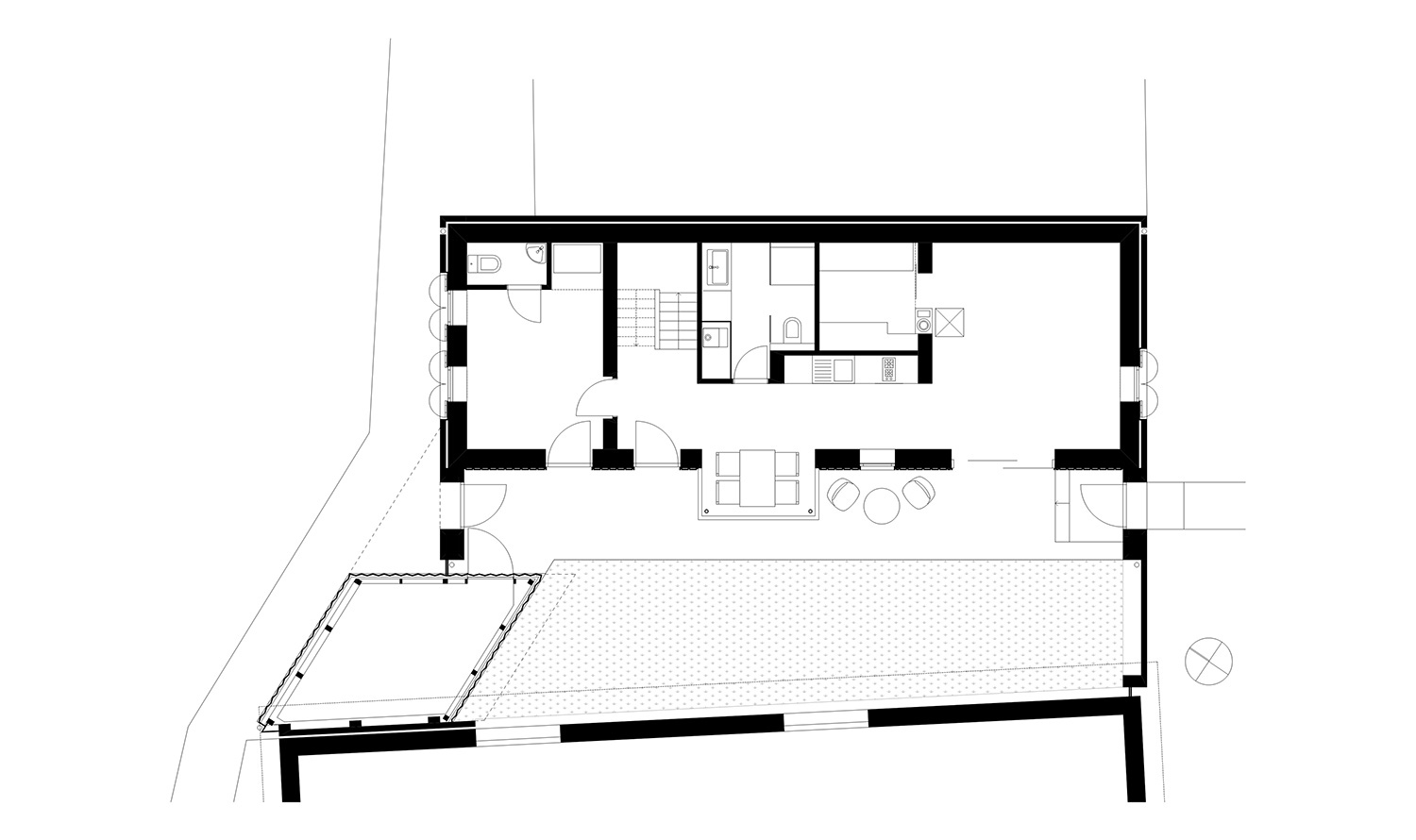
Egy kis köz és a Zagyva-parti sétány közé ékelődik be az a szűk telek, amelyre a szabályozás szerint zártsorú beépítésnek kellett kerülnie. Furcsaság, hogy az utcával párhuzamosan futó tetőgerincet írtak elő - igaz, ez alól a környék kialakult állapotára való tekintettel felmentést kaphatott az épület. Így formálódott meg a telek két végére állított fehér oromfal és ezt a keményebb héjat „kifeszítő” bensőségesebb, fa és üveg szerkezetű épület, amely a part felé puritán, fehér végfallal néz.

A gyalogos köz felől a kerítéssel egybeépített fa kerti tárolóval követi a telek hegyesszögű vonalát. Aszimmetrikus tető alá rendezték a belső tereket és a tornácot – utóbbi tengelyként átvezet az egész telken, új értelmet adva a hosszanti átmeneti térnek. Egyedül az étkező üvegdoboza lép ki a fal síkjából. A tető aszimmetriáját egyensúlyozza ki az az oromfallal egybeépített kerítés, amely létrehozza a nagyon markáns, fehér síkot a sétány felőli fronton. Három dimenzióban megvalósult építészeti alkotásnál rendkívül ritka, hogy egyetlen nézete ilyen erős grafikus jelképévé váljon a háznak.
Sajátos ritmikájával, piktogramszerűségével túllép a sokat emlegetett archetipikus házformán és egy teljesen más szinten rekonstruálja azt. Síknak mondtuk az imént, hiszen vakító fehér felülete mintha csak egy első, jól eltalált skicc lendületes vonalának kitöltése lenne. Ráközelítve azonban a fal mélységet kap, amelynek csak első rétege a tégláinak rajzolata. Ablak-szemén keresztül a héj mögötti üveg és fa dobozra látunk rá, a „burkolatváltás” őszintétlensége nélkül.

A téglák között hézagosra hagyott függőleges fugák kottasora akár egy minimalista felfogású zeneműé is lehetne. Ha ez nem volna lehetetlen, patikamérlegen kimért intuitív alkotásnak kellene neveznünk Álmosdi Árpádék koncepcióját. Nevezték már modernnek és hagyományosnak is – én egyiknek sem látom. Sokkal inkább szuverén, önmaga jogán létező épületként tekintenék rá, amely a nála lényegesen kevésbé nívós környezetéhez elegáns mozdulattal képes lehajolni, hogy megemelje és humanizálja.
Tervezés éve: 2013 – 2014
Építés éve: 2014 – 2014
Bruttó szintterület: 160 m2 (nettó 98 m2)
Építész vezető tervező: Álmosdi Árpád (Ártér Építész Műterem)
Építész munkatársak: Csendes Mónika, Pölös István
Statika: Vasas Erika (BEREK-TERV)
Gépészet: Pavlics György (PPR PLAN)
Villamosság: Nagy Attila (Rekonterv)
Bútorok: Jánszky Györgyi
További képek a cikk végén található galériában!
Ha tetszett a cikk, és szeretnél előfizetni magazinunkra, itt teheted meg.


