Erről szóló cikkünk a 145-ös, 2018/5-ös lapszámunkból közöljük.
Az eredetileg háromlakásos, a hatvanas években épült társasház mára gyökeresen új profilt kapott: a korábbi, egyszerű kockaházból egy mozgalmas tömeget mutató, funkcionalista családi ház született. Az árnyékoló előtetők és az újonnan formált teraszok teszik dinamikussá a letisztult külsőt, a praktikusan kialakított enteriőrök pedig igazán kényelmessé varázsolják a budai otthont.
Nem ennek a társasháznak az átalakítása volt az első közös projektje a BAHCS építésziroda tervezői és a ház tulajdonosai számára: egyrészt már régebbről ápolnak ismeretséget, illetve az építészek már korábban is terveztek a tulajdonosoknak. A közös munka ezúttal is gördülékenyen ment, mivel mindkét fél célja alapvetően ugyanaz volt: redukált anyaghasználattal egy élhető és minden szempontból kényelmes otthon komponálása, amely megfelelő színteret nyújt az elvonulásra, ugyanakkor alkalmas nagyobb társaságok befogadására is.

A fő koncepció az volt, hogy a ház tömegét mozgásba hozzák a funkcionalizmus elvét követve. Az eredeti társasház déli, hátsó kert felőli homlokzatának erkélyét levágták, amelynek köszönhetően egységesebb látvány született, és nem utolsósorban egy tágasabb kültér jött létre. Ez egyfajta klasszikus kertkapcsolatot képez az első emeleti nappalival, ugyanis a hátsó kert az épület első emeletével került egy magasságba, amely lényegében az élettér meghosszabbítása. Az épület keleti oldalán az alsó erkélyt szintén „leválasztották”, és a felső emelet tetőzárófödémére pedig egy árnyékoló párkányt illesztettek.

A garázs felőli északi oldal is eltérő képet mutat az eredetihez képest, hiszen a beállók fölé is került egy erkély, amely előtető és egyben árnyékoló funkciót is betölt: alá az eső és a hőség elől is be lehet húzódni. Az említett erkély fölött a második emeleten egy öbölszerű beugró készült, ez dinamikát ad a homlokzatnak, és megtöri az egyébként zárt kubust. A pálcás acélkorlát mindenhol visszaköszön, így a karcsú korlátok egyensúlyba hozzák a masszív tömeget. A homlokzatok sötétszürkére festett vakolatát vékony, azonban ellenálló, táblás fa kompozit lemezek törik meg, amely érdekes karaktert ad a háznak, de az épület egészét kívül-belül a sötét és világos árnyalatok, a fa és vakolat, továbbá az üveg kontrasztja alkotja.

A belsőépítészet tekintetében szinte teljes egészében a tulajdonosok elképzelései érvényesültek, ugyanis minden egyes bútort maguk terveztek meg és kiviteleztettek. A szekrények és tárolók nagy része falba épített, amely igazán okos megoldás, hiszen így nem vesznek el helyet a térből. A berendezéseket illetően dominálnak az üvegezett felületek, s mivel a bútorfrontok nagyrészt üvegből készültek, így a látványban még hangsúlyosabb a letisztultság. Az általuk tervezett bútorok a lakás minden pontján fellelhetők a nappalitól kezdve egészen a fürdőszobák berendezéséig, a kiegészítő bútorokat is – például egy kisebb szervírozó asztalt – beleértve.

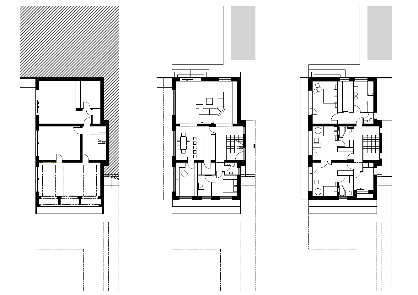
A főbejárat kialakítása nem megszokott szituációt mutat, mivel a lépcsősor félemeletre érkezik, majd innen nyílik a korábbi zárt lépcsőház, amelyet viszont teljesen megnyitottak, így egy szellős lépcsősort formálva – ezen megközelíthető meg a pince és az emeleti helyiségek. Az épület pinceszintjén eredetileg egy bőrdíszműves műhely működött, amely most a tulajdonosok családi és társasági életének jelentős centruma lett. Az első emeleten kapott helyet a már korábban említett nappali és konyha, a legfelső szinten pedig elsősorban háló- és fürdőszobák találhatók – a legfelső szinten számos ponton alkalmaztak opeionokat, kisebb nyílásokat, amelyeken keresztül beszűrődhet a természetes fény, a mesterséges világítást pedig LED izzókkal oldották meg. Az elsősorban középületek tervezésével foglalkozó BAHCS építésziroda így egy igazán praktikus és kényelmes otthont hozott létre, mellőzve mindennemű öncélúságot.
Alapterület (nettó): 389 m2
Tervezés éve: 2013
Átadás éve: 2014
Építész tervezők: Báger András, Helmle Csaba (BAHCS Művek)
Építész munkatársak: Báger Nóra, Zétényi Zsófia
Statikus: Ambrus Roland
További képek a cikk végén található galériában!
Ha tetszett a cikk, és szeretnél előfizetni magazinunkra, itt teheted meg.



