Cikkünk a 204-es, 2025/8-as lapszámunkból közöljük.
Egyszerűnek tűnik, mégis roppant nehéz feladat „felnőtteknek” gyermekek számára tervezni, gúzsba kötve lenni közben a hagyományok, a diszciplínák, a generációs különbségek, a hierarchikusnak (képzelt) viszonyok által. Építészt próbáló feladat a helyes arányok megtalálása. Józsa Dávid és csapata (Archi.doc) már több oktatási-nevelési funkciójú épületében bizonyította, hogy képes a metamorfózisra, könnyedén belehelyezkednek a gyermeki nézőpontba. Ezt bizonyítja Hegykőn épült bölcsődéje is.
A legkisebb gyermekek elhelyezésére szolgáló szociális intézmény elnevezése sokáig ingadozott a magyar nyelvben, ahogy az új típusú ellátás is lassan épült be az oktatási-szociális rendszerbe. Nevezték bölcsőháznak, „szopó gyerekek intézetének” vagy idegen nyelvi megfelelői a Kripp és a cres is használatos volt hazánkban. A Franciaországban, az 1840-es évek közepén a gyári munkásszülők megsegítésére, kisgyermekeik felvigyázására alakult gyermekmegőrzőket Jézus jászoláról (La Crèche) nevezték el.

Alig tíz évvel a francia példa után, 1852-ben jött létre Pesten az első bölcsődei egylet, majd országszerte – elsősorban a városokban – sorra jelentek meg az intézmények. Az első magyarországi bölcsődei egyletben az óvodarendszert megteremtő Brunszvik Teréz unokahúga, Brunszvik Júlia is jelentős szerepet vállalt, folytatva a nemes családi hagyományt a gyermekjóléti intézményrendszer magyarországi megteremtésében. A komoly, tipikusan nőegyleti jótékonysági feladatról többször cikkeztek a Hölgyfutárban és más pesti (női) divatlapokban, népszerűsítve az új gyermeknevelési intézményt.
A kisgyermekek felügyeletére szerveződő intézmény igénye pontosan mutatja az ipari forradalom generálta társadalmi változásokat: a városi élet individualizmusát, a gyermekekre vigyázó nagycsalád széthullását. A rideg környezetben számos fatális gyermekbaleset történt, ezért is volt égető szükség az ellátás megszervezésére, a biztonságos, barátságos környezet megteremtésére, amely szigorú igény és követelmény már az első bölcsődei szabályzatokban is megfogalmazódott.

Vidéken hosszabb ideig tartotta magát a nagycsalád intézménye, s oldotta meg a gyermekfelügyeletet, de a munka kultusza és szükségessége itt is előhívta az igényt az óvoda-, majd a bölcsőde-alapításokra, -építésekre. Magyarországon a szocializmus időszakában, elsősorban
az újonnan felépült iparvárosok lakótelepein jelentek meg, legtöbbször az óvodákkal egy épületben a legkisebbekre felvigyázó intézmények, tulajdonképpen az általános iskola és az óvoda még inkább kicsinyített másaként. A sajátos igények figyelembevétele helyett csak a bútorméretek csökkenése mutatta a korosztály-különbséget.
A Sopron környékén fekvő Hegykőn a 21. századi munkavilág-változás kihívásaival jutottak el oda, hogy a három év alatti gyermekek elhelyezését is megteremtsék a faluban. Az intézményi háttér szerveződésére rávilágít, hogy az óvoda az egykori lelkészi házban működik, s a bölcsődét is ennek bővítésével alakították ki. Vagyis az önkormányzat messzemenő támogatása mellett is az épület jelzi, hogy a kisdedóvók társadalmi, jótékonysági támogatásból, felelősségvállalásból alakultak ki. (Sopronban az első bölcsődei egylet 1917-ben alakult meg az osztrák és magyarországi példák követésével.)

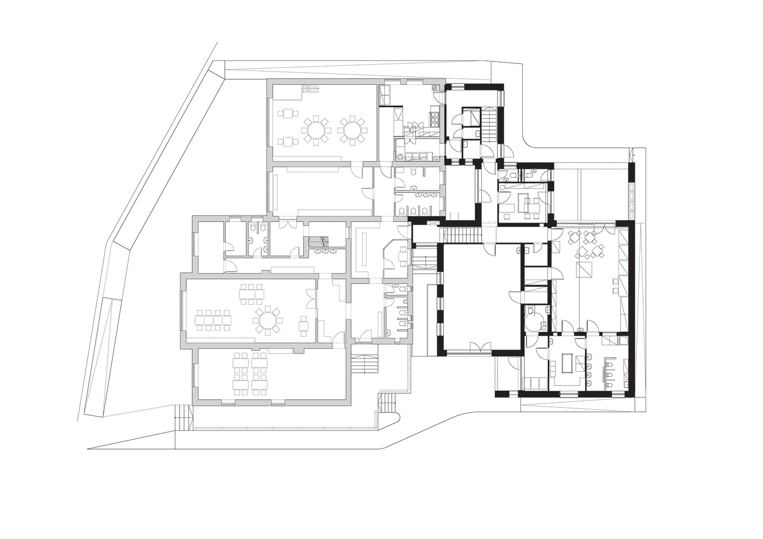
Felelősség nehezedik az építészre is, aki e nemes funkciónak tervez. A biztonság, kényelem, kedvesség, játékosság egyszerre kell, hogy jelen legyen az épületben. Erre vállalkozott a Sopronban már több óvodát és általános iskolát jegyző Archi.doc építésziroda, amikor a hegykői bölcsőde tervezésébe fogott. A feladat egyszerre bővítés és elhatárolás volt: az adott óvodai funkciójú lakóházhoz jól megközelíthető, az átjárást biztosító, de a gyermekeket életkoruk szerint mégis elkülönítő új épületszárny valósult meg.
Az ihletet a bölcsőde sziluettjének kialakítására a gyermekrajzok szolgáltatták, a legegyszerűbb és egyben legteljesebb absztrakció, ahogy első girbegurba vonalával a gyermek megjeleníti a „valóságot”. Egyszerű, de eredeti ötlet gyermeki szemszögből rácsodálkozni az épületre, amely nem más mint védelem a környezet viszontagságaitól: falak és tető kombinációja. Nemes egyszerűségről beszélhetünk itt, ahol az építész a nevelési funkciót szolgálja, átgondolva a gyermeknek szánt térélményt. S ezt a „játszóteret” képezi meg, egészíti ki a kényelmet és jóllétet szolgáló funkciókkal, mint az étkezés vagy a mosdók.

Mivel egy bölcsődében a gyermek- és felnőttvilág léptéke igen különböző, olyan tereket kellett kialakítani, amelyek a gyermekek és a gondozók igényeinek is megfelelnek, hiszen a közösségük dinamikájából fakad a bensőséges, szeretetteljes légkör. A szeretet a kulcsszó a bölcsőde tervezésében, hiszen minden funkciója úgy szerveződik, hogy a legkisebbek legalapvetőbb óhaját, a szeretet igényét elégítse ki. A Józsa Dávid által tervezett bővítés teljes mértékben figyelembe veszi a kisdedek és a nevelők igényeit, teszi ezt a legegyszerűbb és leghétköznapibb megértéssel.
Kiindulópont a „csoportszoba”, amely tágas és multifunkcionális, játékra, étkezésre és alvásra egyaránt alkalmas. E köré szerveződik a kiszolgáló részleg: a mosdó, a raktár (ágyak tárolása) és a gondozók szobája, amely csupaüveg falú megoldásával egyszerre szolgálja a kontrollt és a gondozói magánszféra funkcióját. Az udvar felé fokozatosan nyílik meg a tér: a hatalmas üvegajtó mögött először tetővel fedett rész következik az esős, hűvösebb napokra, majd egy védett, de már tágasabb kertrésszel folytatódik a kiadósabb levegőzésre.

Az új bölcsőde épület egy nyaktaggal kapcsolódik a régi házhoz, amely kényelmes, biztonságos, védett összeköttetést biztosít az óvoda-bölcsőde közös funkciói között. A telek védett, csendesebb részében elhelyezett épület a kisdedek nyugalmát szolgálja. Tökéletes UX-designernek [felhasználói élmény tervezéséért felelős szakember – a szerk.] is bizonyult az Archi.doc csapata, akik olyan kiszolgálói utat teremtettek meg, amely használható, élvezetes és minden korosztály és funkció számára akadálymentesen hozzáférhető.

Józsa Dávid és munkatársai mertek gyerekek lenni, hogy valódi bölcső/ház szülessen Hegykőn, amely figyelembe veszi a kicsik sajátos igényeit. Bölcső(ház), amely extra védelmet és segítséget nyújt a felnövekedés érzelmileg, kötődésben legfontosabb periódusához.
Tervezés: 2020 – 2021
Kivitelezés: 2021 – 2022
Nettó alapterület: (meglévő épületrész: 342 m2), bővítés: 200 m2
Építészet: Archi.doc Építésziroda Kft.
Vezető tervező: Józsa Dávid
Építész munkatárs: Erdei Attila
Belsőépítészet: Pamuk Lilla
Tartószerkezeti tervező: Fodor Tamás
Ha tetszett a cikk, és szeretnél előfizetni magazinunkra, itt teheted meg.


