Cikkünk a 203-as, 2025/7-es lapszámunkból közöljük.
Nincs könnyű helyzetben az építész, ha úgyszólván a semmi közepén kell egy új épületet emelnie, bár laikus fejjel épp az ellenkezőjére gondolnánk. A Debreceni Egyetem új járműlaborja lényegében kontextus nélküli, egy mezőgazdasági művelésből kivont beruházási célterületen épült fel a város szélén lévő, fejlődő – még kevés épületállománnyal bíró – tudományos ipari parkban, egyedi karaktere a MONOSTUDIO ideáját tükrözi a használatot magas esztétikai minőségben szolgáló építészetről.

Abban a pillanatban, hogy megszűnt a közmegegyezésen, széles körben elfogadott vizuális kódokon alapuló építészeti értékrend, egyszerűen szólva a stílusok, az építészet elbizonytalanodott. A 20. század a folytonos útkeresésről szólt, ami egyszer talán majd kellő időtávlatból tekintve, egységes szellemiségnek fog tűnni, a szakma gyakorlói számára azonban késhegyig menő ideológiai és esztétikai vitákat jelentett. Az épített környezetet „elszenvedő” laikus közönség pedig mindenfajta kapaszkodó hiányában vagy a megszokott formákhoz ragaszkodott görcsösen, vagy az épp trendi irányzatokat másoló üres formalizmusnak hódolt.
Az építészek dolgát nem könnyítette meg az sem, hogy a félelmetes tempójú technológiai fejlődés és a nyomában járó társadalmi átstrukturálódás új és új funkciókat szültek, amelyek befogadó terére nem is létezett semmiféle építészeti előkép. Az építész addig sosem látott dolgokat alkotott, nem csoda, ha egy idő után a szakma a teremtés minőségével egyenértékű beavatkozásként élte meg az építés végső soron mégiscsak gyakorlati szükségleteket kielégítő aktusát.

A világ épp aktuális gazdasági és szellemi folyamatait követve a tervező alkotó hol a teremtő pozíciójában tetszelgett, hol a felelősséget vállalva a társadalom jobbításának szolgálatába állította az építészetet, a világvége árnyékában pedig lelkifurdalástól gyötörve igyekszik beavatkozásának mértékét a minimálisra csökkenteni. Miközben a 20. század elején általánossá váló doktrína a funkciót követő formálásról finomodva ugyan, de máig érvényben maradt, az alkotói véna is teret követel magának, és jobb híján sokszor önmagáról, vagy az építészetről mint elvont létezőről fogalmaz meg állításokat.
Megfeledkezvén sokszor arról, hogy nem minden épület remekmű, nem is kell annak lennie. Ezek az állítások valójában egyszerűen csak házak, amikben emberek élnek, laknak, dolgoznak, mozognak, és közben szeretnék magukat fizikailag és lelkileg is komfortosan érezni. A Le Corbusier-féle lakógép megkerülhetetlen, az esztétika pedig arra szolgál, hogy a használó az építészetet magáénak érezze. Minthogy pedig a használók köre és igényei igen változatosak, nem tűnik célravezetőnek egyedül érvényes állításokat keresni.

Ami mindenképp záloga a színvonalas építészetnek: a magas műszaki minőség, ami mindig a jól megválasztott építészeti eszközök, a biztos ízléssel és szakmai felkészültséggel meghozott döntések függvénye, és ezen túl az egyéni hang, amely egy-egy praxist beazonosíthatóvá tesz a korlátlannak tűnő lehetőségek vizuális káoszában. Ezen túl egyéni habitus kérdése, hogy a funkciót tükröző egyszerűség, az atmoszférateremtő hangulat vagy a pátosz, ami a nézőt, használót, kritikust vagy épp az alkotót rabul ejti.
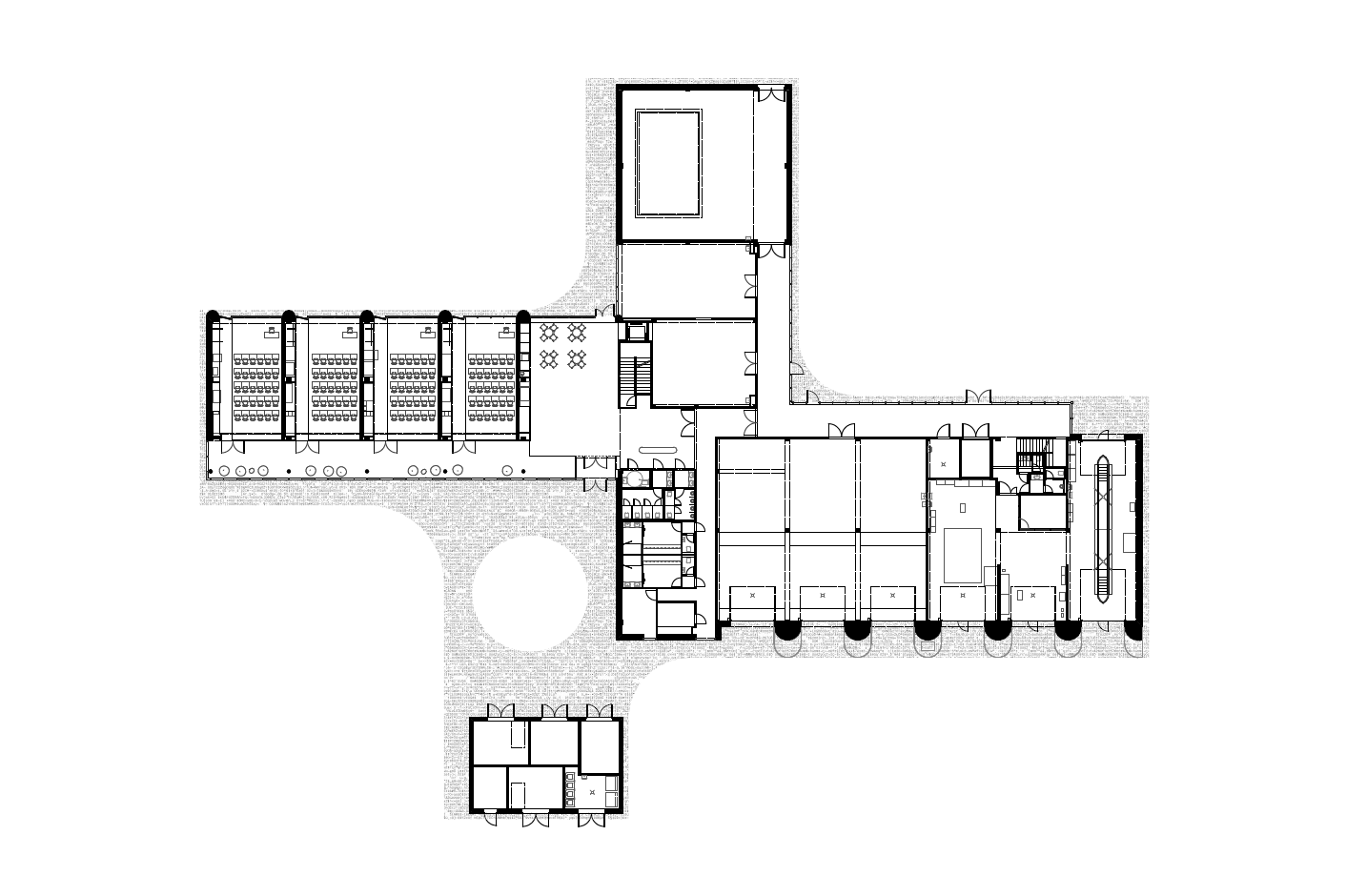
A tárgyalt épület az első kategóriába tartozik, határozott építészeti eszközökkel él, minden gesztusa az átgondolt funkcionális kialakításból eredeztethető. A környezet nem kínált fogódzót a tervezéshez, a városmenti területek intenzív fejlesztésének szándékával esett az egyetem választása az üres telekre.

A tengelykeresztre szervezett alaprajz a telket négy tér-részre osztja, különböző téri minőségeket definiál – nem csak formailag, funkcionálisan is elkülöníti a különbözőképpen használt tereket. A nyugati, földszintes szárny az oktatásé, a keleti szárnyba került a járműlabor, északra a robotika, dél felől zajlik a telep betáplálása, ide került az ehhez szükséges infrastruktúra. A felsorolásból kitűnik, hogy nagyon eltérő és jórészt egyelőre beláthatatlan irányba fejlődő funkciókat kellett egy tető alá hozni, szükség volt tehát a fegyelmezett, következetes gondolkodásra.
Ami a megjelenést illeti, abban is kettős célnak kellett megfelni: egyetemi oktatóépületként egyrészt barátságos, befogadó kampuszként, másrészt funkciójánál fogva indusztriális épületként kellett a házat megfogalmazni. Tovább nehezítette a tervezést, hogy mivel még nem dőlt el, hogy az elektromos autó lesz-e a jövő, nem ismert a technológia, így előre nem tudható, milyen műszaki megoldásokat kell majd az épületnek befogadnia, rugalmasan alkalmazkodó kialakításra volt szükség.

A ház fizikai és funkcionális súlypontja az előcsarnok. Ez az aulatér választja el a különféle funkciókat. A földszinti, nagy üvegfelületekkel megnyitott oktatási szárnyban gyakorlati foglalkozások zajlanak, az oktatók helyiségei az emeletre kerültek. A kétszintes jármű szárny ettől elfordul, az emeletet az oktatói helyiségek kivételével egybefüggő ipari zóna foglalja el.

Az összetett funkcióból adódóan az épületnek több arca van, ezt kellett elegánsan összefogva, jó egyensúlyt teremtve „középületesíteni”, a kampusz-szerű térkialakítás-irányba hangolni. A garázsoknál szükség volt előtetőre, ez fut körbe az épületen, a sarkoknál ívesen átfordulva, különböző széleséggel. Az egy elemből létrehozott játék, az egységesen nemes anyaggal, bordázott cinklemezzel burkolt, lendületesen megformált előtető széles karimájú kalapként borul a tagolt tömegre, egyedi arculatot kölcsönöz az amúgy egyszerű, funkcionális épületnek. Ez a vonalvezetés a MONOSTUDIO más épületein is felbukkan, ahogy a bejárati tér-rész fölötti kör alakú átlyukasztás is. Hitvallásuk szerint a szakmagyakorlás során a gondolatok, formák sokáig megtapadnak, esetükben az építészeti múzeumra beadott pályázati tervükben csúcsosodtak ki. Ez a ház előbb készült el, az indító gondolat konkrét eseti megnyilvánulásaként.

A bejárati előtetőt átlyukasztó kör nem csak egyedi módon jelöli a megérkezés helyét, de egyben szervezi is a mozgást. Mivel alatta szintén kör alakban telepített növények vannak, meg kell azt kerülni, elindít egy áramlást, látványa pedig az előcsarnokból belülről is fókuszt teremt. Az indító áramlásra rímel azután az előtető vonalvezetése, direkt szimbolika nélkül is kifejezve a funkció lelkét jelentő mobilitás dinamikáját. A tervezők elmondása szerint az épület szeretve született, és ez a használókra is átragadt, örömmel veszik birtokba a tereket. A moderált külsejű, nem harsány, ugyanakkor minőségi anyagokkal megvalósított indusztriális design az egyetem számára is megfelelő arculattal bír, és erős érv amellett, hogy az építész alkotó énjén átszűrődve, erőltetett szimbolika nélkül is formává desztillálható a szellemi tartalom, végső soron az univerzum üzenete.
Tervezés: 2020 – 2021
Kivitelezés: 2023 – 2025
Bruttó szintterület: 3250 m2
Generáltervező: UD TUTI Tudományos, Technológiai és Innovációs Park Nonprofit Kft.
Építészet: Monostudio Kft.
Vezető tervező: Zombor Gábor DLA, Juhász Balázs
Építész munkatársak: Csík-Mátyás Zsolt, Lality Áron, Szentirmai Tamás DLA, Zsupos Zoltán
Tartószerkezet tervező: Dr. Medek Ákos
Épületgépészeti tervező: Mészáros Olivér
Épületszerkezeti konzulens: Dr. Dobszay Gergely
Építményvillamossági tervező: Ivanics Zoltán
Kert- és tájépítész tervező: Varga Tibor
Beruházó: Debreceni Egyetem
Ha tetszett a cikk, és szeretnél előfizetni magazinunkra, itt teheted meg.


