Cikkünk az Octogon 202-es, 2025/6-os lapszámából közöljük.
Hc3 (Tandori Dezső: A bethlehemi istállóból egy kis jószág kinéz)
Gyakorta eszembe jut egy középiskolában tanult módszer, miközben kritikát, műelemzést írok egy-egy házról. Tulajdonképpen ez az eljárás a versmondat problémáját érinti, amikor az elemzés kulcseleme egy mondat – a tételmondat – megtalálása, majd annak elemzése a vers poétikai világában. Az idézett Tandori „sakkvers” neoavantgárd gesztusa éppen az, hogy a vers szövege nyelvi, formai értelemben totális redukción esik át, míg a cím és versszöveg metaforikus képisége nem sérül. A „huszár lép c3-ra” egysoros versmondat a tételmondat-eljárás alkalmazhatóságát erős kihívás elé állítja ugyan, ugyanakkor az absztrakció nem akadályozza meg a vers poétikai elemzését.
Egy korábbi írásomban tettem már kísérletet arra, hogy Sztranyák Gergelyék saját, a makáron felépült családi háza kapcsán értelmezzem és megértsem azt az építészeti nyelvet, amit a pécsi építész „premodernként” ír le (OCTOGON 191., 2024/3.). Abban a kritikában is nehézséget okozott annak megértése, hogy az SZTR stúdió családi házaiban egyfajta tudatos és következetes koncepció végeredményeként szinte építészeti gesztusok nélkülivé válik a ház, tételmondat nélkülivé a vers. Tehát a szerkezet, forma és program kölcsönhatásának végeredményeként az építészeti nyelv a képiség helyett az egyszerűséget, érthetőséget totalizálja. Mintha egy olyan építészetre törekedne, amiben az építész személyiségének önreprezentációja totálisan a háttérbe lenne szorítva.

Ebből a logikából a „premodern” jelentése valahogy úgy érthető meg, mint a modernitás ideológiai programjától, túlfeszített absztrakt esztétikumától, az építész ego megmutatásától mentes építészet. Visszatérés valamiféle egyensúlyhoz, valami zsákutcába jutó alkotói attitűd kiindulópontjának visszafejtése. A modernitás konstruktivista és a posztmodern dekonstrukciós modelljéhez képest egy tudatosan lehalkított építészet megszólítása. Nem kísérletez, nem törekszik kényszeresen az innovációra, nem rejtőzködik, nem deklarál, nem utalgat és gesztikulál, hanem szerkezetben, alapformában és alapfunkcióban gondolkodik.
Gyors közbevetés. Hirtelen eszembe jut korszakunk talán legmeghatározóbb formatervezőjének a „jó design”-ról (good design) megfogalmazott tíz alapelve, ami egyfajta anti-manifesztumként fogalmaz meg finom ajánlásokat és tesz elhatárolásokat a tervezés kapcsán. Dieter Rams „szabályai” közül az utolsó így hangzik emlékeim szerint: „a jó design a lehető legkevesebb design”. Félreértések elkerülése végett hiba ebben a mondatban az esztétikai minimalizmusra tett ajánlást keresni, hiszen itt a design egy komplex fogalomként fogható fel, nem pusztán a forma/funkció, less/more modernista fogalomkörében. A tíz alapelv értelmében a design inkább világnézet mint fizikai entitás.

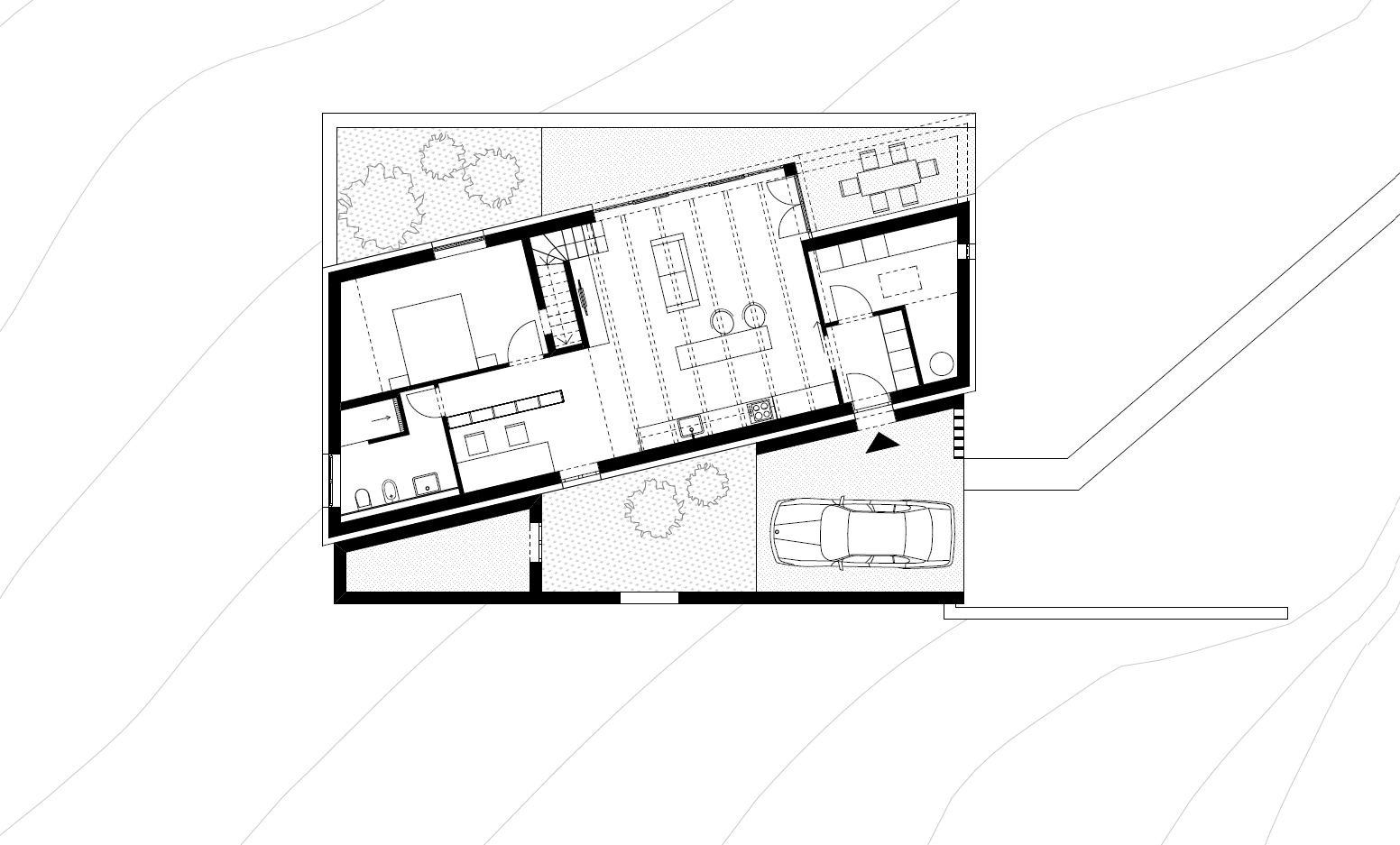
Visszatérve az eredeti gondolathoz és az építészek nemrégiben átadott családi házának kritikájához, azt mondhatom, hogy az elemzés nehézségét a „tételmondat” megtalálásának nehézsége okozza. Ez az épület és az építészeti nyelv fentiekben leírt visszafogottságából adódik. Ugyanakkor, ha közelebbről vizsgáljuk meg ezt a kiegyensúlyozott tömegű, piros cseréppel fedett nyeregtetőjű, fehérre vakolt homlokzatú, egy enyhén emelkedő szintezettségű, visszafordulva kanyarodó úttal övezett, szinte nyúlványként megjelenő telken felépült házat, akkor azt látjuk, hogy a maga belső logikája mentén, de jócskán találunk figyelemreméltó megoldásokat, amik közül talán a vágyott „tételmondat” is felszínre kerülhet. Nézzük rögtön az alaprajzot, amiből kiderül, hogy a telek adottságait, panoráma és napjárás viszonyait a tervezők egyfajta elforgatással oldották meg.
Ez a mozdulat azonban csak úgy érthető meg, ha felfigyelünk az erőteljes terasz(tornác)-épített kerítés és a garázs-külső átrium kontúrvonalának átlójára, egyfajta diagonális helyzetben felszerkeszett főtömegére. A földszinti alaprajz vonalvezetése olyan, mintha egy szinte négyzet alapvetésű házban volna egy másik, keskenyebb „ház”. Mintha egy „lapostetős”, modernista villa és egy hagyományos elrendezésű (hosszú)ház montázsát látnánk. Jeleztem, hogy ez távolról sem öncélú formalista gesztus, hanem az észak-déli irányok és a panoráma felé fordulás gesztusa, miközben a négyzeten belüli derékszögű háromszögek kocsibeállóként és teraszként ízesülhetnek a lakóteret tartalmazó főtömeghez.

Kicsit talán körülményesnek és bonyolultnak hat a leírás, mert ez az alaprajzi mozdulat olyan magától értődően zajlik le, hogy a bejárás alkalmával szinte észre sem vettem. Nyilván feltűnt, hogy a három oldalról nyitott telek határán nincs kerítés, de mégsem érzem azt, hogy a ház „védtelenül”, definiálatlanul állna a placcon. Terasz és kocsibeálló pufferzónája tökéletesen rendezi a kint és bent viszonyait, miközben a karakteresen emelkedő taraszfal optikai értelemben is egyfajta kőkerítésként hat.
Ugyancsak a tervezők érdeme, hogy a belső térben, a kocsibeálló felől belépve nem érzékelhető a paralelogramma „csücskössége”. Tehát az átlóra felszerkesztettség okozta sarokpozíciók nem válnak hegyesen keskenyedő sarkokká, a belső tér jól berendezhető, racionálisan belakható. Elemzésünk szempontjából kiemelten fontos, de az építészeti fotókon is nehezen visszaadható az az idom, az a megoldás, ami a nyitott födémű nappali és a padlástéri hálószoba közötti átjárást biztosítja. Mondhatnánk, semmi különös, hiszen egy épített lépcsőről és a mellvédjéről van szó. Mindazonáltal erre a részletre Bujnovszky Tamás fotográfussal beszélgetve is többször visszatértünk.

Nem is tudom, hogy mondjam... Semmi forradalmi, ugyanakkor az a finom, keskeny hasíték, ami áttöri a lépcső terét a nappali tere felé, rendkívül erős hatást gyakorolt ránk. Valamiféle pengefal felső része ugyan, de azzal, hogy nem ér fal a belső tetősíkhoz, vagyis a keskeny rés a fényt és a látványt is a maga töredékes formájában engedi át, nagyon szép hatást kelt. Úgy érzem, ebben a néhány tíz centis részletben a szerkezet, program és formálás különös harmóniája jön létre. Itt lehet meglátni azt a poétikus tételmondatot, amit az elemzésünkhöz kerestünk. Kívülről nem látható, de lakva, használva, megélve a belső teret egy fényjárta, szívmelengető, belső kapcsolatokat biztosító apró részlet, mindent összefoglaló halk gesztus.
Tervezés: 2021
Kivitelezés: 2024
Nettó alapterület: 138,5 m2
Építész tervező: Sztranyák Gergely DLA (SZTR stúdió)
Építész munkatárs: Ocskó Szimonetta (SZTR stúdió)
Belsőépítész tervező: Sztranyák Veronika (SZTR stúdió)
További képek és rajzok a cikk végén található galériában!
Ha tetszett a cikk, és szeretnél előfizetni magazinunkra, itt teheted meg.


