Díjat is nyert már ez a családi ház, amelyben a privát és a közösségi tereket határozott kézzel választották el. Erről szóló írásunkat a 193-as, 2024/5-ös lapszámból közöljük.
Díjat is kapott már ez a frissen beköltözött családi ház: a Terrán 2023-as építészeti pályázatán a zsűri „jelesre” értékelte építészeti kialakítását, valamint a napelemes betoncserép mozaik- vagy inkább sormintaszerű alkalmazását. A tervezőitől J40-re keresztelt épület szinte átadásával egyidőben vett részt, mérettetett meg az Év Háza 2024 közönségszavazásán, szemrevételezése után biztos vagyok benne, még számos pályázaton felbukkan a jövőben.
Gödöllő-Egyetemvárostól kicsit távolabbi telken, mégis közel a település vasúti megállóihoz valósult meg a szóban forgó családi ház. Fontos szempont ez, amióta egyre nő a fővárosi agglomerációs települések kiterjedése. Helyszínbejáráskor számomra mindig érdekes az első pillantás: milyen is ez a ház? Sallangmentes összkép az utcáról, egyenletes ritmusú ablakkiosztás fent; világos, olvasható funkcióelrendezést sejtető, semmi túlzó a színhasználatban. Ugyanakkor kifinomult, izgalmas részletek – ezt nagyon tudják a Konkrét Stúdió építészei –: pár éve, szintén egy lakóépületükön, a budafoki „kontrasztos házon” tűnt ez fel számomra. A budafoki egy befejezetlen családi ház megújítása és kibővítése volt, most viszont tiszta lapon dolgozhattak − habár a korábbi épület(ek)től mentes, üres telek egyre ritkább a Budapest környéki városokban.

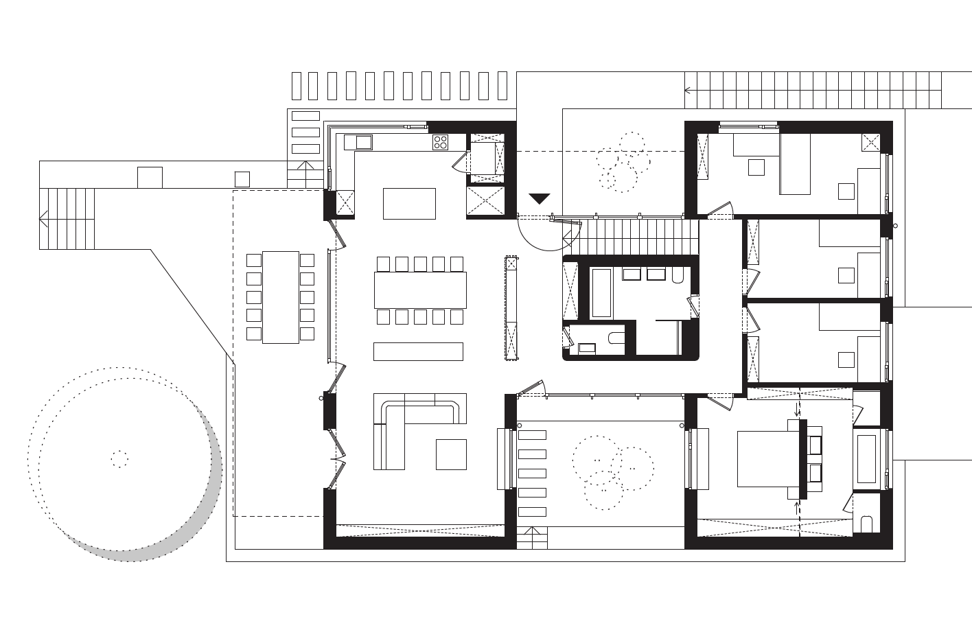
Ahogy Sónicz Péter vezető tervezővel lépcsőzünk a kaputól, sétálunk fel az épület nyugati oldalán kialakított főbejárathoz, úgy tárul fel a kompozíció: két nyeregtetős tömböt – utcait és kertit – egy könnyed szerkezetű átkötő tag fűz egybe. Kifejezett igény volt a megbízók részéről – mondja Péter –, hogy a privát tereket és a közösségieket határozott kézzel válasszák szét. Így történt, hogy az utcai tömb a hálószobáké, a család tagjai által használt szociális tereké, alagsorában a garázzsal, egy vendégszoba-fürdővel és mosókonyhával, a kerti oldalon pedig az egyterű nappali-étkező-konyha tömbje ül.
Az elválasztás azonban nem jelent elhatárolást, már a főbejárat feltárása is megmutatja. Nagy üvegfelületekkel, az átkötőtag megformálásával nyitott térrendszert hoztak létre az építészek, és akadálymentes az átlátás a ház számos terén keresztül. Méretét, alapterületét indokolja, hogy háromgyerekes család lakja, akik – ezért is az önálló tömbben elhelyezett egyterű közösségi lakórész – aktív családi, társasági életet élnek, és amikor a nagy família gyűlik itt össze, kilenc gyerek rohangál a terekben, a kertben.

Lehetne egyszerűen úgy gyerekcentrikus egy lakóépület, hogy a kertbe kapnak a lurkók egy játszószigetet, saját játszószobát bent, de itt nem pusztán ez történt. Egyrészt a főbb játékfunkciókat úgy alakították ki, hogy azok részét képezik az építészeti kompozíciónak: a fedett teraszon süllyesztett, csapóajtóval zárható homokozót láthatunk, illetve kiszedhető, variálható hintamegfogatókat. Másrészt a kert kialakításával is megszólítja a gyerekeket. De még mielőtt a kertről írnék, röviden a teraszról: tényleg statikai bravúr, ahogy a terasztető felfüggesztés nélkül lebeg a kerti lakótér felett! Na, de vissza a kertre.
Tökéletesen lejtős volt eredetileg a telek, ezért az első építési munkálatokat a terep szintezése jelentette. Az építési szinten kívül több kerti plató alakult. A teraszkapcsolatos „süllyesztett” kertben egy esőkertet hoztak létre, fentebb focipálya, majd bográcsozó következik. A növénytelepítés szempontjainak alapját a környezeti nevelés is adta: a kert változásait egész évben követni tudják a gyerekek (virágzás, beporzás, gyümölcsérés, idővel lesz a szülők és gyerekek által közösen ültetett és gondozott konyhakert is). A gyümölcsfák mellett egyetlen előnevelt fát, egy szép platánt ültettek el a kertbe, amelyre rálátni a házaspár hálószobájából is. Egy-egy oldalkertje is van a háznak a keleti és nyugati beharapásokban: utóbbi az Apa kertje, hatalmas kőtömbökkel és törpe örökzöldekkel, előbbi pedig a lágyszárúakkal, alacsonyabb termetű fákkal szépülő Anya kertje.

A bográcsozó platójáról nézünk vissza a házra, innen tisztán kivehető a díjnyertes tetőfedés struktúrája. „Látod a cserépre ad hoc felhelyezett napelem paneleket?” – mutat a környező napelemes háztetőkre Péter. „Pont ilyet nem szerettünk volna, ezért is döntöttünk egy a közvetlenül a cserépbe integrált napelem mellett. A prospektus szerint ezeket a speciális napelemes tetőcserepeket mindig egymás mellé rakják téglalapmintában. Ez a fajta rakás a széleknél, szellőző cserepeknél picit „elárulja” magát. Az eresz fölé közvetlenül helyezett hófogó rács vagy rúd sem tetszett, a téglalapminta miatt pedig a hófogó tüske szóba sem jöhetett, hiszen nem tud megfelelni a szabványnak. Mindenképpen egy olyan tetőt szerettem volna, amelynek a napelemes cserép a része, egy esztétikai egységet alkot vele. Megkezdődött az egyeztetés a gyártóval, hogyan oldható meg a hófogás, mekkora a cserepek közötti standard vezetékek hossza stb. Elkezdtünk különféle rakási módokkal kísérletezni, így született meg a ház tetején látható motívum, körülbelül 125-125 darab napelemes cseréppel tetőnként. Furcsa, de ez a fajta megoldás nem lett drágább, mint egy standard cserépfedés, tetején napelemes panelekkel, hiszen nem kellett külön megvásárolni a cserepet és a napelemet, hanem kompakt termekként érkezett a helyszínre, melyeket a standard cserepekkel egészítettünk ki.”

Kifinomult, izgalmas részletek, ahogy írom a szövegem elején, ezek felfedezéséhez időnként közelebb kell menni az épülethez. Ilyen komponens a látszóbeton és a vakolat összehangolása. A látszóbeton-alkotók (pl. lépcsők, mellvédek, terasz- és előtetők keretezése) színe határozta meg a teljes homlokzat árnyalatát, míg a homogén, tömör betonfelületekre fakturált sávozott homlokzati szakaszok felelnek.
„Leggyakrabban dörzsölve-fröcskölve viszik fel a vakolatot a falakra, de mi ennél egy kicsit kísérletezőbbet, kézműveset szerettünk volna. Több alkalommal látogattunk el a vakolat forgalmazójához, hogy megtanuljuk ezt a húzott-sávozott felhordást. Emlékszem, ahogy a kivitelezők ültek itt az állványon, és seprűkkel húzták-vitték fel az anyagot” – demonstrálja a mozdulatot az építész. „Mást akartunk, ahogy említettem: kísérletezőt, kézműveset. Ha megnézed a kerítést – mutat az utca felé –, ott is érvényesül ez. A kerítés lábazata lépcsőzik, leköveti a terepviszonyokat, míg a lamellák ferdén követik az utca vonalát, csak a pálcák állnak ki függőlegesen a lábazatból. Vizuálisan nem tömör szerkezet, mégis biztonságos zárást biztosít az utca felől.”

A Pétertől megfogalmazott, szofisztikált kialakítások formálták a belső tereket is. Kevés típusú matéria, festett, világos felületek, világos árnyalatú fa nyílászárók, egyedi bútorok, padló. Nincs anyaghalmozás, de nem maradnak el a fineszek. „Ahol történik valami a térben – mondja a tervező –, ott például színt használtunk. Így/ezért kapott a főbejárat és a garázs felőli bejárati ajtó fekete keretet, vagy ha megnézed az átkötő tagban felépített vendégmosdót, vizesblokkot: az egy önálló kubus, ami ívelt sarkokat kapott és világoszöldre festettük. Elsőre nehezen tudtuk ezt átvinni a megbízónál, idegen volt számára egy fekete ajtó, egy íves kialakítás ebben a szögletes rendszerben.”
Látogatásom idején nagyjából még csak fél éve lakták ezt a házat, néhány berendezési tárgy még keresi a helyét, néhány még el sem készült. A ház lakói tanulják, ismerkednek a házukkal, kertjükkel – érdekes lenne egy év múlva visszatérni, meghallgatni őket arról, hogyan élnek itt.
Alapterület: 254 m²
Tervezés és kivitelezés éve: 2020 – 2024
Építészet: Balogh Csaba, Deigner Ágnes, Sirokai Levente, Sónicz Péter (Konkrét Stúdió)
Statika: Baratta Egon
Gépészet: Szlovák Krisztián
Villamosság: Fekete Norbert
Tájépítészet: Mandel Mónika
További képek a cikk végén található galériában!
Ha tetszett a cikk, és szeretnél előfizetni magazinunkra, itt teheted meg.



