Nemrégiben zajlott le egy fejlesztői pályázat, ami a Villányi úton található egykori MSZMP székház épületének és telkének lakáscélú fejlesztését célozta meg. Mivel az online szaksajtó korábban - az érdeklődők számára - már nyilvánosságra hozta a pályázat eredményét, szerkesztőségünk úgy látta jónak, ha a publikált pályaművek közül végül azt jelenteti meg, aminek értékrendjében, filozófiájában, megközelítésében olyan értékeket vél felfedezni, amikre külön figyelmet szeretne fordítani. A koncepciót a tervezők leírásával mutatjuk be.
A tervünk elsősorban nem az adott pályázat által feltett kérdésre ad választ, hanem a meglévő épületek ökológia értékére, valamint a bennük rejlő téri potenciálra hívja fel a figyelmet.
2019-ben Európa legrangosabb kortárs építészeti díját (Mies van der Rohe Award) kiérdemlő Anne Lacaton és Jean-Philippe Vassal a munkáik során „a kapott örökséget felhasználják az épület által kínált kapacitásként arra, hogy felelősségteljesen cselekedjenek rajta.”

A mai igényeknek megfelelő, jellegtelen tucat lakások helyett az egyedit, a különlegeset keressük és ehhez nem szükséges elbontani a meglévő épületeinket, érték létrehozása a hasznosításukkal is lehetséges.

A bennünket körülvevő anyagok, tárgyak szempontjából is döntő fontosságú a bontás kérdése. Jó minőségű anyagokat (kő- és kerámiaburkolatokat) használtak az épületben, ami a mai világban már nem jellemző, ezért különösen nagy éréknek számítanak. Minőségi anyagból készült hátrahagyott tárgy vagy bútor nem szemét, hanem hagyaték.

A fenntartható társadalom felé való elmozduláshoz szemléletváltásra van szükség. Alapvető meggyőződéseinket újra kell gondolnunk. Elsőként megkérdőjelezzük azt az alapvető kulturális meggyőződést, hogy a több mindig jobb a kevesebbnél. Amiből kevés van, annak megnő az értéke.
A meggyőződésünk szemléltetése érdekében törekedtünk arra, hogy a lehető legkisebb beavatkozással éljünk és az épület értékeit, téri tartalékait hozzuk helyzetbe.

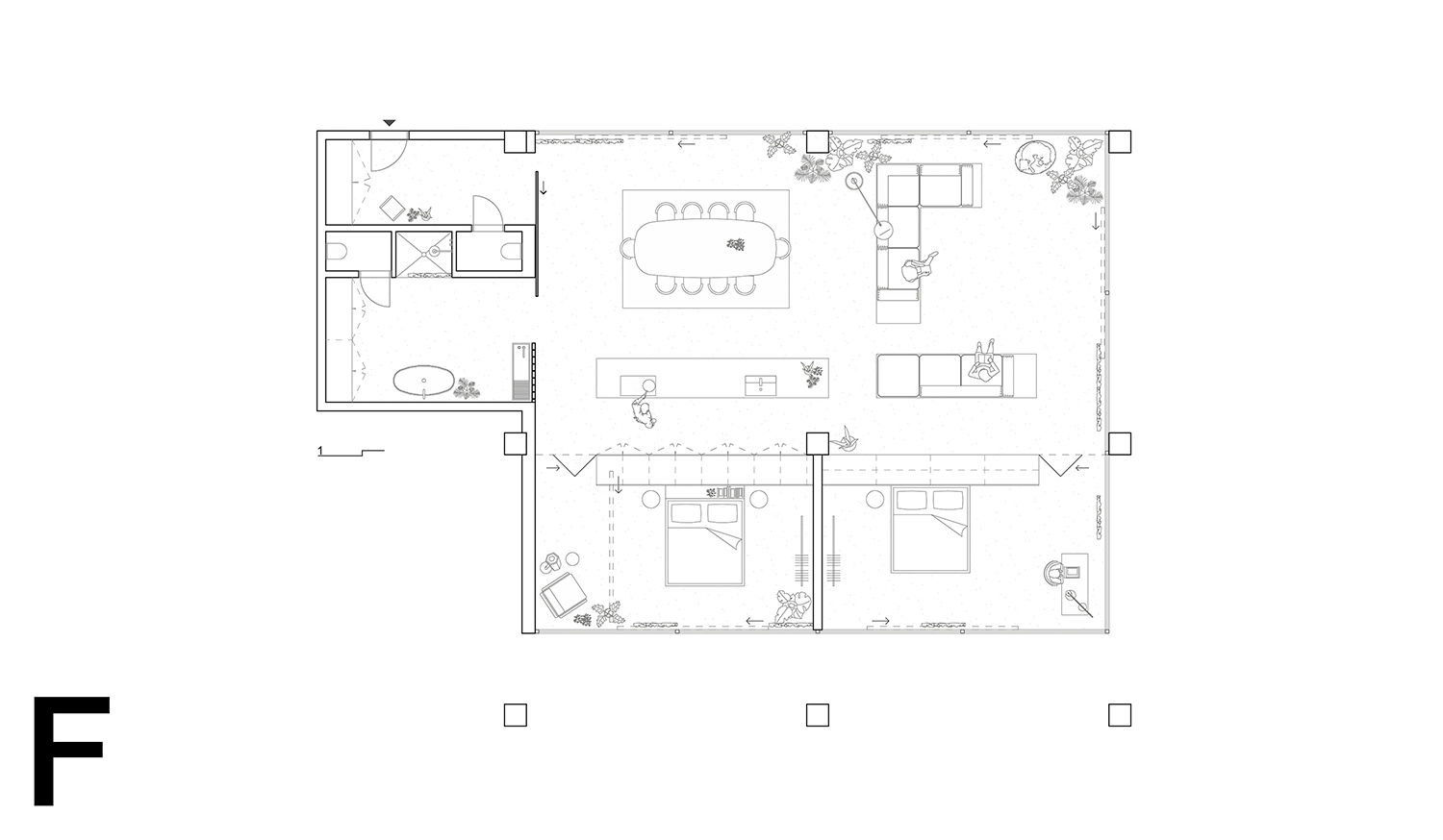
Funkcionális elrendezés – beköltözés / egyedi helyzetek
A meglévő struktúra belakására törekszünk. A felső három irodaszinten a kisebb lakások koncentrálódnak, hétköznapi kivitelben. A mérleg nyelve a homlokzatok megtartása – a parapet bontások elkerülése felé billen. A lakásokhoz közvetlenül csatlakozó erkélyek helyett az épület tetején közösségi kert alakul ki zárható fedett terasszal, kerti étkezőasztallal, közös használatú nyári konyhával.

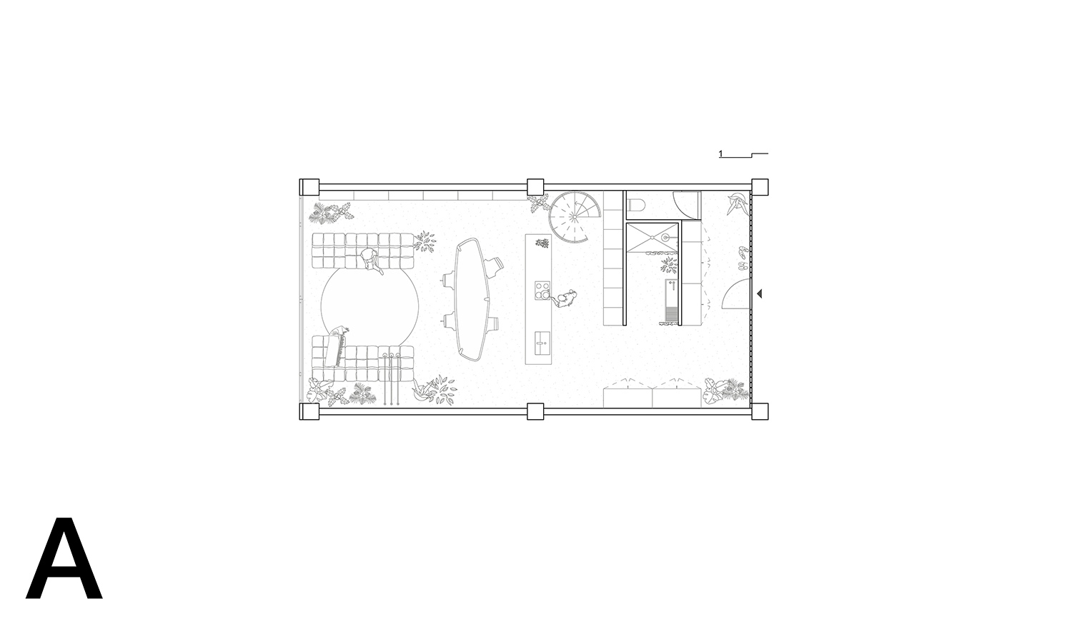
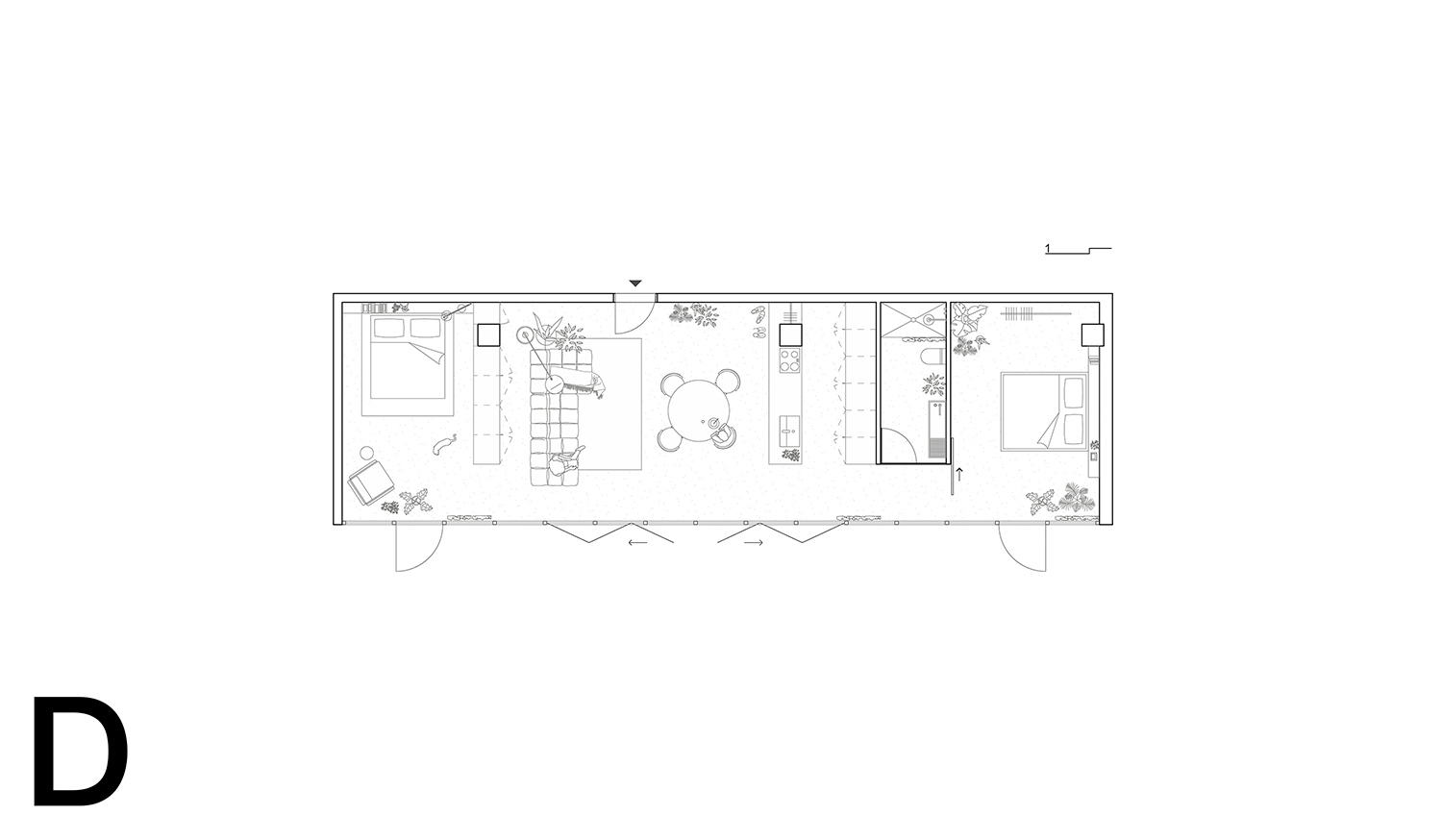
Az alsó szinteken, egyedi helyzetekben találták meg helyüket a különleges lakások. Többek között lakással egészülnek ki az emeleti kihasználatlan fedett-nyitott terek, a nagy előadótérből nyíló, íves, kerámiaburkolatú háttérfallal rendelkező háromszög alaprajzú terek, valamint a háromszintes tömeg alatt, két végén szabadon maradt árkád. Mindegyikhez közvetlenül tetőterasz kapcsolódik. A nagy lapostető felületen virágos rét, méhlegelő idilli világa szeparálja az egyes lakásokhoz tartozó, saját használatú tetőrészeket. A földszinten, közvetlenül a városi nyüzsgésben, az oldalkertekben kialakított gazdasági bejáratok helyén visszaállított kertrészekre orientált, nagy belmagasságú lakások alakulnak ki.
Az első emeleten az impozáns lépcsőtér melletti terület a lakásokhoz tartozó, közös használatú nappali-konyha-étkező tere, a szociális interakció, a közösségépítés helyszíne, a tetőkertre néző, megmaradó megnyitásokkal. Az íves falú kiselőadó a lakókat kiszolgáló házimozi teremmé alakul.

A földszinten szabadon maradt terekben a város számara is nyitott funkciók kapnak helyett. A nagy multifunkcionális előcsarnokba a fedett-nyitott bejárati előtérbe is kitelepülő kávézó és étterem költözik, valamint közösségi iroda munkaállomásai töltik meg a teret. A lépcsőzetes kialakítású nagyelőadó, alkalmanként kis koncertek helyszínévé alakul, napközben pedig a nagy városi nyüzsgésből való kiszakadásra, elvonulásra szolgál, a csend tere.
A meglévő teremgarázsban biztosítjuk a lakásokhoz tartozó gépkocsik előírt mennyiségét, viszont a jövőben az autó nem státuszszimbólum többé, helyüket kerékpárok, elektromos kis járművek veszik át.

Gazdasági-fenntarthatósági szempontok
Lényegi kérdés, hogy az épület elbontása milyen következményekkel jár. A bontási folyamat rendkívüli környezeti terhelés jelent. A környék nyugalma több mint fél évre károsul csak a bontás okán. A munkagépek zaja, a keletkező por az egész környékre hatással van, beleértve a lakosság által pihenésre, rekreációs területként használt Feneketlen-tó körüli parkot is.
Az épület teljes elbontása 35 000 m3 építési törmelékkel jár. A törmeléket szállító teherautóknak 1700 – 1800 fordulót kell megtenniük a legközelebbi lerakókba, ahol befogadják az építési hulladékot. Ez a XI. kerületből indulva az egész útvonalra nézve nagy zaj és forgalom terhelést jelent. Az összesen megtett 120 000 km távolság beszédes adat, hozzátéve azt, hogy az épület elszállítására elégetett üzemanyag meghaladja az 50 000 litert. A bontási munkák költségvonzata nagyságrendileg 1,5 milliárd Ft és fél évet vesz igénybe.
![]() ![]() |
Ezt követi az új vasbeton szerkezetek építése. Egy 15 000 m2-es épülethez felhasznált beton mennyiség nagyságrendileg 11 000 m3. A mixereknek 1500 fordulót kell megtenniük, ami további fél év jelentős por- és zajterhelést jelent. Emellett az építkezés munkafolyamatai könnyen felemészthetik a telken jelenleg meglévő intenzív zöld területeket is.
Egy 15 000 m2 alapterületű épület építési költsége meghaladhatja a 17 milliárd forintot. 10 000 – 12 000 m2 lakás nagyságrendileg 25 milliárd forintért értékesíthető. Ez 10 milliárd forint hasznot jelent, amihez hozzájön még az iroda és étterem funkciójú bérlemények kiadásából befolyó bevételek.

Viszont az épület megtartásával a kivitelezési munkálatok több, mint egy évvel megrövidülhetnek, a bekerülési (befektetett) költség pedig 15 milliárd forinttal is kevesebb lehet. Ebben az esetben az ingatlanfejlesztés profitja nagyságrendileg 7,5 milliárd forint. A különbség egy pohár víz, hogy az unokáinknak is jusson.
A környezetünk védelme ennyit megér, vagy nem? A zsűri véleménye szerint a gondolat „túlzottan idealista, az építészeti narratíva inkább utópisztikus, mint megvalósítható”.
arkt + projectroom
arkt
Fábián Gábor DLA
Fajcsák Dénes
Kiss Dávid
Molnár Csenge Virág
Zsófi Zsombor
projectroom
Fábián Gábor DLA
Juhász Veronika
Pénzes Klaudia
További képek és rajzok a cikk végén található galériában!
Ha tetszett a cikk, és szeretnél előfizetni magazinunkra, itt teheted meg.




