Érdekes megtapasztalni, hogy az építész szakma által ünnepelt alkotások sokszor a közmegítélés szempontjából megosztóak, talán érdekesek, de nehezen emészthetők. Erről szóló cikkünk a 195-ös, 2024/7-es lapszámból közöljük.
A családi ház optimális esetben olyan személyes tér, ahol a lakók hoznak döntést arról, milyen környezetben élnek, tehát milyen szobák, térkapcsolatok, anyagok, felületek, tárgyak és képek között milyen használati rutinok szolgálják a kényelmet, a jóllétet, a biztonságot, az otthonosságot. A köznyelvi szólás is erre utal: „Az én házam az én váram”. Valójában azonban a legtöbb ember késztermékek között válogat, és kulturálisan meghatározott sztenderdek alapján hoz döntéseket saját otthonáról. Pontosan artikulált személyes szándék csak ritkán jelenik meg olyan következetesen, tudatosan és talán fogalmazhatunk úgy, hogy radikálisan, mint ahogyan az Tatár-Gönczi Orsolya által tervezett kicsi családi házban tapasztalható.
A zártsorú beépítésű, kicsi utcában lévő ház térfoglalásában és kontúrjában hagyományos, ami nem meglepő, hiszen a szabályozás elég erőteljesen meghatározza az előkert mögötti kétszintes, nyeregtetős beépítést. Mégis, a ház első látásra eltér a megszokottól. Fekete szálcement hullámpalával borított falai és teteje egyértelmű jelzése annak, hogy a kortárs építészet terén jártas az építtető. És ez így is van, hiszen az építész saját háza előtt áll a látogató. Ez a gesztus, a háznak hullámpalába való becsomagolása nem az első alkalom Tatár-Gönczi Orsolya munkásságában, hiszen a Konkrét Stúdió munkatársaként már használta ezt az anyagot egy Üllőn lévő, nagyon pozitív szakmai visszhangot kiváltó házon (tervezőtársak ott: Balogh Csaba, Deigner Ágnes, Sirokai Levente, Sónicz Péter).

Érdekes megtapasztalni ugyanakkor, hogy az építész szakma által ünnepelt alkotások sokszor a közmegítélés szempontjából megosztóak, talán érdekesek, de nehezen emészthetők. A tiszta rendre, reduktív anyag- és tárgyhasználatra koncentráló építészeti szemlélet például általában sokak számára nem eléggé beszédes vagy érzelmes egy otthon kialakításához, az ipari épületektől ismert hullámpalától pedig idegenkednek. Ebből is látszik, hogy a zavaróan heterogénnek érzékelt városképek ellenére mégiscsak vannak olyan berögzült, szokásos viselkedésmódok, például egy ház fehérre való vakolása, amik természetes megoldásként hagyományozódnak a kultúránkban.
A gyakran hivatkozott, öröklött építészeti kultúra mára töredezetten érzékelhető, erre rátelepszenek a médiából ránk zúduló „vendég” képek, amelyek újabb és újabb ideális környezet ideálisnak tűnő házai iránt keltenek fel vágyakat. Úgy érzékelem, hogy a pandémia óta az eldugott helyek víziói lettek kelendőek: tengeri vistára tájolt nyaralók vagy a havas erdő közepén álló faházak, benne tűzhelyen lobogó tűzzel a legjellemzőbb típushelyzetek. Csend, természeti látkép és harmónia: egy túlingerelő kultúrában érthető és vonzó egy ilyen kép, mégis a sűrű városi környezetben ritkán megteremthető a helyzet.

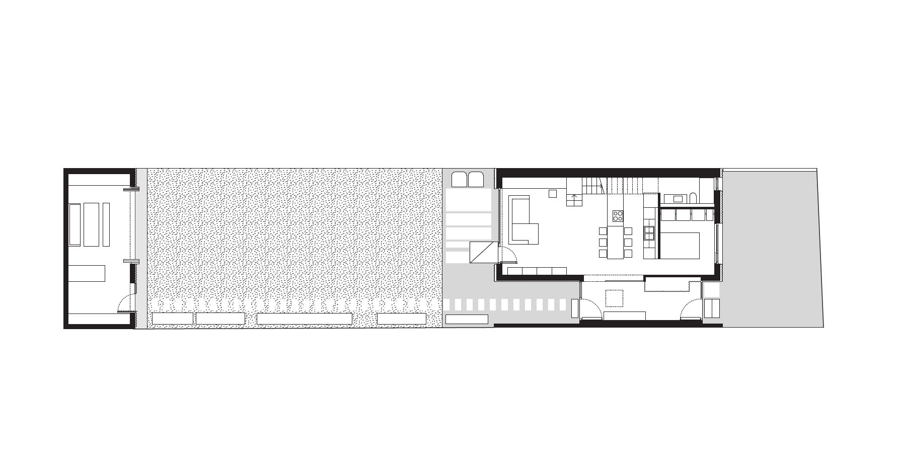
A fekete hullámpalás ház tervezőjének Csillaghegy belső, kisvárosias környezetében, a HÉV és a hegyek közötti zónában ennek az idillnek a megteremtése csodával határos módon mégiscsak sikerült. Bejárva a keskeny telekre ráfeszített kétszintes házikót, amelyben a konyha–nappali terén túl szülői hálónak, három gyerekszobának és két fürdőszobának sikerült szép tereket biztosítani, az otthonosságnak egy nagyon szép átiratát tapasztalja meg a látogató. Ez a harmonikus jelenlét nem emléktárgyakban, nem színek, anyagok, ötletek és önkifejezési szándékok sokaságában jelenik meg, hanem éppen ellenkezőleg, egy olyan mikrokozmosz kialakításában, amelynek minden eleme rendezett, átgondolt és arányos. A legkisebb részletek és a legnagyobb döntések is egyneműek.
Ennek a mikrokozmosznak – azaz önálló rendszerként működő világnak – az építészek által oly gyakran hangoztatott az anyag–technológia–szerkezet–forma közötti kiegyensúlyozott kapcsolat az oka. Így a mindenhol uralkodó fa itt nem borítás, hanem maga a szerkezet: a CLT (cross laminated timber) különböző szálirányba forgatott, egymásra ragasztott, pontos méretre szabható, többrétegű falapokból való építkezést jelent. Ausztriában már egy évtizede használják, mára itthon is egyre divatosabb, természetes anyag, amelynek nemcsak az állékonysága, de az akusztikai és hőszigetelési adottságai is kiválóak. A ház megtervezése tulajdonképpen egy szabásminta elkészítéséhez hasonlítható – ház és öltözet kapcsolata persze behívja Gottfried Semper egyik fontos alaptézisét, a ház falainak a test védelmét szolgáló öltözetként való értelmezését; a méretre való szabás – custom made architecture – pedig a digitális ipar fontos lehetősége.

A CLT technológiával épített ház elemei milliméter (!) pontosságúra levágva, teherautón érkeznek. A gyártási terv készítése az építésztől másfajta szemléletet kíván meg, ez az építkezés például a sajátosan formált nagy felületek létrehozásakor igazán optimális. A csillaghegyi ház szerkezete öt nap alatt épült fel: a puzzle darabkák szépen csusszantak egymáshoz, a vastag fában a kábelek bemarása vagy az illesztési pontok meghatározása is már előre, a rajzasztalon történik meg. A házat tehát fejben előre ki kell találni úgy, ahogy van, konnektorostól, vízvezetékestől. A CLT házak többféle fa minőségben készülhetnek, az ipari nyerstől a bútorminőségű látszó felületekig elérhetők: ennél a háznál a míves, de nem tökéletes felület mellett voksolt az építész. Érdekes, hogy a legtöbben gipszkartonozással és festéssel eltakarják ezt a nemes anyagot, Tatár-Gönczi Orsolya azonban nemcsak látszófelületként használja a CLT-t, hanem a panelekből kieső hulladékokot bútorként is hasznosította: a lépcsők vagy akár a pultok, a konyhabútor szigete, de még az ajtókitámasztó vagy a kültéri lelépő is ebből készült.
Az anyaghasználat következetessége azonban nem lenne elég a sikerhez: a téralakításról való gondolkodás, különösen a belső és külső térkapcsolatok átgondoltsága teszi érzékeny alkotássá ezt a házat. A belépés dramaturgiája nagy élmény: az alacsony oldalszárnyban lévő előszoba és gépészeti tér a kert irányába transzparens, így a bejárati ajtón túl azonnal húzása lesz a térnek. A telek végét a szomszédos házak sufnijaihoz hasonlóan egy kis épület zárja le. A műhelynek nevezett nyári nappali (és nem konyha) tulajdonképpen ellenpontja a nappali terének: az egyedi, finoman megmunkált felületekkel kialakított konyhabútor formájára válasz a kerti házikó nyers padja. A kert ugyan most még üres, tulajdonképpen csak átjáró gyepes rész a két épület között, ugyanakkor szép ez a távlat a nappaliból nézve, ami igen meglepő egy sűrű beépítésű városrészben.

Az összhatásnak nagyon fontos eleme, hogy a belsőépítészet is koherens világ, ebben Toronyi Dávid Péter építésznek, asztalosnak, belsőépítészeti alkotótársnak az érdeme elvitathatatlan. A kapható termékek és az egyedi gyártmányok szépen ízesülnek egymáshoz, legyen szó fürdőszobai tusolóról, IKEA korpuszra épülő bútorról vagy olyan finomságokról, mint a plafonról lelógó előszobai fogas. A ház három éve épült, de még folyamatosan alakul, a benne élők használatára reagál és persze az anyagi lehetőségek függvényében gazdagodik fel. Ez a „felgazdagodás” azonban csak a figyelmes szemnek észlelhető, mert nem a tárgyak, emlékek, képek elszaporodását hozza magával, hanem egy-egy részlet finomhangolását.
Persze ennél az épületnél is adódik úgy, hogy egy nem teljesen kész állapot rögzül, de ennek jellemzően az az oka, hogy számos szokásos elemről derül ki, hogy akár el is hagyható. Ilyenek például az ajtók vagy a bejárat mellett lévő high-tech gépészeti fülke eltakaró szekrénye, amelyet most egy lágyan hullámzó, nyers anyagú függöny takar. A hullámzó textília térelválasztóként vagy függönyként számos helyen megjelenik – és ahogyan ez egy rendezett világ felfedezése során már csak lenni szokott –, újabb és újabb interpretációkat hív ez elő, így a világos és puha textil visszaidézi a homlokzati anyagnak, a fekete és kemény szálcementnek a hullámos felületét. A külső tér erős építészeti karaktere a belső térben így szelíden, tapintásra ingerlően, szerethetően van jelen.

A bejárat és a nappali közötti tér kopolit üvegfalánál megállva, nézve az említett lecsendesített külső és belső teret, hatalmas a nyugalom, miközben a gyerekek jönnek-mennek, esznek, tanulnak, majd saját szobájukba visszavonulnak. A tér gazdagon belakódik, ez az otthon láthatóan szépen élhető. „A ház él, beszél hozzánk! Ropog még az időjárás változásakor, így most a hideg évszak elején” – mondja a tervező, és ez a fenyőillattal átitatott falak között nagyon is átélhető. A kritikának talán elsődlegesen nem is a látványról, hanem erről az illatról, a fa tapintásáról, egy természetes környezet bőrön át érzékelhető minőségéről, a nyugodt lélegezésről kellene inkább szólnia.
Tervezés éve: 2020
Kivitelezés/átadás éve: 2021
Nettó terület: 118 m2
Építész vezető tervező, belsőépítész: Tatár-Gönczi Orsolya
További képek a cikk végén található galériában!
Ha tetszett a cikk, és szeretnél előfizetni magazinunkra, itt teheted meg.


