Erről szóló cikkünk a 124-es, 2015/8-as lapszámunkból közöljük.
A hetedik kerület szíve volt a Klauzál tér, leánykori nevén Stephans Platz, 1874-1907 között István tér. Járt itt régen villamos, színház is működött. És a vásárcsarnok, ami persze hivatalos megnyitója, 1897. február 15. óta is lényegében folyamatosan üzemel. Mostantól megújulva, olyan lehetőségekkel, amik révén újra a kerület centruma lehet a Klauzál.
Mint az Kun Zoltán és munkatársainak, a jelen rekonstrukciós bővítés tervezőinek építészettörténeti dokumentációjából megtudható: feltehetően németországi, egészen pontosan berlini vásárcsarnokok adták a mintát egykor a Klauzálhoz, legjobban az ún. Berlini 9. számú csarnokhoz hasonlít a telepítése, valamint a csarnok és a lakóház kapcsolata okán. 1884 márciusában fogadták el a javaslatot vásárcsarnok létesítésére a téren és Czigler Győző építész, műegyetemi tanár javaslata alapján jelölték ki az épület pontos helyét, amelyet négy telek kisajátításával, összevonásukkal nyertek.

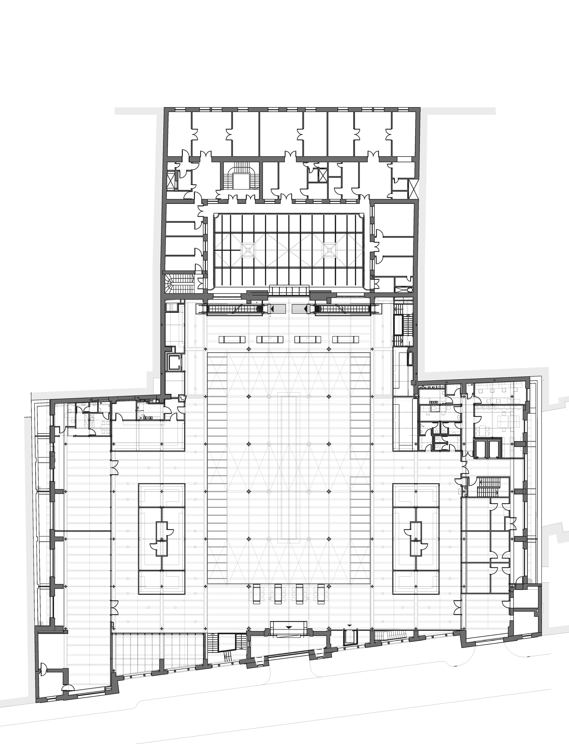
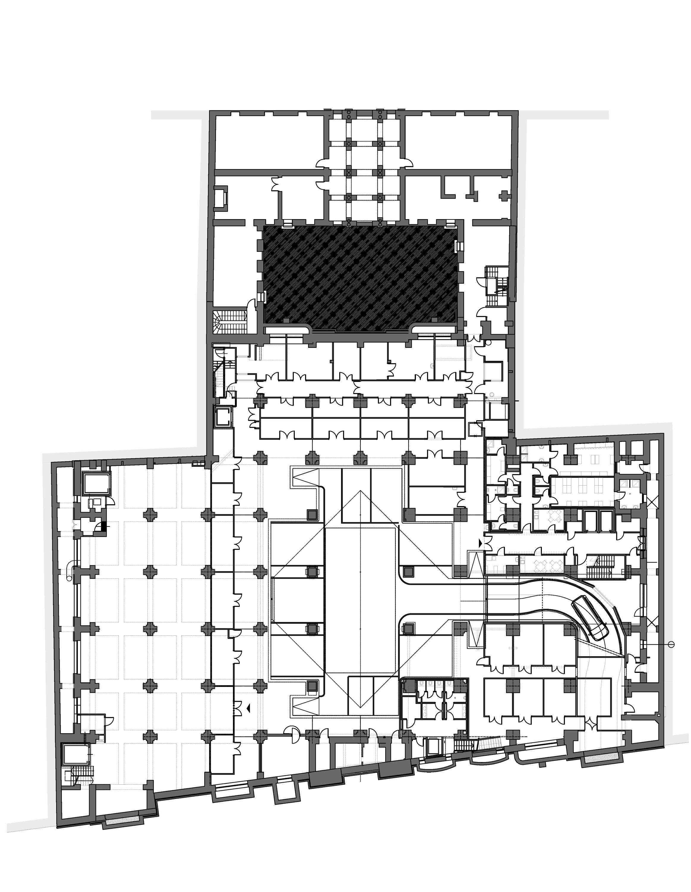
A szabálytalan T alaprajzú, alápincézett, öntöttvas oszlopos, acél tetőszerkezetes csarnoktérrel kialakított épület tervezése és kivitelezése 1893-1897 között zajlott. A vásárcsarnok eladóterét az Akácfa utcai oldalon építették fel, az István téri oldalon pedig a függőfolyosós, négyszintes (fszt. + 3 szintes) bérházat. A terv az volt, hogy a bérház bevételével csökkentik az áruhelyek bérleti díját és az élelmiszerárakat (a lakóépülettel kapcsolt vásárcsarnok-épület nem ismeretlen ebben a korban), de az 1893-as engedélyezési terven látható, hogy kávéházat és éttermet is terveztek az épületbe, téri bejárattal.
Biztosan nem tudható, hogy ki volt az épület építész tervezője, a korai terveken még Kommer József, a kivitelieken Klunzinger Pál aláírása szerepel. A tervezést Krátky János vezette és felügyelte, ő az, aki ugyanezen időben épülő több fővárosi vásárcsarnoknál is együttműködő volt; a kivitelezésben 26 különféle vállalkozó vett részt. Az 1945 után államosított csarnokot és lakóépületet 1986-87-ben újították föl és építették át (építész tervező: Kovács Sándor/Szövterv), sajnos az ezt megelőző állapotról csak néhány fénykép maradt fönn. Ekkor a csarnokból hipermarket lett: az épületek külső homlokzatait nem érintette az átépítés – csak a légudvarra nézők módosultak kissé –, az eredeti nyílászárók java része megőrződött, miként az acél tartószerkezet és tetőszerkezet szintén.

A lakóépület udvarára ekkor pavilonok kerültek, a csarnok két oldalhajóterét galériával, s az azokat összekötő, keresztirányú „híddal” bővítették, a pincét és a földszintet összekapcsolandó: áruszállító liftet építettek a Dob utcai udvari szárnyba – hogy csak a leglényegesebb átalakításokat említsük. Ebben az időben létesült az udvari homlokzat tetőépítménye is, ami a kazánház elhelyezését szolgálta, a földszinten pedig gázfogadó létesült, ezek „tükrözik” az akkori idők elhibázott gondolatát: a csarnoktér teljes kifűtésének (!) igényét.
Kun Zoltán és munkatársai számára a jelen rekonstrukció és átalakítás programjának alapját lényegében az épület értékeinek védelme és a hasznosítás határozta meg: a csarnok földszintjének közel ezer négyzetméterén (plusz értelemszerűen az angolaknák révén bevilágított, átszellőztetett pince kapcsolódó részén) a Spar élelmiszer-áruház működik majd, a további részeken hagyományos piaci működést kíván megvalósítani az önkormányzat. Ennek építészeti megfogalmazását – örül e sorok szerzője, hogy leírhatja ezt – az építészekre bízták.

Kun Zoltánék alapos dokumentáció és állapotfelmérés után úgy döntöttek, hogy mindent, ami megőrizhető a régmúltból, azt renoválják vagy rekonstruálják, például a ’87-ben épített galériát lebontották ugyan, de korszerű formában újra galéria épült. A renoválás révén eredeti szépségükben láthatóak mostantól a homlokzatok, a tetőzet, a funkciókijelölést követően pedig, mivel a Spart – a Klauzál tér felől nézve – a csarnoktér bal oldalára pozicionálták, lehetőség nyílt arra, hogy a tér egykori vertikális és horizontális jellege, áttekinthetősége, tágassága ismét főszerepet kapjon.
A földszinten és a galérián egységes arculattal 50-150 négyzetméter közötti alapterületű üzlethelyiségeket alakítottak ki, a galéria és földszint közötti kapcsolatot az oldalhajó régi lépcsősorán fölül, a Klauzál felőli belső homlokzati oldalon mozgólépcsőkkel oldották meg. A nagyobb áruberakodás korszerűen a pincéből történik: a Klauzál tér felől kisteherautóval juthatnak be az árusok a pinceszintre, innen liftrendszerrel lehet feljuttatni a földszintre, galériára az árut – de szociális részeket is építettek lent. Szólnunk kell a csarnoktérből megközelíthető bérházudvar átalakításáról is, mivel a komplexum fennállása óta bizonyára először sikerült megnyugtató kialakítást létrehozni az udvaron.

Hosszú volt ez a tervezési szakasz, mert az építészeknek olyan, az udvartér és a lakószintek integritását megőrző, egyúttal viszont a privátot a közösségitől elhatároló „választ” kellett adniuk, ami ráadásul jól működő és a ház eredeti szerkezeteit sem bontja meg. A Kun Zoltánék végül üvegtetős udvarlefedéssel terveztek, de olyan homogén hatású struktúrával, aminek a fémszerkezete nem „ér hozzá” az udvari homlokzatokhoz, a központi, vertikális alátámasztásait pedig úgy rajzolták meg, hogy a tartószerkezetek felső végpontjain egyúttal a természetes szellőzés is megoldott.
A csarnoképület és a kapcsolódó lakóházudvar jelen építészeti megfogalmazása olyan, az élelmiszerárusításon túli közösségi programok megrendezésére kínál lehetőséget a kerület vezetésének, amivel (ha már az önkormányzat az értékmegőrzés és korszerűsítés mellett tette le a voksát a Klauzál csarnok projekt végrehajtásával) úgy gondoljuk, kötelezően ajánlott élniük.
Tervezés éve: 2013
Megvalósítás éve: 2015
Volumen: kb. 7000 m2
Vezető építész tervező: Kun Zoltán (Kunyhó Építésziroda Kft.)
Építész tervezők: Hamar Éva, Balázs Ildikó
Rajzok a cikk végén található galériában!
Ha tetszett a cikk, és szeretnél előfizetni magazinunkra, itt teheted meg.


