Erről szóló írásunk a 201-es, 2025/5-ös lapszámunkból közöljük.
„Építés közben van egy pillanat, amikor a készülő ház jobb mint a végeredmény.” Gondoljuk csak végig ennek a mondatnak jelentését alaposan! Ki a beszélő? Biztosan kizárható, hogy a kijelentés forrása a megbízó volna. Kézenfekvő lenne ugyanakkor, hogy a mondat forrása az építési munkálatokat végző kivitelező, akinek feladatot, munkát, kihívást, megélhetést az építés fázisa jelent. Ennél azonban sokkal izgalmasabb felvetés, ha az építésztervező a forrása. Mit is állít ugyanis az építész szemszögéből ez a mondat? Feltételezhetjük- e azt, hogy az építész megélése nem pontosan fedi egymást megbízójának megélésével?
Turányi Bence építésszel beszélgetünk a Naphegy lábánál nemrégiben elkészült háza kapcsán arról, hogy számára az építészeti jóság és szépség tulajdonképpen az építés közben formálódó szerkezetben bomlik ki. Van tehát egy pillanat, ami a tervrajz jóságában még nem teljesen jelenik meg, és olykor a kész ház végül elfed. Turányi és munkatársai ezzel a házzal arra tettek kísérletet, hogy a megbízó funkcionális igényeinek kielégítése mellett a szerkezet és a szerkesztés jóságának, szépségének megragadásával kísérletezzenek, végeredményben a szerkezet és szerkesztés igazságára találjanak rá. Ráadásul ezt a feltáró narratívát nem a modernista konstruktivizmus vagy a posztmodern dekonstrukció elméleti doktrínáiban gondolták létrehozni, hanem a megrendelői igényeket és lehetőséget, a műfaj sajátosságait messzemenőkig tiszteletben tartva. Nem egyfajta építészeti kiáltványra, demonstratív építészeti manifesztum megépítésre törekedtek, nem egy elmélet illusztrációjára, hanem egy jó házra.

Kezdjük a műfaj tisztázásával. A megbízás egy saját székház, saját irodaház megtervezésére vonatkozott, ami a spekulatív bérirodaház-fejlesztésekkel szemben lehetőséget teremt a tervezőknek arra, hogy a megbízó vállalati kultúráját, értékrendjét, működését pontosabban analizálhassa és a programot ezekre a konkrét igényekre szabhassa. Itt persze fontos körülmény az is, hogy esetünkben egy évtizedes építőipari múlttal bíró vállalkozásról van szó, aminek az irányítói között építőmérnökök és építészek egyaránt megtalálhatóak, ráadásul a Bohn egy magyar családi vállalkozásként játszik meghatározó szerepet a hazai mélyépítésben.
Ugyancsak fontos tudni, hogy a megbízók már az építési telek kiválasztásánál és elemzésénél is bevonták a tervezőket, ráadásul a megbízó a generálkivitelezés és projektirányítás feladatait is ellátta. Mindazonáltal a munkahelyeket, közösségi teret, sőt mélygarázst is magába foglaló program még így is túlfeszítettnek tűnt első látásra, amit viszont a ház szerkezeti és építészeti jellegzetességeivel sikeresen tudtak a tervezők kezelni. Válaszokat kerestek és a válaszokat a megbízó cég tudásának, valamint a bevezetőben leírt szerkezeti jóság és őszinteség koordináta-rendszerében találták meg.

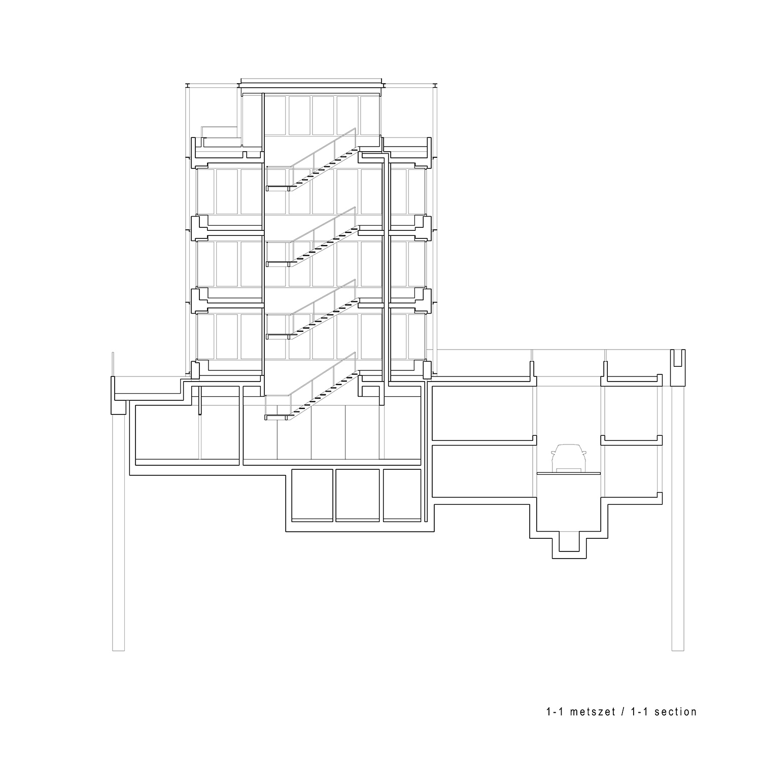
Mivel is foglalkozik egy mélyépítő cég? Profán egyszerűsítéssel és a jelen építőiparára vonatkoztatva egy mélyépítő cég résfalak építésével vagy cölöpözés alkalmazásával egy térszín alatti vasbeton „gödröt” vagy támasztószerkezet hoz létre, amibe – az alaplemez-kivitelezés után – az épület bele-, illetve ráépül. Mivel az építés térszín feletti részei még akkor is eltakarják, eltüntetik ezt a befogadó szerkezetet, ha pincék, teremgarázsok épülnek ki, ezért a mélyépítés ezen szakága szinte csak a beruházások kezdeti fázisában látható, a laikusok számára tünékeny, átmeneti még akkor is, ha tudható, hogy ez az első fázis alapoz meg és tart meg minden későbbi fázist. (Engedje meg a tisztelt olvasó, hogy most itt a szigetelés, talajmechanika és még ezer fontos összetevőről ne ejtsek szót.)
Turányiék a megbízó mélyépítő cég székházának esetében azonban pontosan azzal a lehetőséggel kezdtek el foglalkozni, hogy mi történnék akkor, ha ez alapkonstrukció nem játszana alárendelt szerepet a felépítmény megvalósításában, hanem a térszín alatt is esztétizáló, teljes értékű terekre törekvő építészeti elbeszélés jelenne meg, amire ráadásul nem ráépülne, nem kitöltené a székház felépítménye, hanem mintegy annak külső kontúrjából visszahúzva növesztenék ki az épület tartószerkezetét, emeleti födémet. Nem elváló rétegek valósulnának meg tehát, hanem egy szervesebb kapcsolat a két fő szerkezeti alkotóelem között.

Ebben a logikában ráadásul az épület külső acélszerkezeti váza az irodai hasznos terekből sem vesz el, a visszafogott méretű irodaszintekben nem jelent belsőépítészeti problémahalmazt a belső oszlopok, pillérek jelenléte. Sőt! A külső tartószerkezet acéltartói a szerkezeti őszinteség homlokzati megjelenítése mellett egy filigrán vasbeton-liftmag, illetve egy lazán, légiesen és áttörten szerkeszthető lépcsőház beépítését tette lehetővé. Ez a struktúra a parapetmagasságtól kezdve a födémek vastagságán és az üveg nyílászárók méretén át a belső légkezelés gépészeti elemeinek elhelyezkedéséig, a beépített bútorok elhelyezéséig mindenre hatással volt.
Kulcselemmé vált tehát az a koncepció, ami abból indult ki, hogy az építészeti szerkezet esztétikuma, feltárulkozó szépsége, az épületszerkezet őszinte megjelenítése valódi értékeket hordoz. „Mint egy ókori épület régészeti feltárása.” Ezt a mondatot szerkesztő kollégám mondta ki, amikor az első fotókat átnéztük a cölöpözéssel kialakított, légaknával (angolakna) feltárt földszinti közösségi térről és parkolókról készült fotókat. A legtöbbször eltűnő mélyépítési szerkezet felszínének archaikus, erőteljes kisugárzásától és látványától szinte földbe gyökeredzik a láb. Telitalálat! Az utcaszintek alatti titkos világ feltárulkozása, miközben pinceérzésnek nyoma sincs. A kivitelezés és kialakítás anyagszerűsége, illetve a közösségi irodatér bútorozása és belső tere, burkolatai is példátlan összhatást eredményeznek.

Az irodaterekre és erre a térre is igaz, amit az építész mondott: a végeredmény tulajdonképpen olyan, mintha szintenként egy-egy elegáns, modern villalakás jött volna létre. Ebbe az eleganciába ráadásul még egy összetevő is közrejátszik. A tervezőknek sikerült az összes gépészeti elemet elrejteni, így sem a kertben, sem az épület tetején nem éktelenkednek gépészeti elemek, miközben a ház a legkorszerűbb hőcserélő, hőszivattyús rendszerekkel szerelt, míg a teremgarázs használatát nem a hagyományos, de hatalmas helyigényű lehajtóval, hanem gépkocsiliftekkel oldották meg.
Másfél óránál is többet töltöttünk, míg az alsó közösségi irodatértől a felső, tetőteraszos tárgyalószintig bejártuk a házat. Ennek a másfél órának a végén egyszer csak – engem is meglepő váratlansággal – jutott az eszembe, hogy itt a Naphegyen van egy épület, ami valószínűleg valamiféle tudatalattiként, de talán mégis szerepet játszhatott ennek a rendkívüli irodaépületnek a megalkotásában. Félreértés ne essék! Ne úgy gondoljon a tisztelt olvasó erre a párhuzamra, hogy itt valamiféle átiratról lenne szó, mert Turányiék háza egészen más gondolati utat jár be, de Budapest egyik legjobb és legféltettebb épületének, Virág Csaba MTI-irodaházának kisugárzása mégis csak itt lebeg a környék utcái felett. Talán nem túlzok azzal, ha azt állítom, méltó szomszédsággal gazdagodott a modernista klasszikus.
Tervezés: 2021 – 2023
Kivitelezés: 2022 – 2024
Bruttó szintterület: 1150 m2
Hasznos terület: 930 m2
Generáltervező: T2.a Építésziroda Kft.
Építész, felelős tervező: Turányi Bence
Projektépítész: Balla Gábor
Építész munkatársak: Gyurcsó Renáta, Laczkó-Pető Bálint
Mélyépítési szerkezetek: Manninger Marcell
Épületszerkezetek: Sipos Gergely
Épület tartószerkezeti tervezője: V. Nagy Zoltán
Építtető: Bohn Mélyépítő Kft.
További képek és rajzok a cikk végén található galériában!
Ha tetszett a cikk, és szeretnél előfizetni magazinunkra, itt teheted meg.


