Erről szóló cikkünk a 135-ös, 2017/3-as lapszámunkból közöljük.
Kovács Csaba saját házának megformálásánál alapszínek és alapformák összhangját kereste, megoldásai pedig úgy tették azonosíthatóvá az épületet, hogy annak minden nyersesége ellenére nem kerül konfliktusba a környezetével.
Az elmúlt évek folyamataiból is látszik, hogy a magyar, ha lakni akar és olyan szerencsés, hogy lakni is tud, ezt a formát választja legszívesebben. Az értelmezhető vásárlóerővel rendelkező népesség többségének fantáziájában ez a modell jelenti a szociális, gazdasági és kulturális aspirációk beteljesedését. Hallani ugyan eltérő folyamatokról is, de ezek parciálisak, a Budapest szélén és azon túl burjánzó szuburbia népessége stabilan nő, és a különböző társadalompolitikai eszközök, szabályozások is ezt a folyamatot támogatják. Ha már így alakult, érdemes górcső alá venni, milyen lehetőségei vannak az építészetnek ebben a kaotikus közegben.

A villamos Hűvösvölgyi végállomásától a cím felé bandukolva konstatálom, hogy a rendezettség és a szombati idill ellenére a város burjánzó pereme még itt, a divatos fővárosi északnyugaton is milyen formátlan, koncepció és referencia nélküli. A különféle fragmentumokat magába olvasztó, vegyes háztengerben épületet alkotni gondolatot, türelmet és önfegyelmet igényel. Kíváncsi voltam, mihez kezd egy építész a feladattal, amikor történetesen önmaga megbízójául szegődik.
A ház a központ felől a hegyre kaptató lankás utcában, a telekhatártól jócskán hátra húzva, tágas előkert mögött áll. Mint említettem, „az építész házáról” van szó, márpedig az ilyen alkalmakkor a recenzens általában felhevül a lehetőségtől, hogy állásfoglalásként, személyes vallomásként értelmezheti a házat. A megrendelő figurájára itt nem lehet a kellemetlen „másikként” hivatkozni, a szerzőnek kellene itt előlépnie, aki végre a saját terrénumában hívható tetemre.

Esetünkben a ház szinte megrendítően egyszerű, tiszta és azonnal olvasható; minden expresszív blikkfangot nélkülöz – kissé zavart topogásra is kényszerít; hol találom itt meg az ars poeticát, hol csípek fülön valamilyen mániát, elfojtott ambíciót, túltervezett mozzanatot?
Kár, hogy az ingatlanpiac marketing-gépezete kisajátította, majd sikeresen kommercializálta az olyan kifejezéseket, mint a modern, funkcionalista, letisztult, pedig itt mindegyik adekvát és pontos meghatározás lehetne. A ház úgy testesít meg egy esszenciális archetípust, hogy közben csak finoman, erőltetett kompozíciós gyakorlatok és idézetek nélkül utal a műfaj hazai és univerzális, illetve vernakuláris és absztrakt tradícióira. A szemcsés-fehérre vakolt, nyúlánk hasáb alakú tömeg minden agresszió nélkül fejezi ki autonómiáját a vadregényes kerttel, a szomszédos házakkal és az utcával szemben is, ugyanakkor nem zárkózik el ezektől. A tömböt kis hajlásszögű, sötét fémburkolatú nyeregtető zárja, ha akarom a hagyományra kacsintva, ha hunyorítók észrevétlenül.

Itt megjegyzendő, hogy Kovács Csaba házának van egy titka, méghozzá a láthatatlan kontinuitás, a meglévő, talált anyagok és adottságok adaptációja a teljesen újba. Mint más munkáiban, (pl.: a galyatetői kilátó és turistacentrum) az építész itt is a telken álló ház alapfelépítményének megtartása mellett döntött. A szikrázó fehér festés alatt a ház új szerkezetei évszázados téglákon nyugszanak, a ház pozíciója és az alaprajz arányai is részben az öröklött tulajdonságokból adódnak.
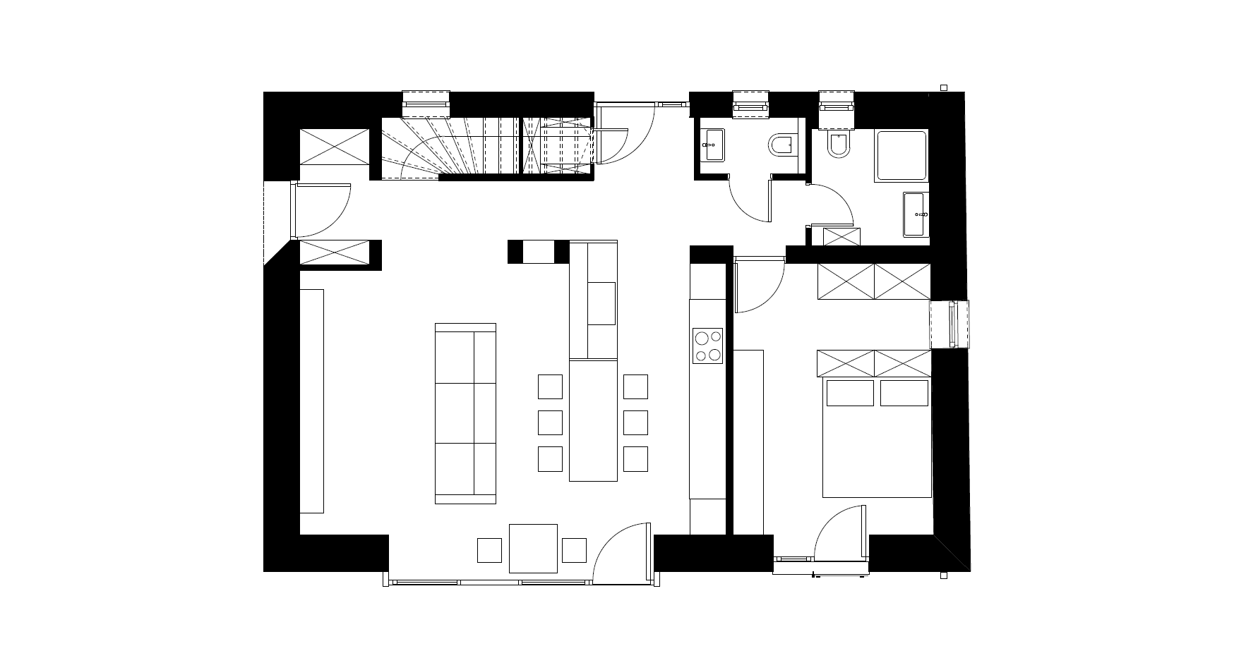
Apropó titkok: a zöldövezeti házak tervezésének egyik kurrens alaptétele a szomszédságtól való elzárkózás, az utca felé forduló introvertált, enigmatikus-komplexusos homlokzatokkal. Esetünkben a földszint közös terei – nappali-konyha-étkező, a kapcsolódó szülői hálóval – és az emeleti gyerekbirodalom is az utca felé fordul. A nappalit egy nagyvonalú, szürke keretezéssel megünnepelt nyílás teljes egészében feltárja a terasz, majd az ősfás előkert, végül az utca irányába is. Ugyanezen a fő közlekedőre merőleges tengelyen teremt vizuális és fizikai kapcsolatot a hátsó kerttel és az utcára néző betonterasz hűvösebb, északias párjával a hátsó homlokzatot áttörő, dupla magasságú nyílás.

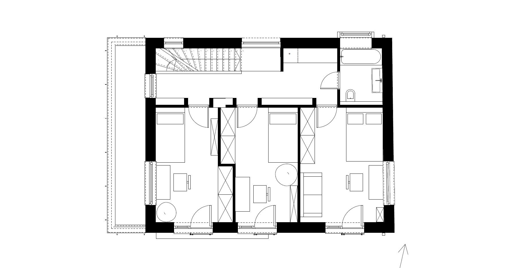
A teljes program úgy fért el 130 négyzetméteren, hogy sehol sem szűkös a hely, a feszes emeleti gyerekszobák, és a hozzájuk csapódó tükrös-trükkös fürdőszoba például kifejezetten irigylésre méltók. Az újhullámos saját portát álmodók – és rajzolók – másik beidegződése, hogy lehetőleg minden egyes funkciót épített falakkal szeparáljanak el egymástól, itt erre sem lehetőség, sem leküzdhetetlen igény nem mutatkozott. Jó hír, hogy a beépített szekrényekbe rejtett mosógépek, tárolóegységek, gépészeti csomópontok, stb. modern toposza 2017-ben is nagyszerűen optimalizálja a helykihasználást. A szikár racionalitást és hatékonyságot mindenesetre pont jókor és jó helyen téríti el a lépcső tetején a födémet helyettesítő, szitanyomott üveglap kiváltotta szédülés, vagy a gyerek- és fürdőszobák vidám-szintetikus színezése.
A teraszra visszatérve felhozom a ház – alkotó – urának az ars poetica témáját. A kis habozást követő választ a háttérből a ház igazolja; nincs szubjektív poétika, csak a problémák értő, szellemes megoldása, empatikusan – lehetőség szerint mind a megrendelő, mind az építészet irányában. Az építész háza egy magazinban ennek a konstruktív és nyitott tervezői attitűdnek jó esetben hiteles illusztrációja, helyben pedig - ahogy én láttam – lakható és szerethető eredménye.

Az ilyesfajta pragmatizmusnak és racionalitásnak persze számos buktatója lehet, és ez a redukált családi villa is könnyen csúszhatott volna az érdektelenség és a jellegtelenség zónájába. Szerencsére a figyelem és az igényesség a ház minden léptékénél érvényesült, a látható lelkesedéssel kimódolt egyedi részletek pedig egyértelművé teszik, hogy a józanság nem sematizmus, az egyszerűség pedig nem együgyűség vagy álszerénység.
Építészet: NART Építészműterem Kft.
Építész vezető tervező: Kovács Csaba
Építész munkatársak: Szenthe Ágoston, Gyuris Eszter, Tóth Kitti
Belsőépítészet: Kovács Csaba
További képek a cikk végén található galériában!
Ha tetszett a cikk, és szeretnél előfizetni magazinunkra, itt teheted meg.


