A hatvanas, hetvenes évek nyaralóépítészetének legletisztultabb, tulajdonképpen archetípusnak nevezhető modelljét tekintette előképnek a tervező. Erről szóló írásunk a 196-os, 2024/8-as lapszámunkból közöljük.
Hosszan lehetne elemezni a balatoni nyaralók építészetének elmúlt évtizedét. Sorolhatnánk kitűnő, érzékeny és természetesen rossz példákat, miközben fontos megemlíteni, hogy igen jelentős a balatoni nyaralók építészetének szakirodalma, a múlt értő elemzése, valamint azt is, hogy a jelen értékválságának dokumentálására több kitűnő szakember is vállalkozott az elmúlt időszakban. Sajnálatos tény ugyanakkor, hogy egyfajta túlépítés, a kommersz konfekcióépítészet időszakát éljük, amiben a megrendelők, a rendeletek, a szabályozók és a tervező építészek felelőssége, felelőtlensége tagadhatatlan. Moralizálás helyett a magam részéről úgy gondolom, hogy nem tehetünk mást, mint nem szabunk határt lelkesedésünknek, ha olyan példákkal találkozunk, amiket nagyra értékelünk, ami nem pusztán építészetként, hanem kulturális tettként is értékelhető.
Kezdjük egy kicsit távolabbról. Vékony jégen jár az, aki bármely kortárs művészeti ágban és az építészetben a műfaj, illetve a stílus fogalmakat használja. Olyan hibrid jelenségekről van ugyanis napjaink alkotói folyamataiban általában szó, amiben a többszólamúság, a határátlépés, az értelmezői, befogadói nézőpontok sokszínűsége, az idézetek, jelentésárnyalatok gazdagsága, az egyediségre, az autonómiára való törekvés jelenik meg. Meglátásom és értelmezésem szerint a most bemutatni kívánt balatoni nyaraló építészetében az a leginkább figyelemreméltó törekvés, ahogyan az építész a műfaji és stiláris tisztaság megragadására törekszik.

Nem nehéz stilisztikai kapcsolatot találni a Budapesti Műszaki Egyetemen diplomázó, Zürichben élő és dolgozó Balog Ádám építész 2021-ben publikált átriumos ikerházának belső logikája és a frissen elkészült nyaraló építészeti nyelve között. (Octogon, 2021/7.) Dabason a megbízók által elvárt ikerházra vonatkozó programot éppen úgy egy műfaji koncepció tisztázása után sikerült kitűnően megoldania, mint ahogyan itt, a déli parton. Az építészeti invenció értelmében a dabasi telken erőltetettnek ható, a megbízók szempontjából sem ideális „közös falas”, szimmetrikus ikerház helyett egy másik műfajban adódó lehetőségeket használta ki az építész.
Ikerház helyett egy átriumház terve valósult meg, ami térhasználati, illetve a szomszédsági viszonyok rendezése kapcsán is ideálisnak bizonyult. Nagy vonalakban nem történt ez másként a Siófokkal összenőtt Szabadifürdőn elkészült nyaraló esetében sem, noha itt a döntés valójában arra vonatkozott, hogy a déli parti vasút és a 7-es út tóparttól átellenes oldalán lévő nyaralóterületen megvásárolt apró telken a hatvanas, hetvenes évek nyaralóépítészetének legletisztultabb, tulajdonképpen archetípusnak nevezhető modelljét tekintse előképnek a tervező.

E sorok szerzőjének abban a szerencsében van része, hogy két legközelebbi barátjának a családja is hasonló szellemben épített nyaralókat birtokol Széplakon, illetve Szabadiban – tehát a közelben. Így személyes benyomásom is van erről a lapostetős, a tetősíkot némileg teraszfedésként kihúzó, négyzetes alaprajzú, apró telken felépült, mindössze 50-60 négyzetméteres nyaralótípusról.
Balog Ádám a műfajt tekintve és stiláris szempontból a lehető legtisztább átiratát készítette el ennek az előképnek.
Tizenöt perc sétára a parttól, egy rövidke zsákutcában, érezhetően kis alapterületű nyaralóknak parcellázott, úgynevezett üdülőtelepre érkezünk, ahol az „alpesi” faháztól, az utánfutón télire kihúzott kisebb vitorláshajók tárolására használt üres telken át régi és átépített nyaralókig sokféle házformával találkozunk. Ebben a vegyes összképben a maga letisztult, visszafogott megjelenésével üdítően hat a stílusában hagyományos, építésben új nyaraló.

Súlyos tévedés volna retróról, nosztalgiáról, vagy egyfajta purista, puritán gesztusról, illetve minimalizmusról beszélni itt, sokkal inkább a helyénvalóság fogalma juthat az eszünkbe. Nem lehet ugyanis ideológiai kérdést csinálni abból, hogy ez a takaros és takarékosan építhető, a használati kívánalmaknak a mai napig remekül megfelelő, ebben a tekintetben tökéletesen funkcionális épületkoncepció a déli part épített környezetének szerves részévé vált. Az építész a műfaji és stiláris kérdésekre tökéletesen tiszta választ adott.
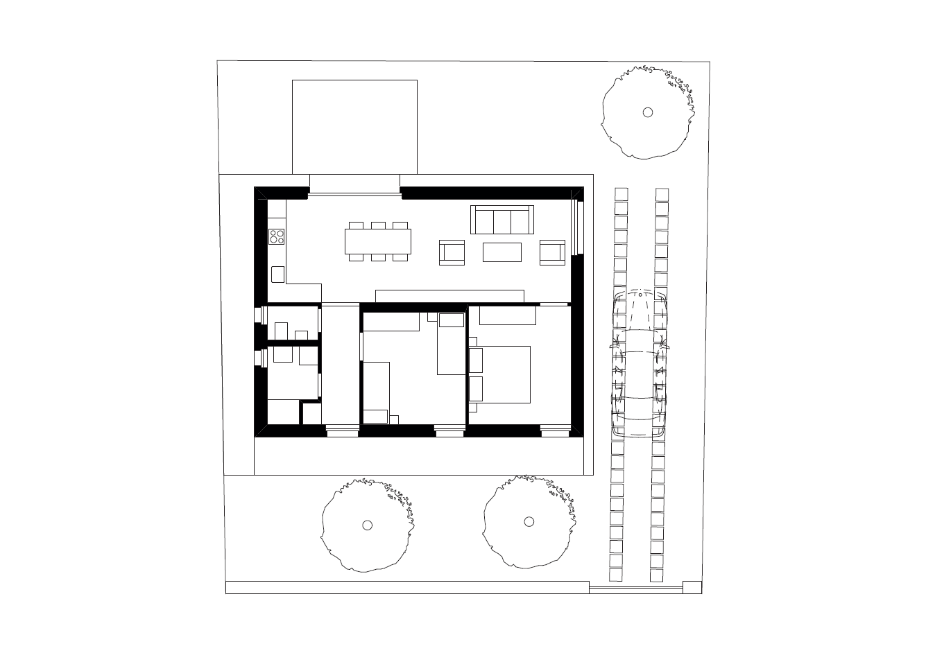
A telek a környék jellegzetességeinek megfelelően nagyon kicsi. Az építészeti programot segítette az a körülmény, hogy a megrendelők nem akartak sem garázst, sem többszintes házat. A ház utcai oldala délnyugati fekvésű, vagyis indokolt volt a tető túlnyúlása, ami nem pusztán védi a főhomlokzatot a nyári napsütéstől, de erős karaktert biztosít a nagyon kis hajlásszögű tető domináns megjelenésének is. Ugyancsak jól élhetővé teszi a nyaralót, hogy a terasz a védettebb, belső részre esik, északkeleti fekvésű, vagyis nyáron hűvösebb lehet.

Ehhez a nyári használathoz megfelelő módon dominál a homlokzati fehér szín, illetve a napsütötte oldalon szűkebbre húzott ablaknyílások méretezése. Szép és ugyanakkor lírai gesztus, hogy a helyi építészeti hagyomány megidézésének eszközeként a telek utcai oldalán vörös balatoni kőből épített, alacsony kerítés húzódik. Ezt a követ lábazatként, homlokzati burkolatként itt a déli parton is előszeretettel alkalmazták akár a háború előtti időszakban is.
A belső tér példásan visszafogottan, a műfaj előképeinek ismeretében épült meg. Két hálószobával, nappali-étkező-konyhával és fürdőszobával rendelkezik a nyaraló, az alapterülete összesen 67 m2. A belső terekben alapszínek dominálnak, amelyek a ház modern hangulatát erősítik: a konyhában a fali csempe, a fürdőszobákban és a bejáratnál a padlólap szürkéskék, a fa ablakkeretek vörösesbarnák, a kőrisparketta sárgás világosbarna.
Egyszerű képletet – racionális, szerethető, funkcionális, takarékosan fenntartható, stílusában, műfajában a lehető legtisztább balatoni építészetet láthatunk itt. Az archetípus előtt tisztelgő, a túlzásoktól, öncélúságtól mentes valódi balatoni nyaralót.
Tervezés éve: 2021
Építés éve: 2022 – 2023
Bruttó szintterület (külső falakkal) : 84 m2
Nettó hasznos terület: 67 m2
Vezető építész tervező: Balog Ádám
Építész munkatárs: Miklós Zsófia
További képek a cikk végén található galériában!
Ha tetszett a cikk, és szeretnél előfizetni magazinunkra, itt teheted meg.


