A pályamű megosztott 2. helyezésben részesült.
“Egyedül didereg napfényországban”.
Prológus
Sokan Csontváryt tartják a legnagyobb magyar festőnek.
Nem technikai tudása, vagy a festőművészet fejlődésében betöltött szerepe miatt gondolják ezt róla, hanem sajátos spirituális üzenet-közvetítőként gondolnak rá, aki egész életművével és annak bizonyos kiemelkedő darabjaival különösen a jövő generációinak üzent valami fontosat az emberről és a nemzetről mint kozmikus beágyazottságú lényről. Akik ezt tagadják, azok is elismerik nagyságát és különös mivoltát, de inkább a modern pszihológia segítségével próbálják heroikus, magányos alkotói lényét, és ezen keresztül életművét értelmezni. A kérdés nagyon megosztó, de az vitán felül áll, hogy Csontváry a magyar kultúra ihletett, kiemelkedő, nemzetközileg is jelentős és nagyon különös alkotója, akit méltán megillet egy megfelelő, az életmű megismerését, további kutatását és átélését biztosító múzeum állítása.
Alapvetés - helyszínválasztás
Budapest, Pécs, vagy valami más legyen a helyszíne a Csontváry-múzeumnak?
Érvek tucatjai szólnak Pécs és Budapest mellett is, melyek nyilvánvalóan ellentétesek. Mi azt a kérdést tettük fel, hogy mi a legfőbb üzenet és azt milyen lokáció szolgálja a legjobban? Véleményünk szerint Csontváry unikális, ezért el kell kerülni azt, hogy múzeuma egy (ha mégoly csinos is) legyen a múzeumok és képtárak sorában. Olyan hely kell, ami legendává tud válni, ahova minden Kárpát-medencei kultúrembernek el kell zarándokolnia, hogy megismerje és megértse az alkotó üzenetét. Csontváry üzenetének megértése, melyet egy életen át szenvedélyesen kutatott, fogalmazott… ez a legfőbb célja a múzeum létrehozásának és a lokációnak is ezt a célt kell szolgálnia! Ehhez drámai környezet kell, mely segíti azt a lelkiállapotot, melyben a megértéshez közelebb kerülhet a látogató. A fővárosba telepítés kézenfekvő megoldása helyett, Pécs peremvidékén a valamikori szénbányászat kráterében, és a keletkezett bányató mellett találtuk meg azt a drámai környeztet, ami alkalmas a múzeum befogadására. A természeti és emberi erők ezen a helyszínen hatalmas erővel mutatkoznak meg, ezzel alkalmas helyszínt biztosítanak Csontváry üzenete számára!

A helyszínről részletesebben
A történelem úgy alakult, hogy a művész munkásságát bemutató múzeum Pécsen született meg 1973-ban. Bár a művész a Városligetbe álmodta meg saját múzeumát, a közel fél évszázada Pécsen működő intézmény a város fontos arculati elemévé vált, így az új kiállítóteret továbbra is kötni szeretnénk Pécs városához. A városon belüli, illetve város-közeli elhelyezésnél a periféria területeket vizsgáltuk, rozsdamezős területek között kutattunk két vezérelv mentén:
A jövőbeli kulturális beruházásoknál a városon belüli decentralizálás fontos szempont kell, hogy legyen, hiszen így a látogatók nagyobb részét ismerhetik meg a városnak és ebből a város is profitálhat. Olyan helyszínt kerestünk, melynek rekreációs stratégiájába integrálható lenne az új kiállítótér, mint karakteres kulturális mag.
A másik vezérelv a művész sajátos életútjához kapcsolható, nevezetesen az utazás és a természethez való szoros kötődés. A ”múzeum-pláza” stratégiával szemben, egy olyan helyszínt kerestünk, mely valós zarándokhellyé válhat, akár szimbolikusan is. A zarándokhelyként való felfogást a művész látszólag békés világában feszülő drámai és mélyen emberi feszültségek diktálják, olyan hely kell, ahol az átélés és megértés lelki és szellemi értelemben létre tud jönni, ezt pedig jól segíti a megszokott, hétköznapi környezetből való kiszakadás.

Ezen szempontoknak megfelelő helyszín az egykori Pécsbánya külfejtője. A terület egy nagy rekreációs fejlesztés előtt áll, a város peremén helyezkedik el és a bányagödör látványa a tengerszemmel kellően drámai és Csontváry utazásait, különleges személyiségét méltón reprezentáló, emblematikus helyszínt kínál.
Megközelíthetőség
A helyszín Pécs közvetlen közelében található a belvárosból40-50 perces sétával megközelíthető, gyalogos túraútvonalak is vannak a közelben, de kerékpárral, busszal, és autóval is könnyedén megközelíthető. Az autópálya közelsége miatt a távolabbról érkezők is könnyen elérhetik, de a képek szállítása sem jelent gondot azok kölcsönadása, illetve más művek kölcsönvétele esetén. A Pécsett látogató turisták és helyiek is könnyen kizarándokolhatnak a múzeumhoz. A kéktúra vonalába bekapcsolódó úton keresztül egy órás könnyed sétával elérhető Tettye dombjától, emellett biciklivel 15 perc alatt érhető el a belvárosból. A centrumtól induló 27-es és 40-es buszok a Széchenyi-aknánál rakják le 10 tíz perces utazás után utasaikat, ahonnan pár perc alatt lehet eljutni a külszíni fejtéshez. A természet és a város egyaránt közel van, tehát a múzeum meglátogatása után könnyedén lehet a további programokat megszervezni.

Anyaghasználat, atmoszféra
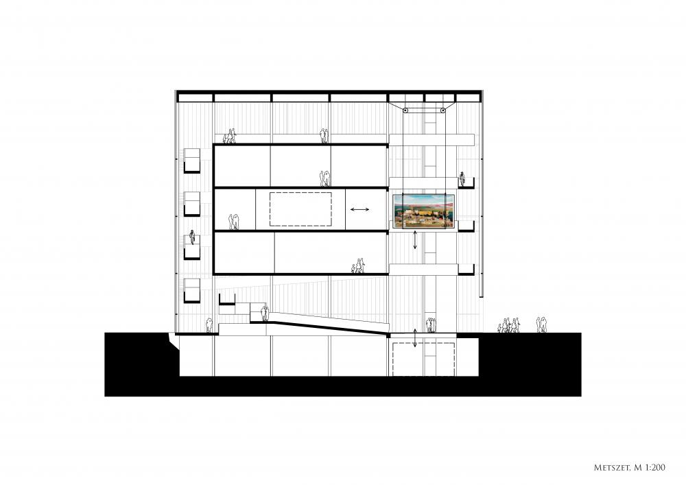
Az atmoszféra egy alapvető ellentétpárra épül: a sötét zárt mag és az ezt körülölelő fényárban úszó közlekedőrendszer. Ez a feszültség a szerkezetben is tetten érhető: a mag vasbeton szerkezetét könnyűszerkezetes acél váz-rendszer veszi körül, egymástól függetlenek. A világos tér, mint közösségi tér működik: beszélgetés, mozgás, objektív információ szolgáltatás tere, a belső kiállítóterekben a csend, a műalkotások és a szubjektív véleményformálás dominál, ezek az elmélyülés terei. Az anyaghasználatnak fontos üzenete, hogy a bányagödör kialakulására utaló, az ipari építészetre jellemző anyagok kerülnek előtérbe, kívülről befele haladva: egybefüggő ”opál-kopolit” felület, filigrán acélszerkezet és monolit vasbeton szerkezet.
Terek - térarányok
“Ezen az úton eljutunk Baalbek naptemplomához, a világ legnagyobb kőoltárához. Az óriási kövek közül egyik az áldozókőnek volt fenntartva, ötszáz köbméter a tartalma. Ilyen nagy kövekből készült a naptemplom oltára, mely Libanonnal szemben támaszkodik az Antilibanonra. E kövek egyenkint 21 méter hosszú, 5 méter magas, 7 1/2 méter széles tömbökből állanak, a templom északi oldala 90 méter hosszú, kilenc kőből van faragva…”
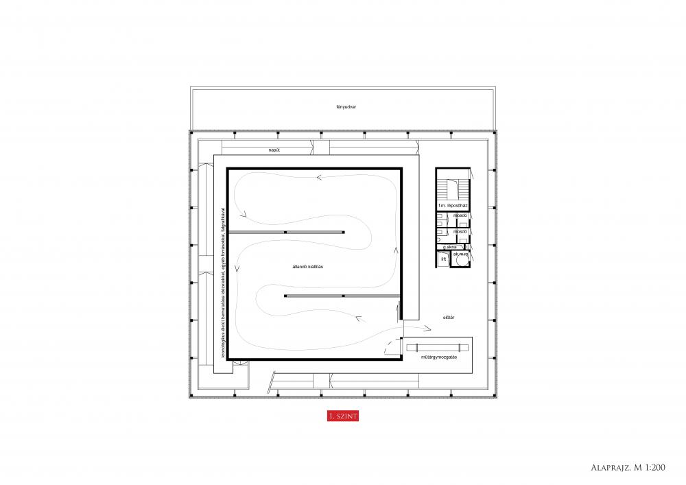
A naptemplom (mint ”Nagy motívum”) monumentális építőelemeinek méreteit használtuk, a kiállítótereket befogadó mag szerkesztésénél. Kilenc darab, 21 x 7,5 x 5 méteres tér együttese fogadja be a Csontváry életművet. A kilenc térrész három egymásba kapcsolódó részből álló három szintbe szerveződő zárt, mesterséges megvilágítással és szellőzéssel ellátott mag. Egyfajta “kincsesláda”, vagy szív-építmény, ami rejti-őrzi a felbecsülhetetlen értékű életművet.
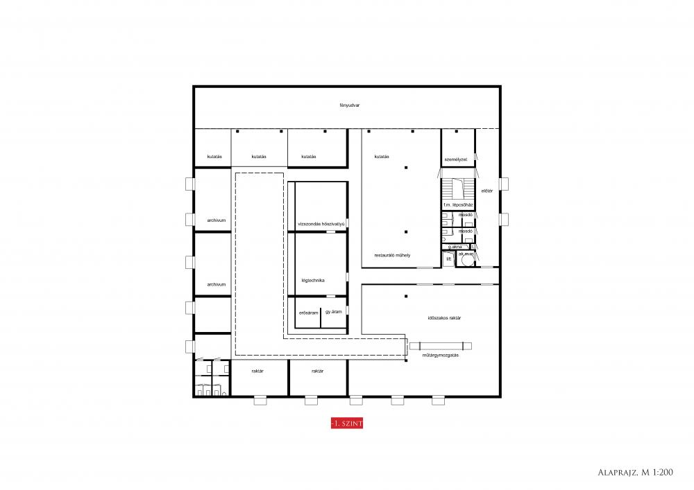
Az épület alapvetően két részből áll: a - fent leírt - lebegő zárt mag, mely a műalkotásokat rejti magában és az ezt körül ölelő rámparendszer, mely ”Napútként” működik. Egyik oldalán a környezet szűrt fényei jelennek meg az opál üvegfelületen keresztül, másik oldalán a mag külsején helyet kapó installációból ismerhetjük meg a művész életútját, művészi hitvallását, fontosabb archív dokumentációkat. A belső doboz tetején változó kiállítások, akciók helyezhetőek el, a földszinten pedig a megérkezés és a rekreáció terei találhatóak. Az angolaknával és födémáttörésekkel szervezett alagsorban kapnak helyet a restaurátor műhelyek, az irodák, raktárak, kutatási terek, valamint a gépészeti terek.

Kiállítótér működése, anyaghasználat, atmoszféra
Az atmoszféra egy alapvető ellentétpárra épül: a sötét zárt kiállító-mag és az ezt körülölelő fényárban úszó kiállító-közlekedőrendszer. A zárt mag belül semleges-fehér, kívül narancsvörös színű. Mint a kincseket rejtő láda, vagy a szeretetet hordozó szív metaforája, a lélek lakóhelye. A közlekedő szűrt természetes fényben úszik (Napút).
Ez a feszültség a szerkezetben is tetten érhető: a mag vasbeton szerkezetét könnyűszerkezetes acél rámparendszer veszi körül, egymástól függetlenek. A világos tér, mint közösségi tér működik: beszélgetés, mozgás, objektív információ szolgáltatás tere, a belső kiállítóterekben a csend, a műalkotások és a szubjektív véleményformálás dominál, ezek az elmélyülés terei.
Az anyaghasználatnak fontos üzenete, hogy a bányagödör kialakulására utaló, az ipari építészetre jellemző anyagok kerülnek előtérbe, kívülről befele haladva: egybefüggő ”opál-üveg” felület, filigrán acélszerkezet és monolit vasbeton szerkezet.
Technikai működés
Minden tekintetben a legkorszerűbb gépészeti és világítási megoldásokkal operáló épületet képzeltünk el, tartós anyagokból, fenntartható működési modell alapján.

Epilógus - a kiállítótér üzenete
Csontváry fanatikus elhivatottsága, küldetéstudata és szervezett céltudatossága, természettudományokhoz való kötődése tetten érhető munkásságán. A rengeteg utazás, a “Nagy motívum” kutatása, mint isteni erővel megáldott “Napút” festő áldozatokkal teli életutat eredményezet. “Egyedül didereg napfényországban”.
A kőbánya, mint tájseb már önmagában megrendítő látványt nyújt: Zöld tengerszem, melyet 70 méter magas falak vesznek körül egy magányos, külön világ az erdővel borított Mecsek oldalában. Sajátos, távolról szemlélve nehezen értelmezhető, karakteres képződmény. Csontváry munkásságát nehéz a nemzetközi szférában kategorizálni: ellentmondásokkal teli, szokatlan, mégis drámai erejű, harmonikus alkotások. A kiállítótér szigorú, fegyelmezett, de világos-ragyogó tömege a katlan legmagasabb teraszán helyezkedik el, a tengerszem fölött “lebeg”, mint egy különleges természeti képződmény. Az épület és kontextusa vizuálisan magában hordozza azt a feszültséget, mely az alkotások mögött áll. A drámai környezetben álló fehéres fényű opálüvegen átdereng a narancsvörös “szív”, színe oly jellemző a legszebb képein…
Talán a bánya, mint tájseb lassú gyógyulása Csontváry üzenetének megértését is szimbolizálja majd a jövő generációi számára…
Vezető tervező: Kovács Csaba, Máté Tamás, Vass-Eysen Áron
Építész munkatárs: Gerse Dániel
www.nartarchitects.hu
Ha tetszett a cikk, és szeretnél előfizetni magazinunkra, itt teheted meg.


