Erről szóló cikkünk a 137-es, 2017/5-ös lapszámunkból közöljük.
Hála olyan elkötelezett fiatal kutatóknak, mint Wettstein Domonkos, illetve a Lechner Tudásközpont munkatársai, egyre több tudományos igényű publikáció jelenik meg a Balaton 20. századi építészetéről. Külön üdvözlendő, hogy ezek között szép számmal akad olyan, ami a nyaralótervezésre, ezen belül is a déli part nyaralóira fókuszál. Délen ugyanis a valódi értékek nem látványosak, elvesznek a középszerűség, ócskaság tömegében. Délen a jó építészet, fokozott kisugárzással bír.

Szemben az északi parti kisrégiók mikroidentitásaihoz, délen sokkal vegyesebb, gyakran gyökértelen üdülőövezetek alakultak ki évtizedek alatt és alakulnak át az elmúlt években. Felületes szemlélő számára ezek az övezetek végzetesen elegyesek, máig elenyészőnek tűnik azon épületek száma, amik viszonyítási alapot adhatnak a legfrissebb tervezői törekvések számára. Itt délen a tömegesség maga alá gyűri a minőséget. Már csak ezért is fontos jó példákat bemutatni, illetve odafigyelni a déli partot érintő történeti kutatások eredményeire, mert évtizedes távlatban megtalálható jó pár olyan alkotás, ami kortárs nézőpontból mára veretessé és izgalmassá nemesedett. Elfelejtett tervevezői életpályákat fedeznek újra fel a kutatók, elveszett, lebontott, leromlott villák, nyaralók archív képei váltanak ki egyöntetű lelkesedést a közösségi hálón végigfutva.

Másfelől nem felejthető el az sem, hogy új igények, elvárások fogalmazódnak meg megbízói oldalról. Megváltozott az értékrend, a turizmus igényszintje, a pénz értéke. A következő oldalakon bemutatkozó nyaraló ennek a legfrissebb hullámnak az egyik figyelemere méltó képviselője, ami magas szinten képes reprezentálni az elvárható igények változására adott tisztességes szakmai válaszokat. Emlékeim szerint Tóth László építész és a Tóth Project tervezőiroda munkatársai egy apró fapavilonnal, csodás és okosan szerkesztett kisalföldi tóparti nyaralóval debütált az Octogon 2014/7-es lapszámában.
Az elmúlt három évben az építésztől majd féltucat villát közöltünk, ami jól reprezentálta a stúdió szerkesztési elveinek finomodását, az alkotók termékenységét, stiláris következetességét. Nehezünkre esik kissé a stílus szó használata, de Tóthéknál a zártság és nyitottság, a kubatúra összemetsződéseinek, belső arányainak rendszere mégis képvisel egyfajta védjeggyé váló egyediséget. Ez az építészet hisz a klasszikus modernizmus variáció-, permutáció-elvében. Síkokban, merőlegesekben és a letisztult logikában, tiszta térsorokban hisz.

Példás minimalizmus, sűrítés ez, ami jól alkalmazható szinte a léptéktől, helyszíntől, terepadottságtól függetlenül. Ott jártunkkor az építész legfrissebb projektjeinek látványterveit mutogatja tabletjén, miközben arról beszél, mekkora könnyebbséget jelent nekik tervezői szempontból, hogy aki hozzájuk jön megrendelőként, aki őket keresi, azok pontosan tudják, mire számíthatnak. A referenciák pontos képet adnak arról, hogy ez az iroda miben hisz, milyen értékeket vall.
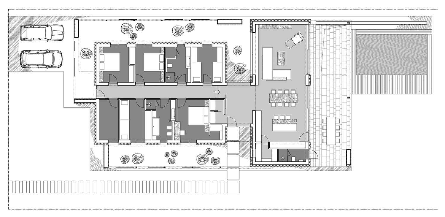
Ez a déli parti, frissen elkészült nyaraló is jól illeszkedik az iroda tervezői értékszemléletébe. Szinte szertartásosan kemény, zárt utcai homlokzat fogadja az érkezőt, hogy végül az oldalkertből egy olyan pontra kerüljön a bejárati ajtó, ami a földszintes épület két fő tömegének kapcsolódási pontjának tekinthető. A kerttel-napozóterasszal-medencével érintkező, nagyszabású, dupla belmagasságú nappali-étkező-konyha tömegére merőleges létre, és ahová sávablakos „felülvilágító” is került. Így a természetes fény nem pusztán a napozóterasz felől, az eltolható üveg függönyfalon keresztül jut a nappaliba, hanem felülről is. Ezek az egymásból kihúzott kubusok időnként eltérő színezést is kapnak: a meghatározóan fehérre vakolt tömegből grafitszürke idom emelkedik ki. Több Tóth Project terven is látható ez a monokróm, kontrasztos színezés, ami képes a különféle síkok, tiszta formák egymáshoz képest létrejövő viszonyait értelmezni, láthatóvá tenni.

Tóth László építész vezetésével az iroda ritka termékeny korszakot él át, aminek kulcsa egyfajta kiérlelt vízió, összeszedett szerkesztési metódus, racionalitás és letisztult kompozíciós elv. Ez az út még igen hosszú lehet, részünkről várjuk következő állomást.
Építészet: Tóth László Papp László, Schalling Frigyes, Németh László (Tóth Project Építésziroda)
Belsőépítészet: Gaál Gergely
Statika: Pukler Antal
További képek a cikk végén található galériában!
Ha tetszett a cikk, és szeretnél előfizetni magazinunkra, itt teheted meg.



