Cikkünk a 203-as, 2025/7-es lapszámunkból közöljük.
Egy irodaház lokációjában hatalmas előny, ha olyan zöldfelület található a közelben, amely az ott dolgozók számára rekreációs lehetőséget tud biztosítani. Budapesti kontextusban minden bizonnyal a Városliget teremti a legkomplexebb lehetőségegyüttest, méreténél és adottságainál fogva. A Liget közelében elhelyezkedő Liget Center Vitrum hatalmas előnnyel indul tehát már ebből a szempontból is az irodaterek piacán.
A Dózsa György út építészeti szempontból is több csemegét tartogat a 20. századi építészet történetéből. Itt található többek között az egykori MÉMOSZ-székház, amely a modern építészet egyik legikonikusabb épülete a fővárosban. [Erről lásd részletesen: Ki van a főszerepben? – Gondolatok az elkészült Liget Centerről, OCTOGON 195., 2024/4. – a szerk.] De ennek szomszédságában találjuk meg a 2000-es években megvalósult Erick van Egeraat-irodaházat is, amelynek létrejötte a székházzal karöltve történt, történetük tehát összefűződött.

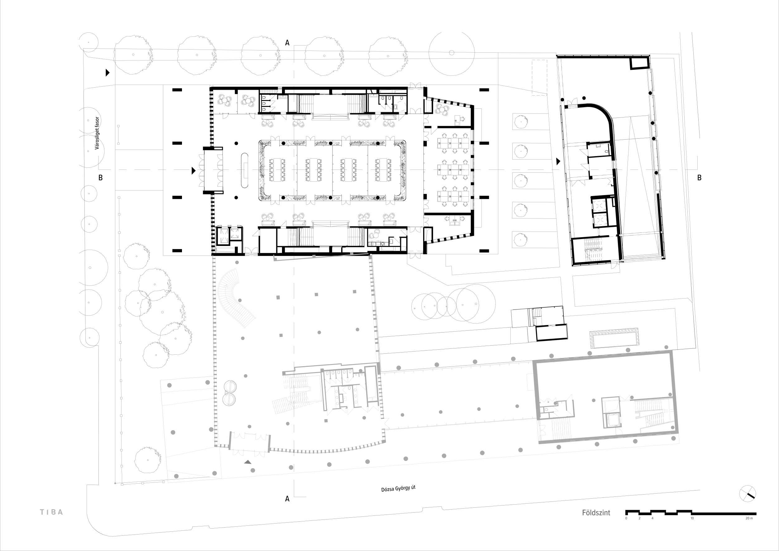
Örvendetes, hogy a folyamat itt nem állt meg, noha több évtizedet kellett várni arra, hogy a telek hátsó traktusa olyan tömeggel gazdagodjon, amely érzékeny módon reagál erre az ikonikus városszövetre. A projekt tervezői (TIBA Építész Stúdió –Király Zoltán, Bozsik Zoltán) ráadásul az 1998-as és a 2024-es felújításnak is részesei voltak, ebből fakadóan szemléletükben, látásmódjukban is a folytonosságra tudtak törekedni. Ennek nyomán került átadásra 2025-ben a Liget Center Vitrum, amely egy elkülönülő épületszárnyként egyszerre fűzi össze az egykori MÉMOSZ-székházat és a Park Átrium irodaházat.
Az építészeti koncepció megalkotása minden bizonnyal igen sok fejtörést okozhatott a tervezőknek, hiszen két olyan ikonikus épület közé kellett tömeget tervezni, amelyek nem csupán markánsan eltérő karaktert képviselnek, hanem egyúttal a modern és kortárs építészetnek is tagadhatatlan (bár olykor vitatott) gyöngyszemei. Karakterük ráadásul a Dózsa György út ezen részére határozottan rányomja bélyegét, még azzal együtt is, hogy a Néprajzi Múzeum létrejötte markáns gesztusként jelent meg az út másik oldalán.

Hogyan lehetséges e két építészeti nyelv között átmenetet képezni? Egyáltalán szükséges-e ezt a kapcsolatot az építészet szintjén még szorosabbra fűzni egy új tömeg homlokzati karakterével? A tervezői visszajelzések szerint ezen kérdések valóban megfogalmazódtak a tervek kialakítása során. Mivel a beépítés nincs közvetlen kapcsolatban az utcafronttal, hanem a telek hátsó részében húzódik meg, így az onnan történő betekintés is korlátozott mértékben lehetséges csupán.
Dicséretre méltó és jól tükrözi a városszövet iránti alázatos magatartást, hogy ezt az utcafronti betekintést az épület kialakításakor csupán egészen finom, jelzésértékű módon valósították meg a tervezők, nem törekedtek semmiféle hivalkodásra. A beépítésnek vitathatatlan előnye, hogy a közvetlen utcafronti kapcsolat hiánya miatt az igen forgalmas Dózsa György út zaja jóval kevésbé éri ezt az épületet, ebből fakadóan is nyugodtabb atmoszférát kínál.

A butikiroda tömegformálását a kubusosság határozza meg, amely a telekhez mért arányaival nem válik dominánssá, hanem illeszkedik a környező épületek méreteihez. Noha az épület a telek hátsó részén helyezkedik el, úgy lett megkomponálva, hogy ne legyen teljes fedésben sem a Dózsa György út, sem pedig a Városligeti fasor irányából. Mindkét oldalról betekintve felsejlik az épület homlokzati karaktere, ezáltal egyfajta tolakodásmentes felmutatása történik meg a struktúrának.
Mindezen gesztus nem csupán a tömeg elhelyezésére, hanem a homlokzatformálásra is érvényes. Az egybefüggő, háromrétegű üvegfelület éteri karaktert hoz létre, amelyet az azon elhelyezett geometrikus minta tesz izgalmassá. A háromszög alak különféle, változó mintázatokba történő rendezése egyszerre hoz létre egységes karaktert, és ugyanakkor a figyelmes szemlélő számára finom játékosságot is teremt. A geometrikusság a környező épületeknek is sajátossága különböző formában, ezáltal az épített környezetre történő reflexió is megfigyelhető.

Az irodaházat nem jellemzik hatalmas méretek az alapterület kontextusában, ezáltal olyan munkakörnyezetek jöhetnek létre, amelyeket az átláthatóság és emberi lépték jellemez. A kialakított mintairoda tere jól érzékelteti azon lehetőségeket, amelyek megvalósíthatóak a jövőbeli bérlő igényeinek függvényében. Az egyes szintek belső tereinek megtervezésekor a tervezők szem előtt tartották, hogy a nyitott irodatér mellett megvalósíthatóak legyenek olyan elkülönülő helyiségek, amelyek tárgyalóként vagy akár vezetői irodaként is működőképesek.
A félig áttetsző homlokzat kettős funkciót tölt be. Egyrészt megteremti az intimitást a belső, napfényes terekben, hiszen megakadályozza a belátást a környező épületekből, ugyanakkor a belső terek kilátását nem korlátozza. Az épület tömegének elhelyezése nyomán mind a környező közvetlen
zöldfelületek, mind pedig a Városliget láthatóvá válik, így a természettel történő kapcsolat vizuálisan hozzáférhető lesz. Emellett fontos hangsúlyozni a rekreációs lehetőségeket is, hiszen néhány perc sétával ténylegesen elérhető a Városliget, annak minden kulturális és szabadidős adottságaival, lehetőségeivel. A napi munka végeztével múzeumok sokasága érhető el, futópálya, kültéri fitnesz-gépek, játszóterek, kávézók – ezek gyakorlatilag mindenki számára kiváló alkalmat teremtenek a kikapcsolódáshoz, beszélgetésekhez, sportoláshoz. Az irodaház alatt többszintes parkoló is megtalálható, amely a közlekedés szempontjából is remek adottságokat teremt.

A Liget Center Vitrum rendkívül jó építészeti koncepciót valósított meg. Részint ikonikus épített környezetbe helyezett egy olyan irodaépületet, amely érzékenyen és alázatosan reflektál ezen épített kontextusra oly módon, hogy önállóan is képes identikus maradni. A kiváló lokációja további előnyt jelent, a környező nagyarányú zöldfelületek lehetőséget adnak a pihenéshez, kikapcsolódáshoz. A napfényes belső terek, a nagy belmagasság humánus munkakörnyezetek kialakítását teszik lehetővé, a jövőbeli bérlő(k) pedig saját igényeikre, arculatukra szabhatják az enteriőröket.
Tervezés: 2019 – 2022
Építés: 2022 – 2024
Bruttó terület: 2820 m2
Generáltervező: TIBA Építész Stúdió Kft.
Vezető tervezők: Király Zoltán, Bozsik Zoltán
Építész munkatársak: Asztalos Gergő, Csányi Zita, Darida Mónika, Miljanovits Kíra, Jobbágy Ágnes, Szenes Georgina
Projektmenedzsment: Somlyódi Sándor (Tomlin Kft.)
Belsőépítészet: Shell & Core terület: TIBA Építész Stúdió Kft.
Tartószerkezet: Markovits Péter, Balázs Gábor (M.T.M. Markovits Tanácsadó Mérnökiroda Kft.)
Tájépítészet: Balogh Péter István PhD, Major József, Bálint Krisztina (s73 Tervező Iroda)
Generálkivitelezés: Havas Dávid, Friedrich Zsolt (FIT OUT Zrt.)
Építtető: WING Ingatlanfejlesztő Zrt.
További képek és rajzok a cikk végén található galériában!
Ha tetszett a cikk, és szeretnél előfizetni magazinunkra, itt teheted meg.


