Cikkünk a 205-ös, 2026/1-es lapszámunkból közöljük
Budapest idén tavasszal egy rendkívül magával ragadó turisztikai helyszínt avat, ahol – mint a város története során oly sokszor – a szabadság és a represszió nem csupán szimbolikusan ma is kéz a kézben járnak. Erről a meglehetősen sajnálatos tényről ne nyissunk vitát. Viszont ami a felújítással és az átalakítással megszületett – vagyis a műalkotás – nem uralni, épp ellenkezőleg, szolgálni kívánja a várost. A műemlékben rejlő elképesztő potenciált ez a négy és fél évig tartó munka nemcsak hogy feltárta és kibontotta, de minden kétséget kizárólag be is teljesítette. Ehhez hasonlóan pazar, várostörténeti léptékű helyszínnel nem sok főváros büszkélkedhet. Budapest nagyon nagyot fog menni.
A Citadellaként ismert objektum a börtön szabadsága metaforával volt leírható építése, nagyjából 175 év óta. Ennek a feloldhatatlan feszültségnek vetett véget egy bravúros tervezői ötlet, a lerombolhatatlannak tartott falak átmetszése. Kezdjük a listát a legeredetibb tervezési eszközzel, a megnyitásokkal. Hogyan közvetíthetné mostantól a főváros földrajzi szempontból egyik legmeghatározóbb pontján álló műalkotás végre az elnyomás helyett a szabadság üzenetét? „Habár sokat töprengtem azon, mi lenne az igazi szabadság-gesztus – idézi fel Taraczky Dániel, az art1st vezető tervezője a munka kezdeti szakaszát –, már a kezdet kezdetén nyilvánvaló volt, hogy ennek az építészeti gesztusnak nagyon egyértelműnek és végtelenül hatásosnak kell lennie. És egyszer csak bevillant a kardcsapás mint szimbólum. Ez adta az ötletet az erődfal keleti és észak-déli átmetszéséhez, hiszen egy minden irányba nyitott, átjárható erőd maga a szabadság.”

A bontások helyét mindenütt fehér színű, előregyártott finombeton-kéregpanelekkel takarták el, kivéve a nyugati rondella függőleges lemetszésénél, amelynek teljes főbejárati homlokzatát és tetejét üveggel burkolták be. (Zárójelben előrebocsátva, hogy a számos meghökkentő vizuális élménnyel szolgáló, tematikus, majd 2000 négyzetméternyi országtörténeti kiállítást ide, a nyugati rondella gyűrűirányú körfolyosóinak és sugárirányú kazamatáinak két szintjére tervezte be az art1st csapata. De erről a látványosságról a továbbiakban még sok szót ejtünk.)
Maradjunk még egy kicsit a tervezői alapvetéseknél. Ha ugyanis érdemes valahol a genius loci átléphetetlenségéről értekezni, akkor azt a magyar történelem szempontjából talán a Citadella erődje kapcsán érdemes megtenni. Az erőszak és a hatalom történelmünk során túl gyakran járt kéz a kézben. Az áldozatok emlékét örök mementóként láthatóvá kell tenni, hogy elmesélhessük fiainknak, amiről tilos elfeledkezni. Ebből a meggyőződésből fakadt az a tervezői döntés, hogy mindent, még a pótlásokat, véséseket, bontásokat, de a belövések nyomait is láthatóvá tette. A falak mindennél többet mondanak az építőkről, a használókról – és most már a megújítókról is.

Röviden, a rend kedvéért azért tekintsük át a Gellérthegyen át a várost uraló erőd történetét. A törökök palánkvárat, az osztrákok az aradi vértanúk kivégzését követően egy monumentális erődöt, a szovjetek emlékművet és bunkert emeltek itt. A II. világháborút követően a szabadságot csak egy fegyveres vöröskatona jelenlétében, annak felügyelete mellett volt szabad értelmezni. A robusztus építmény a XIX. század végére hadászati jelentőségét gyakorlatilag elvesztette, így a király 1890. május 18-án kelt legfelsőbb elhatározásával „legkegyelmesebben megengedni méltóztatott, hogy a Gellérthegyi erőd felhagyassék”. A beleölt építőanyag és élőerő mennyiségének hatásvadász monumentalitása nyűgözte és nyűgözi le a látogatót mind a mai napig – illetve holnaptól az a páratlan élmény, ahogy a tökéletes körpanoráma nyomán szó szerint a lábunk előtt hever a város.
A Taraczky Dániel vezette tervezőcsapat koncepciója a terek fel- és kiszabadítására épít. Egy újabb metafora, mely szerint az elnyomás alól a „szabadság kardjának” csapásai szabadítanak fel. A zsarnok – vagyis a nyugati rondella, a tulajdonképpeni erőd – „fejét” elválasztjuk a „testétől”, azaz az erődfalon belüli területtől és a Szabadság-szobor, a keleti bástya környezetétől. Az erődfalak átvágásával épült új és felette látványos átjárók megnyitják az erődrendszer eddig zárt világát – és a hegy két oldala összekapcsolódik.

Mit tárunk föl, minek nyitunk ajtókat, amikor egy ilyen dedikáltan kényes hermeneutikával bíró helyen kívánunk egy, a panoptikum és a költészet határmezsgyéjén egyensúlyozó történeti kiállítást létrehozni? Az erődfalak megnyitása, átvágása egyértelmű üzenet, ám egy mindannyiunk történetének, mítoszának elbeszélése egészen más ügy.
Nemzetek vagy akár civilizációk is igyekeznek több-kevesebb sikerrel olyan mítoszokat, történeteket gyártani, amelyek ingadozó erejű kötőanyagként tartják össze a kisebb-nagyobb közösségeket. Ebben még ma is a vallások járnak elől, de azért ne feledkezzünk meg a racionalitást alapul vevő kezdeményezésekről sem, mint például a felvilágosodás, esetleg a meggyőződés a tudomány egyetemességéről vagy a demokrácia, noch dazu! a joguralom sérthetetlenségének biztosítása a mindenkori hatalom részéről, és persze ez a sor még folytatható lenne.

Itt és most azonban egy ország tudós fői igyekeztek a páratlan látványért a hegyre feltalpaló turisták seregeinek valamiféle vázlatos képet adni Magyarország lakóinak történtéről. Az állandó kiállítás koncepciójának forgató- és szövegkönyvét tudomásunk szerint számos válogatott szakember állította össze, így magyarként arra az információra már fel se kapjuk a fejünket, hogy a tematika számos változat átdolgozása után vált csak véglegessé. Ez persze a téma és az eltérő értelmezések, illetve a kiállítás jellege miatt nem meglepő. A rohanótól (cca. 45 perc) a mindent megismerni akaró (max. 200 perc) turisták igényeire kalibrált kiállítás óhatatlanul is viselni fogja a felületesség billogát, de ez adottságként könyvelendő el.
A manapság nem véletlenül oly nagy népszerűségnek örvendő, ún. élménytér-koncepciójú kiállításokat a tömegturizmus segíti világra és hizlalja fáradhatatlanul. „A Szabadság Bástyája” névre keresztelt kiállítás kiindulópontja a krónikás énekek hagyományának újrafelfedezése: Emese álma Arany János hőseposzából. A mű születése időpontjának (1861) és körülményeinek a mával való összevetése számos meghökkentő értelmezést tenne lehetővé – de ezeknek szétszálazását tudós főkre bízzuk. Mi maradunk a szemelvényeknél.

A történeti élménytér üzenete: „Magyarország európai, keresztény, ezeréves ország. Békeszerető nép vagyunk, de harcra készek – ha a szabadságunkat támadják. Történelmi küldetésünk, hogy külső és belső ellenségtől egyaránt megvédjük Európát. Magyarország polgári, demokratikus, antikommunista, szabad ország, a szabadságharcosok országa.” Emese ősanya narrációjában járjuk végig a 26 tematikus egységre bontott kiállítást: „A magyar történelmet Emese szüli meg és meséli el annak tizenhárom évszázadát saját álmaként.”
Az első teremben, a kiállítás belépési pontján ezt halljuk: „Üdvöz légy, vándor, és vesd össze éveid számát egymillióval. Mert a hegy, ahol most állsz, bizony egymillió éves. Nagy idők nagy tanúja. A magyarság szent hegye, a nemzet szíve, a szabad Magyarország grandiózus szimbóluma. Szimbólum ez a hegy, mert aki uralja, az az egész országot uralja. Ezer évvel ezelőtt a népem kápolnát állított a hegy tetejére. A török szultán dzsámit. A Habsburg császár erődítményt. A szovjet diktátor szobrot a saját dicsőségére. A hódító birodalmak így akarták – jelképesen is – uralmuk alá hajtani országunkat. De nem hagytuk magunkat. Harcba szálltunk a magyar szabadságért. Újra és újra. Ez a kiállítás azt meséli el, hogyan dacoltunk a megsemmisítésünkre törő birodalmakkal, és váltunk a túlélés európai bajnokaivá.”

A kivételes gazdagságú és őszintén roppant változatos vizuális élményt nyújtó látványtár óriás ledfalait, a Budapest köztereiről ismert szobrok 1:1-es gipszmásolatait vagy az egészen meghökkentő installációkat szemlélve emlékeink között elsőként a vidámparki szellemvasutas utazás hangulata rémlik fel, ahol a boltívek között kanyargó kocsikból elénk táruló diaporámákon hüledeztünk, azzal a lényeges különbséggel, hogy itt akármikor megállhatunk, hogy közelről is elgyönyörködjünk a képekben és a tárgyakban.
Nyilván sokakat érdekel, mivel búcsúzik a látogatótól Emese ősanya, úgyhogy ne csigázzuk tovább őket, íme: „Amikor az álmot láttam a megígért földről, nem láttam a tengernyi szenvedést és küzdelmet, ami ránk várt. De ha előre látom... akkor is azt mondom a fiamnak, hogy vágjon bele, vigye végig, mert negyven nemzedék múlva is itt leszünk, ezeregyszáz év eltelik, és megmaradunk... a hun Attila örökösei, Szent István örökösei, magyarok egy magyar államban, a Kárpát-medencében. Visszavesszük ősi helyeinket, visszájára fordítjuk az idegen jelképeket. Így lesz a felszabadulási emlékműből Szabadság-szobor. Így lesz a Habsburg Citadellából a szabadságunk bástyája. Most búcsúzom, vándor. Ég áldjon utadon. És sose feledkezz meg azokról, akik életüket adták érted. Azért, hogy te most itt lehess egy független, szabad Magyarországon.”

A summázatot a rondella néhol hatméteres vastagságú falai közül, a sötétből a „fényárban úszó aulába” lépve, az üveghídon átkelve hallgathatjuk meg. Ez a tematikus szoba „A lét elviselhetetlen könnyűsége, a »csodaév«, 1989” nevet viseli, ahol a Nagy Imre-temetés kulisszái között többek között archív felvételről követhetünk egy ma már sorsfordítónak beállított beszédet Kodály Zoltán Marosszéki táncainak zenei aláfestésével. A rondella immár zárt és fedett udvarának középpontjába helyezett örökláng a közös emlékezet szimbóluma, amihez a vegyes nációjú látogatók is hozzátehetik a magukkal hozott emlékeiket.
És néhány gyakorlati információ zárásként. A nyugati rondella kiállítási terei, valamint a 360 fokos kilátást nyújtó tetőkert belépőjegy ellenében látogatható. Az erőd megnyitott falai között kelet, azaz a Szabadság-szobor felé haladva szeles időben az ország legmagasabb zászlórúdján a legnagyobb felületű nemzeti lobogó vonhatja magára a látogatók figyelmét. A restaurált, megerősített erődfalak és gyilokjárók közötti új park Budapest egyik legexkluzívabb, szabadon, akadálymentesen is látogatható közterülete lett, hiszen pozíciójánál fogva minden négyzetméterét selfie-pontként lehet használni. Az erőd és a park napközben szabadon látogatható. Befejezésül pedig egy meglepő adat: a koronavírus-járvány előtti időszakban a Citadella és a Halászbástya látogatóinak száma közel azonos volt. Ebben a jelképes turistamágnes-versenyben várhatóan a megújult Citadella most előnyre tesz szert a becsült napi húszezres létszámmal.
Tervezés: 2021 – 2023
Kivitelezés: 2021 – 2026
Tervezési terület: 34 210 m2
Generáltervező: art1st design studio Kft.
Vezető építész tervező, belsőépítész: Taraczky Dániel
Projektvezető építész: Kurusa Gergely
Stúdióvezető építész, BIM menedzser: Szabadi Gergely
Vezető építész-látványtervező: Kovács Bence
Műszaki tervkoordinátor: Almási Krisztián
Építész tervező munkatársak: Sulyok Andor, Horváth Erzsébet, Soós-Marxreiter Adrienn, Kardos Anita, Sulyok-Magosi Edina, Kosztolnik Gábor, Kertész-Marsal Kata, Hajdú Lili, Nagy Írisz, Papp Róbert, Mangel-Hóbor Eszter, Szánthó Benedek, Ötvös Krisztián, Tokai Vivien, Pap Dávid
Történelmi Élménytár:
Forgatókönyv: Köbli Norbert
Szövegkönyvek: Köbli Norbert, Hegedűs Zoltán
Történész kurátor: Fodor Gergely
Történelmi lektorálás: Máthé Áron, Szende László
Vezető tervező: Taraczky Dániel (art1st design studio Kft.)
Stúdióvezető építész: Szabadi Gergely (art1st design studio Kft.)
Látványtervek: Kovács Bence (art1st design studio Kft.)
Főmérnök: Sulyok Andor (art1st design studio Kft.)
Kiállítás tervező munkatársai: Horváth Erzsébet, Soós-Marxreiter Adrienn, Kardos Anita, Sulyok-Magosi Edina, Kosztolnik Gábor, Kertész-Marsal Kata, Hajdú Lili, Nagy Írisz, Papp Róbert, Mangel-Hóbor Eszter, Pap Dávid
Kiállítás grafika és multimédia: Hauser Judit, Gacs Réka, Baumann Enikő, Mits Barbara, Bertalan Balázs, Fazekas Tamás, Menyhárt Zsófia
Kiállítási IT tervezése: Balics József, Koszta Fábián, Bukodi Norbert, Walter Ulrik, Horváth Csaba, Horváth Bálint, Badó Attila, Jovánovics Péter, Namesánszki Dávid Márk, Szabadi Márton
Kivitelezés adminisztráció: Ligeti Gabriella, Szabadi Magdolna
Kiállítás építése (art1st design studio Kft.)
Projektvezető: Schill Bernadett
Felelős műszaki vezető: Sulyok Andor
Művezetők: Szánthó Dániel, Lengyel Zsolt, Csuzz Martin, Zsigmond Zsolt
Zenei szerkesztő: Gőz László
Zeneszerző: Fekete-Kovács Kornél
Audio rendszerek: Steffen Armbruster (Usomo, Berlin)
Múzeumpedagógia: Petri Lukács Ádám
Örökségvédelmi szakértő: Vukoszávlyev Zorán
Kert- és tájépítészet: Herczeg Ágnes, Vincze Attila, Reischl-Vértesi Virág
Üvegszerkezet: Stocker György
Tartószerkezetek: Bükkösi Raymond, Ágoston Dezső
Épületszerkezetek: Dudinszky Orsolya, Kovács Károly Lehel, Polareczki Tamás, Herold Gergő
Épületgépészet: Hargita Kristóf, Simon-Sutyinszki Richárd
Erősáram: Rajkai Ferenc, Horváth Zoltán
Gyengeáram: Borsányi Károly
Tűzvédelem: Kerényi Áron
Konyhatechnológia: Kaszab Piroska
Geotechnika: Dr. Szendefy János
Akadálymentesítés: Pandula András
Vízgépészet: Eördögh Zsolt
Épületakusztika: Fürjes Andor
Örökségvédelmi szakvélemények: Örökségvédelmi értékleltár: Deák Zoltán
Építéstörténeti Tudományos Dokumentáció: Rostás Péter, Rozsnyai József, Szilágyi Edit
Kőhomlokzatok állapotvizsgálata: Dr. Török Ákos, Dr. Rozgonyi-Boissinot Nikoletta, Kis Annamária
Kőrestaurátori szakvélemény: Ludányi Gábor, Szűcs Katalin
Régészet: Fullár Zoltán, Szabó Renáta
Fém- és szobrász-restaurátor: Nagy Melinda, Laczik Csaba
Megbízó: Citadella Vagyonkezelő Nonprofit Kft.
Finta Sándor ügyvezető, szakmai irányítás
Erdősi Richárd projektvezető
Dr. Vida András jogtanácsos
Nagy Andrea gazdasági vezető
Prukner Tira projektkoordinátor
Lukács Gabriella kulturális projektmenedzser
Dr. Kerekes Sugárka Laura jogtanácsos
Generálkivitelező: a ZÁÉV Építőipari Zrt. és a Market Építő Zrt. konzorciuma
ZÁÉV kivitelezői csapat:
Muskovits István, főmérnök
Lévai Imre, főmérnök
Kromer Zoltán, projektvezető
Gyephár Attila, elektromos
projektvezető
Tanárki Tibor, előkészítésvezető
Sóváry Anita, gazdasági vezető
Kányai Tibor, szakági (villamos)
építésvezető
Kovács-Barta Ágnes, építész
előkészítő
Slott Imre, építész előkészítőépítésvezető
Fekete László, építész
előkészítő-építésvezető
Tót László, szakági (gépész)
projektvezető
Tóth Bálint, építésvezető
Mészáros Attila, építésvezető
Vesztergom Tibor, építésvezető
Markal Marcell, projektvezető
Market Építő Zrt. kivitelezői csapat:
Juhász Zoltán, műszaki igazgató
Dr. Lévai András, jogi igazgató
Szeredai Zoltán György, főépítésvezető
Zoltán Éva Berta, senior kivitelezési előkészítő mérnök
Németh Anna, kivitelezési előkészítő mérnök
Magyar Attila, épületgépész projektvezető
Katona Máté Nándor, építésvezető
Móri Tamás, építésvezető
Katona Krisztián, művezető
Bense Zoltán, művezető
Lőrincz Róbert, művezető segéd
Balla Edina, építéshelyi irodavezető
Gedó Bianka, gyakornok
Műszaki lebonyolítás, műszaki ellenőrzés:
Építési és Közlekedési Minisztérium Magasépítésért Felelős Helyettes Államtitkárság
Huszthy Zita, projektvezető
Szendvei Balázs projektvezető
Bobák László Zsolt hírközlési építmények műszaki ellenőr
Katona Gyula elektromos műszaki ellenőr
Kertész Andrea gépész műszaki ellenőr
Nagy Zsigmond János útépítési műszaki ellenőr
Rácz Géza elektromos műszaki ellenőr
Semperger Gábor építész műszaki ellenőr
Székely István építész műszaki ellenőr
Üveges Gábor vízügyi építmények műszaki ellenőr
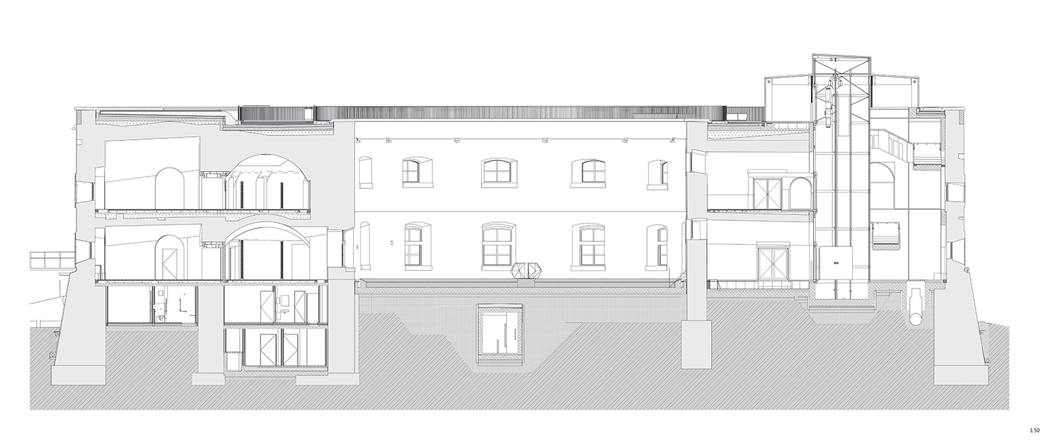
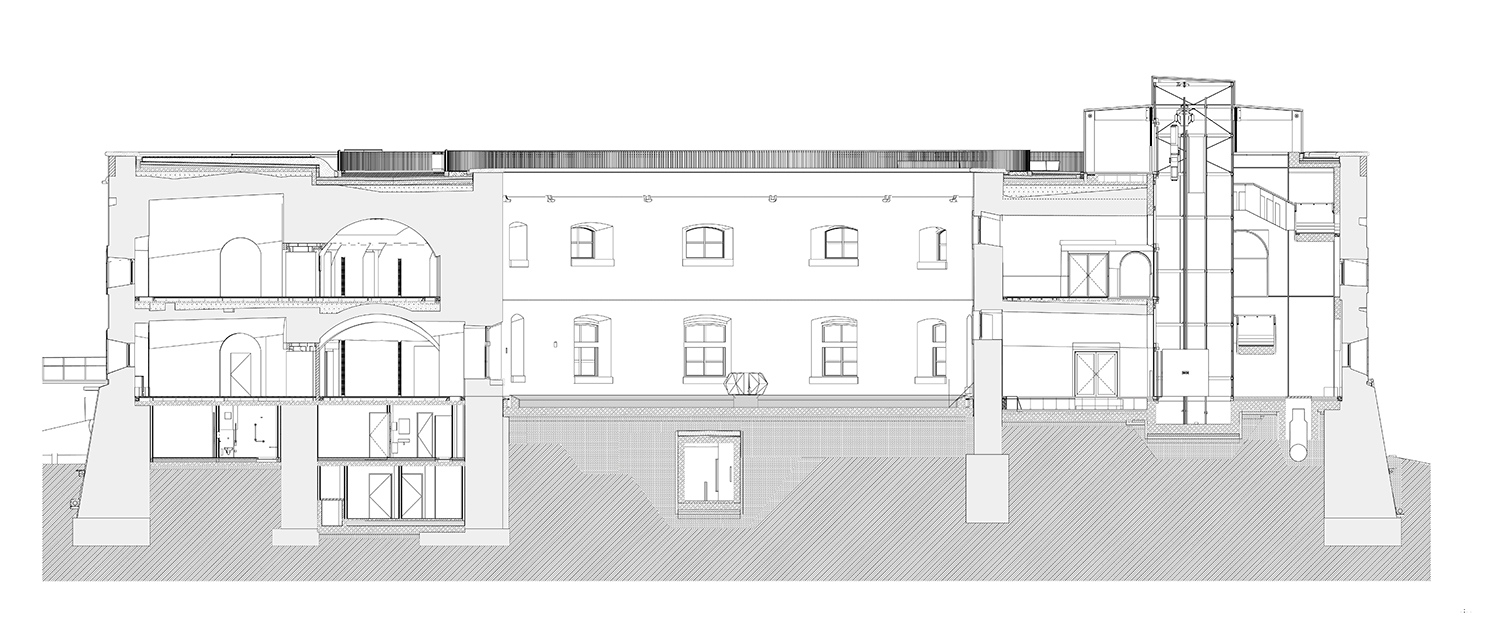
További képek és rajzok a cikk végén található galériában!
Ha tetszett a cikk, és szeretnél előfizetni magazinunkra, itt teheted meg.


