Cikkünk a 114-es, 2014/6-os lapszámunkból közöljük.
Ha létezne az építészek számára rendelt mindenható gyógyító erő, ami valaminő furcsa okból úgy tartaná karban az alkotó lelket, hogy a receptekre tervezői feladatokat ír fel, akkor egy kicsi, vízparti ház mindenkinek járna léleksimító gyógyszerül.
Az elmúlt években a nemzetközi építészeti folyóiratok, magazinok oldalain szép számmal láthattunk példákat parányi, ám tervezői szempontból elképesztően magas minőségben kidolgozott házakból. Ráadásul a micro-house-, a DIY-, vagy mobilház-projektek csak tovább színesítették az összképet. „Kicsit” tervezni és építeni sok tekintetben jutalomjátéknak tűnik, amiben minden egyes részletre kellő mennyiségű figyelem fordítható. Másfelől a kicsiben minden szem előtt van, vagyis mindennek a helyére kell kerülnie, mert szinte egyetlen elhibázott megoldás üvöltő sebet üt a koncepción.

Mióta egy debreceni design konferencián, majd Tillmann J. Attila és Germán Kinga meghívására a Moholy-egyetem TÉRTÁG projektjében előadhattam a Minimum - Vágyak és fétisek, avagy létezik-e ideális méretű tér...? című fejtegetésemet, ami a kicsi tér utáni vágyról, a tériszony és klausztrofóbia építészeti vonatkozásairól, a tér luxusáról, Diogenész hordójáról, a börtönről és Paul Virilio bunker-hasonlatáról, egyszóval a „small is beautiful” (E.F. Schumacher) dialektikájáról szólt, minden felkelti a figyelmemet, ami az építészetben kicsi.
Az idei nyári szezon kétségtelenül legemlékezetesebb fotózásán nem volt rajtam cipő és már délelőtt tizenegykor kinyílt egy sör. Kapuvár közelében, egy felhagyott bányató partján kiépülő nyaralóövezetben a tökéletessel konvergálnak a munkakörülmények. Tóth László helyi építész és munkatársai vízparti nyaralója éppen erre hivatott: a maga egyszerűségével, visszafogottságával, kidolgozottságával és a természeti környezettel való kapcsolatának keresetlenségével lelazít, kisimít, kinyújtóztat.

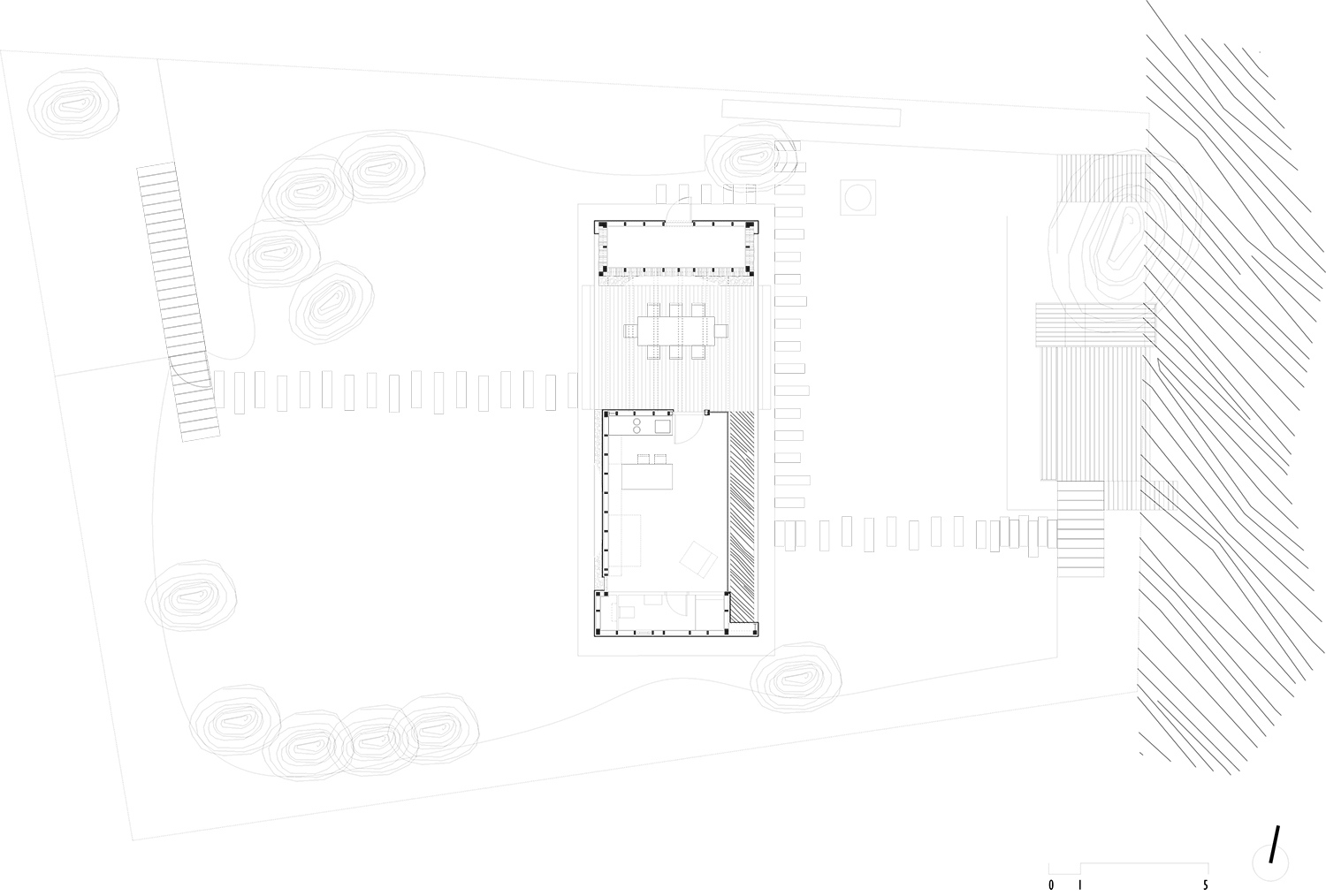
A fémlemezfedésű és a víztükörre tájolt nagy üvegfelületen kívül vörösfenyővel burkolt ház hármas tagolású annyiban, amennyiben a fő tömeg és egy farakássá formált tároló helyiség között egy fedett, átjárható terasz található. Az előkert felé a vízszintes falécezéssel zárt, míg a tó felé felkönnyített nyaraló vízparti kapcsolatát egy ügyesen formált lelépcsőző stég, illetve a szomszéd telek felé finom vizuális határolóként is funkcionáló, a ház tengelyére merőleges leülő teremti meg. Nagyban hozzájárul az összképhez, hogy az épület lábazatánál kavicssáv öleli körbe a házat, ami egyfajta lebegő látványt eredményez.
Nagyszerű erény, hogy a külső megjelenés egyszerűségével az épület belső térének hangulata harmóniában marad. Minden csomópont a helyére kerül, gondolok itt a vászon árnyékoló elegáns textúrájától, a zuhanyzó/WC és a nappali/étkező egységekben megjelenő fa és látszóbeton felületek arányán át a beépített szekrényekig.

Végül még egy gondolat a ház kapcsán. Olyan határsávban járunk, ahol nehéz az épületet nem tárgyként látni. Ez a lépték, ami minden részletében befogható, átlátható, megérthető, ahol a felhasznált kevés számú alkotóelem, a belső arányok rendszere olyan összkép részei, amiben a sikert a kudarctól csak egy hajszál választja el. Jutalomjáték, de hatalmas felelőség is. Ez a nyaraló példásan illusztrálja ezt.
Tervezés éve: 2011
Építés éve: 2012-2013
Alapterület: 30 m2 (+ 20 m2 terasz)
Vezető tervezők: Tóth László, Papp László, Schalling Frigyes (Tóth Project Építésziroda)
Belsőépítész: Bényei István
Statika: Takács János
További képek és rajzok a cikk végén található galériában!
Ha tetszett a cikk, és szeretnél előfizetni magazinunkra, itt teheted meg.


