Szó szerint a múltra építkeztek Szőregen a ház tervezésekor, de belevittek egy érdekes csavart a koncepcióba. Erről szóló írásunkat a 192-es, 2024/4-es lapszámból közöljük.
Végre egy újabb Théque Atelier-ház! A Szeged alsóvárosi munkájuk (OCTOGON, 166., 2021/2) a műfajban és ebben a léptékben több szempontból is az elmúlt évek egyik legfigyelemreméltóbb lakóháza volt. Tömegalakításban megint egy fordulatos munka következik, és a fehér után frappánsan egy jó erős feketével folytathatjuk.
Szőregen járunk. Az Alföldhöz képest ez a terület viszonylag magas és mozgalmas domborzati viszonyokkal rendelkezik. Állítólag az avar telepesek népesítették be a területet, de egy Árpád-kori alapítású monostor is állt valaha a kunok támadásáig itt. A 20. században a gyümölcs- és rózsatermesztésről volt híres e vidék, mára pedig hozzáépült Szegedhez, és annak legrégebbi városrészéről beszélhetünk.

Kalandos, de éppen a fentiek miatt a ház építéstörténete egy féléves régészeti ásatással kellett kezdődjön, és elő is kerültek avar kori leletek a munkálatok alatt. A ház szó szerint a múltra építkezhet hát, amit azzal folytat, hogy nyeregtetős megoldása szintén tradícióból merít, és a környékbeli településképi arculat jellegzetes formáit absztrahálja. Ezt persze már hallottuk jó sokszor – a nyeregetetős archetípussal való játék elég bejáratott dolog, ennek ellenére meglepő, hogy még mindig van olyan útja-módja, amivel meglepnek az építészek, és nem jön ki könyökünkön ez a visszacsatolás.
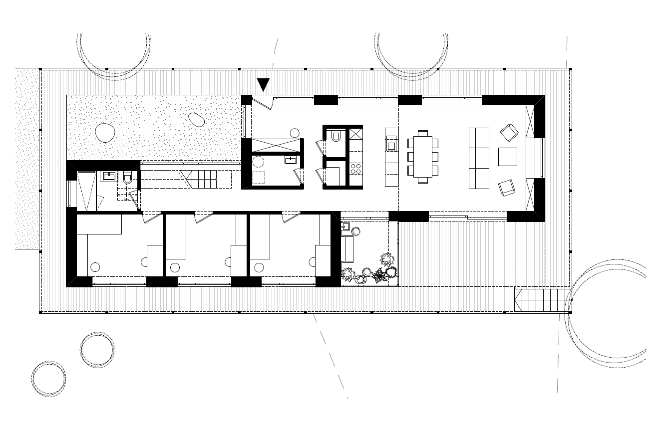
A Théque Atelier új házának tömegkomponálása is ilyen, amiben alkalom nyílik két nyeregtetős iker ritmusára, de nem ez az igazán érdekes a házban. Álmos Gergely és Bubla Ágnes új munkája inkább megint azzal a „kifordítással” játszik, mint amit annak idején a fehér, Szeged alsóvárosi példánál is produkáltak. Ott egy átriumos háznál született meg az a csavar, hogy a belső udvar meglepő módon az utcafrontra került, a főhomlokzat helyére. Megint a tömegjátékban van a furfang, ám most a belső átrium egyrészt az oldalhomlokzatokhoz helyeződött át, másrészt pedig ketté is szakadt.

De hogy is van ez? A tulajdonosok számára a hosszanti telken létrejövő kert nagyon fontos volt, a szobákkal is minél közvetlenebb kapcsolatba akartak kerülni vele. A telek hátuljában növénytermesztésre is van mód, és a kezdeti vízió egy olyan megoldás volt valójában, mely a lejtős viszonyok miatt a kis gazdaság felé tud „repülni”. Ha hangsúlyos konzolszerkezet nem is jött létre, ettől függetlenül a látványos tornác kiváló pódium a „birodalom” belátására. A ház különlegessége, hogy ez a tornác amúgy a teljes házat körbeöleli, azaz a főhomlokzatnál és a két oldalsó homlokzatnál is folyosó vonul végig. Mindez a közelebbre eső szomszéd épület miatt akár az intimitást megbontó lépés is lehetett volna, azonban az egész tömeget megtolták a telek belseje felé, és így a kialakult köztes térrel és a tornácra nyíló nagy nyitásokkal csak előnyt nyertek a konyha és a nappali jó benapozása által.
Az épületnek az ellentétes oldalain, ellentétes végein fél-fél átrium oszlik meg – egyik a bejárat felől nyújt fogadó udvart egy nagy leburkolt előtérrel egyetemben, a másik pedig intim teraszba evalválódik a hátsó kertre nézve. A belső tér leköveti ezt a logikát és a bejárati udvar felől a közösségi terek, míg egy középső folyosóval leválasztva a másik oldalon a privát terek sorakoznak. „A két végen, a kettéválasztott átrium tovább erősíti a természettel való kapcsolatot és különleges átlátásokat biztosít a különböző minőségű terek között” – írják a tervezők.

Érdekes az épület anyaghasználata, például a fekete vakolatokból (egyelőre) színével kirívó fa nyílászárók, de az acél tornác lábazatának masszív fémtáblái is izgalmasak – valami jóízű keménységet hoznak a bensőséges, növényekkel és könyves zugokkal teli meleg otthon miliőjébe. Utóbbi masszív fém textúra ráadásul egy izgalmas függesztett lépcsővel is visszaköszön az enteriőrben. E lépcső alsó és felső áttörtsége is beszűri a fényt, és hasonló pozitívumot hoz a konyha telepítése – külön falszigete is – egy konkrét helyiség kialakítása helyett.
Főhomlokzati nézetről beszélni nehéz, hiszen a ház egy zsákutca végén van, ahonnan megérkezve valóban nagy szerepe van az említett külső, fogadó átriumnak éppen ezért. Hátulról viszont, egy sűrű erdő felől nézve fel a lejtőn, a nyeregetetős tömegek szekvenciája barátságos lépés egy ilyen környezetben, és talán bátor lépés is egy progresszív, stílusában nemesedő településkép felé.
Tervezés éve: 2020
Befejezés éve: 2024
Nettó alapterület: 130 m2
Tervező: Théque Atelier
Vezető tervező: Álmos Gergely
Belsőépítészet: Álmos Gergely, Bubla Ágnes
Statikus: Szőnyi László
További képek a cikk végén található galériában!
Ha tetszett a cikk, és szeretnél előfizetni magazinunkra, itt teheted meg.


