Ezt a házat röviden jellemezni nem könnyű, mert egyszerre visszafogott és figyelemfelkeltő, mértékletes és végletekbe hajló. Erről szóló cikkünk a 93-as, 2012/1-es lapszámunkból közöljük.
Az építészeti tervezés kapcsán a családi ház az a platform, ahol a végeredményt tekintve leginkább kirajzolódik előttünk a megrendelő arcképe. Fontos, hogy az építész tudása legjavát bocsássa rendelkezésre, ugyanakkor szakmai elhivatottságát őrizve, a megrendelő szuverén akaratát tiszteletben tartva lavírozzon, alázattal kísérje végig egy ház születését. A család személyes kötődése okén felesleges dicsérni, vagy elmarasztalni egy házat. Mégis, ha megtörténik a ritka együttállás, s megrendelő és építész egy hullámhosszon vannak, ott remek dolgok történnek.
A szőlőültetvénnyel és apró pincék kiugró tömegeivel cizellált domboldal az utóbbi időben nagy változásokon ment keresztül. A déli lejtő a városhoz kapcsolódva mára igen impozáns, magasan kvalifikált lakóövezet lett, ahol gomba módjára épülnek a családi villák. Ezek jellemzően a hungaromediterrán stílusjegyeket magukon viselő, rendszerint széteső alaprajzzal és ehhez társuló bonyolult tetőidomokkal rendelkeznek. Markáns kontúrjával, szolidan elegáns megjelenésével hamar kitűnik közülük a Bauer Polla és Onodi András által tervezett családi ház.

Az épület a rézsűbe ékelődve az utca felől kétszintes tömeget képez, ami a lejtésnek és a középpontból kimozdított nyeregtető lágy esésének köszönhetően az udvar belseje felé fokozatosan csendesedik. Az utcai homlokzat szimmetriája elsőre feszültséget teremt, amit azonban a háttérben, az épülethez additív módon kapcsolódó nappali félnyeregtetős tömege old. A szabadon álló beépítésben a ház tudatosan jelöl ki irányokat maga körül, zárkózik el és nyílik fel. Míg a kiugró tömeg az utca felől fallal állít meg és a megérkezés terét definiálja, addig a hátsó traktusban intim pihenőzónát teremt maga körül.
A nagyvonalú tömegformáláshoz hasonlóan elegáns anyaghasználat párosul. A tető sötét fémlemez fedése és a homlokzaton megjelenő nagytáblás burkolat egyneműnek hat. Ezek keretként jelennek meg a tető vonalát követve, és futnak le az épület bütüjén. Ez a hangsúlyos kiemelés még inkább kontrasztba került a fehérre vakolt felületekkel. Ezt a trendi, ugyanakkor szigorú tektonikát a bélleteken használt fa varázsolja emberközelivé, és billenti ki merev rendszeréből.

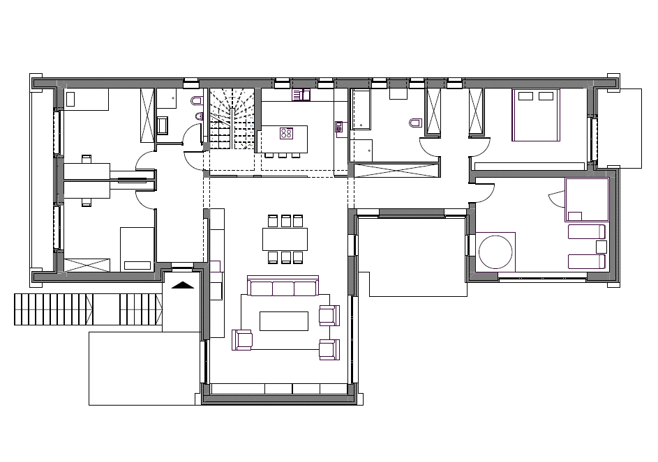
Az alaprajzi elrendezés kétpólusú. A szülők és a két tinédzser gyerek élettere között „demarkációs vonalként” az épület bejáratánál lévő előtér, folyosó szolgál. Semleges, közös használatú terület a konyha, étkező és a nappali, amik egybefüggő teret alkotnak a családi otthon magját képezve. A belső terek mértéktartóak, racionálisak, egyértelmű párhuzamban állnak a külső kompakt formálásával.
A belsőépítészetben visszaköszön a szürke és a fehér felületek játéka, egyfajta sterilitást kölcsönöznek. A monokróm hatást azonban helyenként megtörik a citromsárga bútorok, burkolatok vagy éppen festmények meleg, vidám hangulata. A konzekvensen végigvitt és tudatos színhasználat, a végletekig kidolgozott részletek és a gondosan válogatott anyagok mind hozzájárulnak ahhoz a koherens minimál egészhez, amitől ez a ház egyedi arcot mutat. Itt látszik egyesülni a divat, a trend, a design és a hétköznapi praktikum, és hamar kiderül, hogy ezek nem összeférhetetlenek egymással.

Az életben, amikor valaki keveset beszél, elengedhetetlen az éles és pontos megfogalmazás. Éppen így az épületben is, hogy a tisztogatás ne maradjon hatás nélkül. Fontosak a részletmegoldások a ház egészén, akár műszaki, akár esztétikai természetűek azok, mint az egyedileg tervezett korlátok, vagy épp az épület körül úszó fehér kavicsterítés.
A házat röviden jellemezni nem könnyű, egyszerre visszafogott és figyelemfelkeltő, mértékletes és végletekbe hajló. A sokaknak életidegen minimál sterilitása azonban egy hús-vér család otthona. És hogy végül milyen a megrendelő és milyen ez a család? Leginkább boldog az új otthonukban.
Tervezés éve: 2010
Kivitelezés éve: 2011
Telekméret: 950 m2
Teljes bruttó alapterület: 400 m2
Nettó alapterület pince: 109 m2
Nettó alapterület földszint: 204 m2
Építészet: Onodi András (ZOA), Bauer Polla
Építész munkatárs: Boldis Betti
Belsőépítészet: Bauer Polla (Geppetto)
Kerttervezés: Pottyondi Flóra
További képek a cikk végén található galériában!
Ha tetszett a cikk, és szeretnél előfizetni magazinunkra, itt teheted meg.


